NewConstruction Soeknad Garasje

Ny garasje, anneks og adkomst i Båtveien 24, Husøysund

📍 Båtveien 24 , 3132 HUSØYSUND

Nøkkelinfo

Sakstype
Nybygg
Bygningstype
Garasje
Bruksareal
80 m²
Kommune
Færder
Fylke
Vestfold
Gnr / Bnr
15 / 25
Saksnummer
2026/3748
Fase
Søknad

Om byggesaken

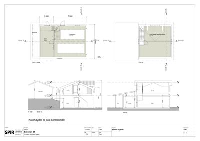
Prosjektet omfatter oppføring av en ny garasje på 49 m² med tilhørende bod på 21 m² og et åpent sykkelskur på 10 m². Garasjen bygges som en egen branncelle (EI30) med vegg- og takflater mot naboens garasje kledd med brannplater. I tillegg flyttes et eksisterende anneks på ca. 15 m² til en ny plassering på tomten, og det etableres en ny adkomst fra Myraveien. Garasjen utnytter høydeforskjellen mot nabotomta og har loft til lagring uten måleverdig høyde. Tomten er på ca. 1085 m² netto, og samlet bebygd areal etter tiltaket blir ca. 292 m², med en utnyttelse på 26,9 % BYA. Områdestabilitet er vurdert og tiltakene er klassifisert som K0, med dokumentert at de ikke forverrer stabiliteten i området.

Produkter og materialer

Fasade Trepanel

🧱 Tre

Trepanel på garasje og anneks

Utvendig kledning i tre for garasje og anneks

Grunnarbeid Graving og fundamentering

Grunnarbeider for ny garasje, flytting av anneks og ny adkomst

Grunnarbeid inkludert fundamentering og flytting av anneks

Tømrer Trekonstruksjoner for garasje og anneks

🧱 Tre

Tømrerarbeid for oppføring av garasje og flytting av anneks

Tømrerarbeid for bygging og montering av trekonstruksjoner

Adkomst Ny privat vei/adkomst

Antall: 1

Ny adkomst fra Myraveien godkjent av veilag

Etablering av ny adkomst til eiendommen

Garasjeport Garasjeport til ny garasje

Antall: 1

Garasje med brannklasse EI30, under 50 m², vegg og takflate mot nabo kledd med brannplater

Garasjeport og brannbeskyttelse for ny garasje

Dører Ytterdør til anneks

🧱 Tre

Antall: 1

Dør i anneks med valmtak

Dør til eksisterende anneks som flyttes

Vinduer Fasadevindu til garasje

🧱 Tre

Antall: 4

Vinduer satt inn i garasje for estetikk og tilpasning til omgivelsene

Vinduer til ny garasje for lys og estetikk

Tak Saltak og valmtak

🧱 Tegl på flatt tak og saltak på garasje

Garasje med saltak, anneks med valmtak og flatt tak med tegl

Taktekking for garasje og anneks

Fasader

Enebolig

Vest
Materiale
Tre
Taktype
Saltak
Høyde
5.7 m
Mønehøyde
8.2 m
Vinduer
1
Dører
0
Balkonger
1
Synlige etasjer
2
Øst
Materiale
Tre
Taktype
Saltak
Høyde
5.7 m
Mønehøyde
8.2 m
Vinduer
1
Dører
0
Synlige etasjer
2
Nord
Materiale
Tre
Taktype
Saltak
Høyde
5.7 m
Mønehøyde
8.2 m
Vinduer
3
Dører
2
Synlige etasjer
2
Sør
Materiale
Tre
Taktype
Saltak
Høyde
5.7 m
Mønehøyde
8.2 m
Vinduer
0
Dører
0
Synlige etasjer
2

Anneks

Sørvest
Materiale
Tre
Taktype
Flatt tak
Takmat.
Tegl
Vinduer
1
Dører
0
Synlige etasjer
1
Nordvest
Materiale
Tre
Taktype
Valmtak
Høyde
2.9 m
Vinduer
0
Dører
1
Synlige etasjer
1
Sørøst
Materiale
Tre
Taktype
Valmtak
Vinduer
1
Dører
0
Synlige etasjer
1
Nordøst
Materiale
Tre
Taktype
Flatt tak
Takmat.
Tegl
Vinduer
1
Dører
0
Synlige etasjer
1

Hendelser

20.04.2026 Gbnr 15/25 - Båtveien 24 - Garasje, anneks og ny adkomst - Fortsatt behov for dokumentasjon
15.04.2026 Gbnr 15/25 - Båtveien 24 - Garasje, anneks og ny adkomst - Supplering av søknad
13.04.2026 Gbnr 15/25 - Båtveien 24 - Garasje, anneks og ny adkomst - Søknad mottatt
10.04.2026 Gbnr 15/25 - Båtveien 24 - Garasje, anneks og ny adkomst - Søknad om rammetillatelse