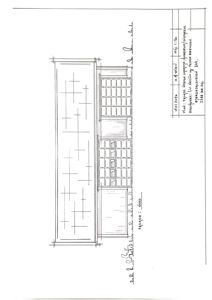
Facade
En håndtegnet fasadeopprikk (opprikk) av en bygning, med tegningens orientering rotert 90 grader mot klokken.
1 / 7
NewConstruction
UnderBehandling
Garasje
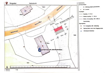
Ny garasje på Bjørgedalsvegen 269, Brumunddal
📍 Bjørgedalsvegen 269 , 2388 BRUMUNDDAL
Nøkkelinfo
- Sakstype
- Nybygg
- Bygningstype
- Garasje
- Bruksareal
- 96 m²
- Kommune
- Ringsaker
- Fylke
- Innlandet
- Gnr / Bnr
- 736 / 36
- Saksnummer
- 26/4388
- Fase
- Under behandling
Om byggesaken
Ny frittstående garasje på 96 m² BRA med saltak, fordelt på én etasje. Garasjen inneholder et større garasjerom og et hobbyrom, med totalt 4 vinduer og 2 dører. Fasaden mot sør har 3 vinduer, 1 dør og garasjeport, mens fasadene mot vest og øst har saltak og flere vinduer og dører. Bygget plasseres 20,2 meter fra fylkesvegens midtlinje, med dispensasjon fra byggegrense. Garasjen er tilknyttet eksisterende bolig på eiendommen og tilpasses terreng og omkringliggende bebyggelse.
Produkter og materialer
Maling
Utvendig og innvendig maling
Maling av utvendige og innvendige flater
Betong
Betongplate
Betongplate som gulv i garasje
Tømrer
Tømrerarbeid
Tømrerarbeid for oppføring av garasje og hobbyrom
Garasjeport
Garasjeport
Antall: 1
Garasjeport på sørfasade
Fasade
Utvendig kledning
Utvendig kledning tilpasset eksisterende boligmiljø
Tak
Saltak
Antall: 1
Saltak på garasjen
Dører
Ytterdør
Antall: 2
To ytterdører på garasjen, en på sørfasade og en på østfasade
Elektro
Elektrisk anlegg
Elektrisk installasjon for belysning og strøm i garasje og hobbyrom
Grunnarbeid
Fundamentering og grunnarbeid
Grunnarbeid for garasje på 96 m²
Vinduer
Fasadevindu
Antall: 4
Fire fasadevinduer fordelt på garasjens fasader
Plantegning
Garasje 96.0 m²
Etasje 1 96.0 m²
| Rom | Areal | Vinduer | Dører |
|---|---|---|---|
| Garasje | 96.0 m² | 4 | 1 |
Fasader
Garasje
Sør
- Vinduer
- 3
- Dører
- 1
- Synlige etasjer
- 2
Vest
- Taktype
- Saltak
- Vinduer
- 1
- Dører
- 0
- Synlige etasjer
- 1
Øst
- Taktype
- Saltak
- Vinduer
- 2
- Dører
- 1
- Synlige etasjer
- 2
Hendelser
22.04.2026
Vedtak - Tillatelse til oppføring av garasje - Gbnr. 736/36, Bjørgedalsvegen 269, Brumunddal
16.04.2026
Dispensasjon fra byggegrense, Innlandet fylkeskommune - Nybygg garasje, Gbnr 736/36, Bjørgedalsvegen 269, Brumunddal
15.04.2026
Dispensasjon fra byggegrense, Innlandet fylkeskommune - Nybygg garasje, Gbnr 736/36, Bjørgedalsvegen 269, Brumunddal
04.03.2026
Mangel ved søknad om oppføring av garasje- Gbnr. 736/36 - Bjørgedalsvegen 269, Brumunddal
02.03.2026
Søknad om tillatelse - Nybygg garasje, Gbnr 736/36, Bjørgedalsvegen 269, Brumunddal