NewConstruction UnderBehandling Garasje

Oppføring av redskapshus på Bolleveien 183, Leknes

📍 Bolleveien 183 , 8370 LEKNES

Nøkkelinfo

Sakstype
Nybygg
Bygningstype
Garasje
Bruksareal
314 m²
Kommune
Vestvågøy
Fylke
Nordland - Nordlánnda
Gnr / Bnr
20 / 7
Saksnummer
24/2687
Fase
Under behandling

Om byggesaken

Ny frittliggende redskapshus på 313,8 m² grunnflate med saltak og mønehøyde på ca. 8,3 meter oppføres på landbrukseiendommen Bolleveien 183, gnr. 20 bnr. 7 i Leknes. Bygget er utformet med tre som fasademateriale og har flere vinduer og dører, inkludert garasjeport. Redskapshuset skal brukes til lagring av landbruksredskaper og maskiner i forbindelse med planlagt grovforproduksjon på gården. Bygget plasseres på fulldyrket jord, og saken har vært gjenstand for prinsippavklaringer og lovlighetskontroll knyttet til nødvendighet, størrelse og arealbruk i LNFR-område. Det foreligger en eldre fjøs på eiendommen, men denne anses ikke tilstrekkelig for lagringsbehovet. Bygget er betydelig større enn det landbruksfaglig vurderte nødvendige arealet på ca. 100 m², noe som har vært sentralt i saksbehandlingen.

Produkter og materialer

Tømrer Bærekonstruksjon

🧱 Tre

Tømrerarbeid for bærekonstruksjon og rammeverk

Betong Fundament og gulvplate

🧱 Betong

Betongfundament og gulvplate for redskapshuset

Dører Ytterdører og garasjeport

🧱 Tre/metal

Antall: 4

2 dører på vestfasade, inkludert garasjeport

Ytterdører og garasjeport for adkomst og kjøretøy

Vinduer Fasadevindu

🧱 Tre/aluminium

Antall: 10

Vinduer fordelt på fasader, inkludert 1 vindu på sør, 3 på vest, 1 på nord og 5 på øst

Fasadevinduer for naturlig lys i redskapshuset

Tak Saltak

Saltak med mønehøyde ca. 8,3 m

Saltak med tradisjonell takvinkel for redskapshuset

Grunnarbeid Fundamentering og drenering

Grunnarbeid på fulldyrket jord, inkludert drenering av bløt fulldyrket jord

Fundamentering og drenering for bygging på fulldyrket jord

Maling Utvendig maling

Maling av trefasader for værbeskyttelse

Fasade Trepanel

🧱 Tre

Fasade i tre med saltak

Trepanel som fasademateriale for redskapshuset

Elektro Elektrisk anlegg

Elektrisk installasjon for belysning og strøm i redskapshuset

Plantegning

Redskapshus 313.8 m²

Etasje 1 313.8 m²

Rom Areal Vinduer Dører
Redskapshus 313.8 m² 1 1

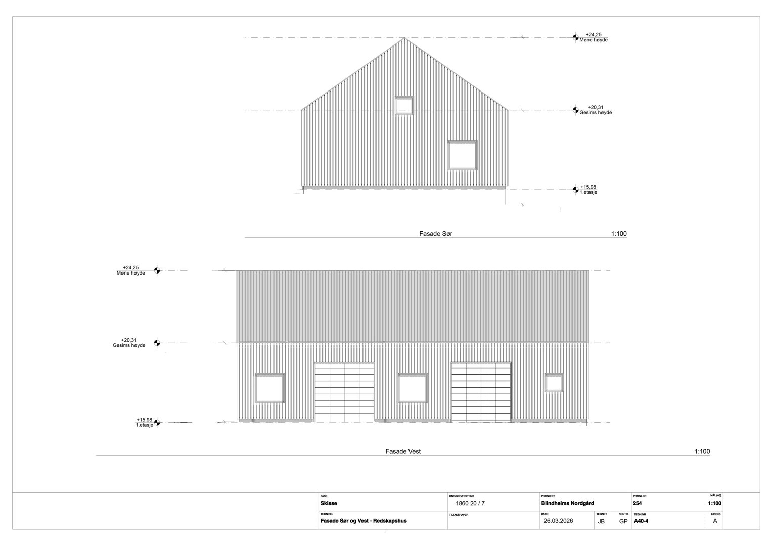
Fasader

Redskapshus

Sør
Materiale
Tre
Taktype
Saltak
Høyde
4.3 m
Mønehøyde
8.3 m
Vinduer
1
Dører
0
Synlige etasjer
1
Vest
Materiale
Tre
Taktype
Saltak
Høyde
4.3 m
Mønehøyde
8.3 m
Vinduer
3
Dører
2
Synlige etasjer
1
Nord
Materiale
Tre
Taktype
Saltak
Høyde
4.5 m
Mønehøyde
8.4 m
Vinduer
1
Dører
0
Synlige etasjer
1
Øst
Materiale
Tre
Taktype
Flatt tak
Høyde
4.5 m
Mønehøyde
8.4 m
Vinduer
5
Dører
0
Synlige etasjer
1

Hendelser

17.04.2026 Oppdatert tegningsmaterial og situasjonsplan
25.04.2025 Orientering om Statsforvalterens vedtak i lovlighetskontroll av KS-080/24
17.01.2025 Lovlighetskontroll av vedtak i kommunestyrets sak 80/24
04.10.2024 Prinsippavklaring - søknad om oppføring av redskapshus - gnr 20 bnr 7