NewConstruction Rammetillatelse Garasje

Riving og oppføring av nye garasjerekker i Borgenbråten, Asker

📍 Borgenbråten 101 , 1388 BORGEN

Nøkkelinfo

Sakstype
Nybygg
Bygningstype
Garasje
Bruksareal
650 m²
Kommune
Asker
Fylke
Akershus
Gnr / Bnr
6 / 47
Saksnummer
25/1900
Fase
Rammetillatelse

Om byggesaken

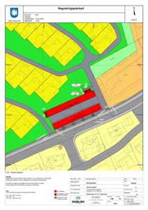
To eksisterende garasjerekker fra 1960-tallet med til sammen 36 garasjeplasser rives og erstattes med to nye garasjerekker med til sammen 35 plasser, tilpasset dagens bilstørrelser og behov. De nye garasjerekkene bygges i tre med pulttak, har flatt tak, og trapper terrenget for hver tredje enhet for god tilpasning. En felles bod for lagring av utstyr plasseres ved den nordre rekken. Totalt areal for ny bebyggelse er ca. 690 m² BYA. Garasjene plasseres parallelt med gang- og sykkelvei og Borgenbråten, med noe justert plassering pga. kommunal vannledning. Tiltaket inkluderer fjerning av fem store bjørketrær som erstattes med fire nye trær. Fundamentering skjer på pukkfundament på undersprengt fjell eller fast leire, med geoteknisk kontroll. Overvann håndteres med drensrør og fordrøyningsmagasin. Tiltaket har fått nødvendige dispensasjoner fra reguleringsplan, byggegrenser og hensynssone bevaring kulturmiljø, og er vurdert som godt tilpasset kulturmiljøet og terrenget.

Arbeidsomfang

- Riving av eksisterende garasjer på eiendommen - Oppføring av ny garasjerekke (tilbygg) i stedet for de rivne garasjene - Tiltak utføres i ett trinn (samtidig riving og oppføring) - Tiltaket krever dispensasjon for å kunne utføres i ett trinn

Produkter og materialer

Rekkverk Trapper

🧱 Tre

Antall: 3

Trapper med trapping 30 cm for hver tredje garasjeenhet

Trapper i garasjerekker for tilpasning til terreng

Balkong Bod

🧱 Tre

Antall: 1

Felles bod på 12 m² plassert ved nordre garasjerekke, lavere i terrenget, samme farge og uttrykk som garasjene

Felles bod for lagring av utstyr

Vegetasjon Trær

🧱 Betula pubescence eller Betula pendula

Antall: 4

Fire nye trær med minimum 30 cm stammeomkrets, plantet i mellomrommene mellom de fem eksisterende bjørketrærne som fjernes

Erstatning for felte bjørketrær langs gang-/sykkelvei

Garasjeport Enkel garasjeport

🧱 Tre

Antall: 35

Garasjeporter i samme mørke farge med enkel profilering av liggende eller stående panel/lameller uten oppdeling i ruter

Garasjeporter til 35 garasjeplasser i to garasjerekker

Mur Ringmur

🧱 Leca eller betong

Ringmur med tykkelse 15-25 cm, frontmur ved port 10 cm bredde, støpt i betong, armering ved portåpning

Ringmur for garasjerekker

Grunnarbeid Fundamentering og drenering

🧱 Pukk, betong, fiberduk, geonett

Direktefundamentering på pukkfundament på undersprengt fjell eller fast leire, med geoteknisk kontroll. Drensrør 160 mm under innkjørsel, fordrøyningsmagasin ca. 10 m³, taknedløp koblet til drensrør

Fundamentering og overvannshåndtering for garasjerekker

Fasade Tre med pulttak

🧱 Tre

Antall: 2

Garasjerekkene bygges i tre med pulttak, flatt tak, trapper terrenget for hver tredje enhet

Fasade og takmaterialer for to garasjerekker

Tømrer Montering av trekonstruksjoner

🧱 Tre

Oppføring av trekonstruksjoner for garasjerekker

Tømrerarbeider for garasjerekker

Plantegning

Utomhus 0.0 m²

Etasje 0 0.0 m²

Rom Areal Vinduer Dører

Garasje 650.0 m²

Etasje 1 344.0 m²

Rom Areal Vinduer Dører
Garasje 1 18.6 m² 0 0
Garasje 2 18.0 m² 0 0
Garasje 3 18.3 m² 0 0
Garasje 4 17.8 m² 0 0
Garasje 5 18.0 m² 0 0
Garasje 6 18.3 m² 0 0
Garasje 7 17.8 m² 0 0
Garasje 8 18.0 m² 0 0
Garasje 9 18.3 m² 0 0
Garasje 10 17.8 m² 0 0
Garasje 11 18.0 m² 0 0
Garasje 12 18.3 m² 0 0
Garasje 13 17.8 m² 0 0
Garasje 14 18.0 m² 0 0
Garasje 15 18.3 m² 0 0
Garasje 16 17.8 m² 0 0
Garasje 17 18.0 m² 0 0
Garasje 18 18.3 m² 0 0
Bod BOD 12.0 m² 0 0

Etasje 0 306.0 m²

Rom Areal Vinduer Dører
Garasje 1 14.8 m² 0 0
Garasje 2 14.8 m² 0 0
Garasje 3 14.8 m² 0 0
Garasje 4 14.8 m² 0 0
Garasje 5 14.8 m² 0 0
Garasje 6 14.8 m² 0 0
Garasje 7 14.8 m² 0 0
Garasje 8 14.8 m² 0 0
Garasje 9 14.8 m² 0 0
Garasje 10 14.8 m² 0 0
Garasje 11 14.8 m² 0 0
Garasje 12 14.8 m² 0 0
Garasje 13 14.8 m² 0 0
Garasje 14 14.8 m² 0 0
Garasje 15 14.8 m² 0 0
Garasje 16 14.8 m² 0 0
Garasje 17 14.8 m² 0 0
Garasje 18 0.0 m² 0 0

Fasader

Garasje

Nord
Materiale
Tre
Taktype
Flatt tak
Høyde
3.5 m
Mønehøyde
3.5 m
Vinduer
0
Dører
0
Synlige etasjer
1
Sør
Materiale
Tre
Taktype
Flatt tak
Høyde
3.5 m
Mønehøyde
3.5 m
Vinduer
0
Dører
0
Synlige etasjer
1
Vest
Materiale
Tre
Taktype
Flatt tak
Høyde
4.5 m
Vinduer
0
Dører
1
Synlige etasjer
1
Øst
Materiale
Tre
Taktype
Flatt tak
Høyde
4.5 m
Vinduer
0
Dører
1
Synlige etasjer
1

Hendelser

08.04.2026 6/47 Borgenbråten - Supplering av søknad rammetillatelse
16.03.2026 6/47 Borgenbråten - Omgjøring av vedtak datert 23.01.2026, jf. forvaltningsloven § 35, bokstav a - Godkjente dispensasjoner og tillatelse til tiltak i ett trinn for riving av eksisterende garasjer og oppføring av nye garasjer byggetillatelse
24.02.2026 6/47 Borgenbråten - Purring på svar - tiltaksklasse arkitekturprosjektering
04.02.2026 6/47 Borgenbråten - Kommentarer til tiltaksklasse i gitt tillatelse
26.01.2026 6/47 Borgenbråten - Innvilgede dispensasjoner - Tillatelse til tiltak i ett trinn for riving av eksisterende garasjer og oppføring av nye garasjer byggetillatelse
27.12.2025 6/47 Borgenbråten - Svar på forespørsel om møte
19.12.2025 6/47 Borgenbråten - Forespørsel om møte med kulturminneansvarlig
11.12.2025 6/47 Borgenbråten - Orientering om at saksbehandlingen fortsetter - Søknad om riving og oppføring av nye garasjer rammetillatelse
20.11.2025 6/47 Borgenbråten - Supplering av søknad rammetillatelse
06.11.2025 6/47 Borgenbråten - Foreløpig vurdering av omsøkt tiltak
01.10.2025 6/47 Borgenbråten - Supplering av søknad søknad
11.09.2025 6/47 Borgenbråten - Vi trenger ytterligere dokumentasjon - Riving og oppføring av ny garasjerekke
29.08.2025 6/47 Borgenbråten - Supplering av søknad søknad
22.08.2025 6/47 Borgenbråten - Tinglyst erklæring om permanente tiltak i nærhet av kommunalt hovedledningsnett
15.06.2025 6/47 Borgenbråten - Supplering av søknad søknad
02.06.2025 6/47 Borgenbråten - Søknad om riving og oppføring av ny garasjerekke søknad