NewConstruction UnderBehandling Garasje

Nyoppføring av naust i Borgundvegen, Ålesund

📍 Borgundvegen 1 , 6003 ÅLESUND

Nøkkelinfo

Sakstype
Nybygg
Bygningstype
Garasje
Bruksareal
46 m²
Kommune
Ålesund
Fylke
Møre og Romsdal
Gnr / Bnr
34 / 15
Saksnummer
2025/8942
Fase
Under behandling

Om byggesaken

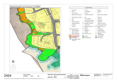
Nyoppføring av et frittliggende naust med grunnflate på 45,5 m² på eiendommen Borgundvegen, Gnr 34 Bnr 15 i Ålesund. Naustet erstatter et tidligere naust som ble ødelagt av stormflo, og plasseres på samme tomt med en mindre justering for å ivareta miljøhensyn ved en nærliggende bekk. Bygget har saltak med 35 graders takvinkel, trekledning og taktekking i grå sinkplater som gir et uttrykk nært tradisjonell byggeskikk. Fasaden har enkelte moderne elementer som to avlange vinduer og et skråskjært takutstikk, som krever dispensasjon fra kommunedelplanens krav om tradisjonell stil. Naustet skal kun brukes til lagring av båter og utstyr, uten innredning for varig opphold. Prosjektet inkluderer grunnarbeider, tømrerarbeid, innmåling og utskifting, og er under behandling med dispensasjonssøknad til regional og statlig myndighet.

Produkter og materialer

Vinduer Fasadevindu

🧱 Glass med tre- eller aluminiumsramme

Antall: 2

To avlange vinduer i fasaden, ikke tradisjonell nauststil

Vinduer for lysinnslipp i naustet, krever dispensasjon

Elektro Lyssetting

Endret lyssetting/fargesetting på fasader og illustrasjoner for tydelighet

Belysning og lyssetting i fasader og illustrasjoner

Annet Takutstikk og veggskive

Skrått takutstikk på venstre gavlvegg mot sjø, veggskive ca. 2,5 m mot nord

Arkitektonisk element som beskytter naustdørene mot vær og vind

Fasade Trekledning

🧱 Tre

Stående trekledning i tradisjonell stil

Trekledning for fasade i tradisjonell nauststil

Tømrer Tømrerarbeid og montering av trekonstruksjoner

🧱 Trekonstruksjoner

Utførelse av trekonstruksjoner for naustet

Tømrerarbeid for oppføring av naustets trekonstruksjon

Tak Saltak med sinktekking

🧱 Sinkplater

Takvinkel 35 grader, taktekking med grå sinkplater

Saltak med sinkplater som taktekking i grå skiferfarge

Grunnarbeid Fundament og grunnarbeider

Grunnarbeider tilpasset strand- og bekkeforhold, fri passasje på 1,25 m til bekk

Grunnarbeid og fundamentering for naustet

Fasader

Enebolig

Vest
Materiale
Betong
Taktype
Saltak
Høyde
5.0 m
Mønehøyde
7.0 m
Vinduer
1
Dører
1
Synlige etasjer
2
Øst
Materiale
Betong
Taktype
Saltak
Høyde
5.0 m
Mønehøyde
7.0 m
Vinduer
4
Dører
2
Synlige etasjer
2
Sør
Materiale
Tre
Taktype
Saltak
Høyde
5.0 m
Mønehøyde
7.2 m
Vinduer
1
Dører
1
Synlige etasjer
2
Nord
Materiale
Betong
Taktype
Flatt tak
Høyde
5.0 m
Mønehøyde
7.2 m
Vinduer
2
Dører
1
Synlige etasjer
2

Uthus

Vest
Materiale
Tre
Taktype
Saltak
Høyde
3.0 m
Mønehøyde
5.0 m
Vinduer
1
Dører
1
Synlige etasjer
1

Hendelser

17.04.2026 Gbnr. 34/15 - Supplering av søknad - Borgundvegen - Naust
09.04.2026 Gbnr. 34/15 - Tilsvar høringsuttalelser - Borgundvegen - Naust
18.03.2026 Gbnr. 34/15 - Oversender høringssvar til uttale - Borgundvegen - Naust
18.03.2026 Gbnr. 34/15 - Uttale fra Møre og Romsdal fylkeskommune - dispensajon - Borgundvegen - Naust
12.03.2026 Gbnr. 34/15 - Uttale - dispensasjon - Borgundvegen - Naust
24.02.2026 Gbnr. 34/15 - Oversender søknad til uttale - Borgundvegen - Naust
23.02.2026 Gbnr. 34/15 - Supplering av søknad - Hovdevegen 47 - Naust
09.02.2026 Gbnr. 34/15 - Kopi - Hovdevegen 47 - Svar på nabovarsel for nytt bygg - Under 70 m2 - ikke boligformål
27.01.2026 VS: Gbnr. 34/15 - Avklaring angående saken - Oppføring av naust - Kommunedelplanen § 16.1
22.12.2025 Gbnr. 34/15 - Tilbakemelding på supplering av søknad - Borgundvegen - Naust
12.12.2025 Gbnr. 34/15 - Supplering av søknad - Borgundvegen - Naust
12.11.2025 Gbnr. 34/15 - Tilbakemelding angående bestemmelser i kommunedelplan - Borgundvegen - Naust
02.10.2025 Gbnr. 34/15 - Komplettering - Borgundvegen - Naust
18.07.2025 Gbnr. 34/15 - Vedrørende mangelbrev - Borgundvegen - Naust
17.07.2025 Gbnr. 34/15 - Mangelbrev - Borgundvegen - Naust
07.07.2025 Gbnr. 34/15 - Søknad om rammetillatelse - Borgundvegen - Naust