NewConstruction Avslatt Garasje

Ny underjordisk garasje i Brusetveien 74, Asker

📍 Brusetveien 74A , 1395 HVALSTAD

Nøkkelinfo

Sakstype
Nybygg
Bygningstype
Garasje
Bruksareal
69 m²
Kommune
Asker
Fylke
Akershus
Gnr / Bnr
28 / 148
Saksnummer
23/1701
Fase
Avslått

Om byggesaken

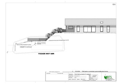
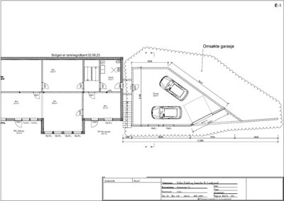
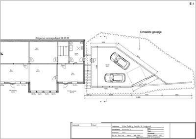
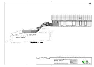
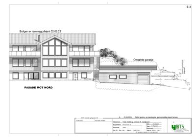
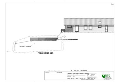
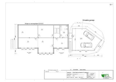
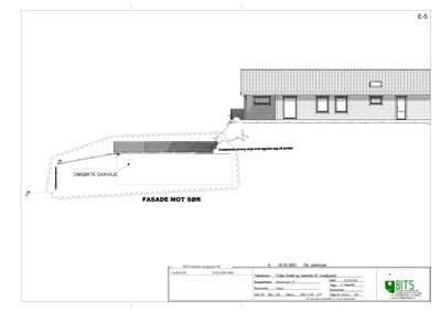
Ny underjordisk garasje på 68,9 m² plassert i tilknytning til bolig i Brusetveien 74, Asker. Garasjen bygges under eksisterende terrengnivå og bak en støttemur som erstatter en tidligere mur. Garasjegulvet legges 0,5 meter under innvendig gulv i boligen for bedre innkjøring. Terrenget tilbakeføres til tilnærmet opprinnelig nivå etter bygging, og garasjen har flatt tak dekket med jord og plen. Garasjen har en garasjeport og en dør, og veggen mot nord forblendes med kledning for estetisk tilpasning. Tiltaket inkluderer terrenginngrep med utgraving bak støttemuren, men uten endring av terreng mot nabo. Garasjen er planlagt med sluse til kjeller i boligen, og brannskillet opprettholdes i henhold til regelverk. Prosjektet har vært gjenstand for omfattende saksbehandling, inkludert klage og behandling hos Statsforvalteren, som opphevet kommunens opprinnelige avslag. Tillatelse til tiltak er gitt i 2026.

Produkter og materialer

Garasjeport Garasjeport i garasje

Antall: 1

Garasjeport plassert i garasjens innkjøring

Garasjeport for biladkomst

Fasade Fasade vegg med kledning

🧱 Tre

Nordveggen forblendes med kledning for estetisk uttrykk

Fasadevegger for garasje, inkludert kledning på nordvegg

Elektro Belysning og strøm i garasje

Elektrisk installasjon i garasje

Grunnarbeid Utgraving og tilbakefylling

Utgraving bak eksisterende støttemur, tilbakefylling med masser

Grunnarbeid for etablering av underjordisk garasje

Betong Betongkonstruksjon for garasje

🧱 Betong

Betongvegger og gulv for garasje under terreng

Betongkonstruksjon for underjordisk garasje

Tak Flatt tak med jord og plen

🧱 Jord og plen

Flatt tak dekket med jord og plen, terrengnivå tilbakeføres

Tak på garasje dekkes med jord og plen for å ligge under terreng

Tømrer Innvendige og utvendige arbeider

🧱 Tre

Tømrerarbeid for kledning og tilpasninger

Tømrerarbeid knyttet til garasje og tilstøtende konstruksjoner

Brannvern Brannskille mellom garasje og bolig

Brannskille opprettholdes i henhold til regelverk for garasje over 50 m²

Brannsikring mellom garasje og bolig

VVS Ventilasjon i garasje

Ventilasjon for garasje

Dører Ytterdør i garasje

Antall: 1

Dør fra garasje til kjeller/sluse

Dør for adkomst mellom garasje og boligkjeller

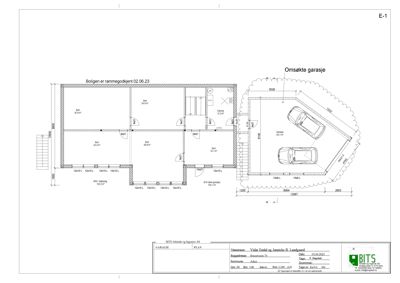
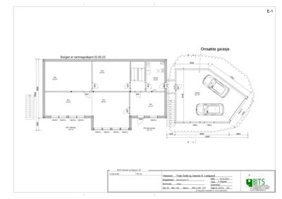
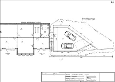
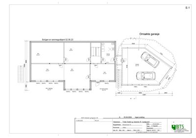
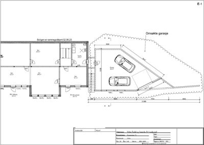
Plantegning

Omsøkte garasje 137.8 m²

Etasje 0 68.9 m²

Rom Areal Vinduer Dører
Garasje Garasje 68.9 m² 0 0
Garasje 1 25.6 m² 0 1
Garasje 2 6.1 m² 0 0
Garasje 3 244.9 m² 0 0
Garasje 4 1,946.2 m² 0 0
Garasje 5 1,922.4 m² 0 0

Etasje 1 68.9 m²

Rom Areal Vinduer Dører
Garasje Garasje 68.9 m² 0 0

Enebolig 405.6 m²

Etasje 0 152.2 m²

Rom Areal Vinduer Dører
Bod 001 30.6 m² 0 1
Bod 002 24.4 m² 0 1
Bod 003 26.8 m² 0 1
Bod 004 18.1 m² 0 1
Bod 005 24.6 m² 0 1
Teknisk 006 12.2 m² 0 1
Bod 0 30.6 m² 0 1

Etasje 1 101.3 m²

Rom Areal Vinduer Dører
Stue 101 31.2 m² 4 1
TV-stue 102 34.8 m² 0 1
Kjøkken 103 13.4 m² 0 1
Gang 104 22.8 m² 0 2
Soverom 105 11.8 m² 1 1
Soverom 106 7.0 m² 1 1
Bad 107 5.4 m² 0 1
Bad 108 4.0 m² 0 1
WC 109 3.3 m² 0 1
Soverom 110 9.7 m² 1 1
Stue 1021 34.8 m² 4 1
TV-stue 1022 31.2 m² 0 1
Kjøkken 1023 11.8 m² 0 1
Soverom 1024 7.0 m² 1 1
Soverom 1025 11.8 m² 1 1
Bad 1026 5.4 m² 0 1
Bad 1027 4.0 m² 0 1
WC 1028 3.3 m² 0 1
Gang/trapp 1029 22.8 m² 0 1
Soverom 1030 9.7 m² 1 1
Forstue 1031 13.4 m² 1 1
Garasje Garasje 68.9 m² 0 1

Etasje 2 152.1 m²

Rom Areal Vinduer Dører
Stue 201 30.2 m² 1 2
Kjøkken/spisestue 202 48.9 m² 1 2
Soverom 203 18.4 m² 1 2
Soverom 204 8.4 m² 1 2
Soverom 205 8.4 m² 1 2
Bad 206 8.4 m² 0 1
Gang 207 4.1 m² 0 3
Gang 208 10.9 m² 0 2
Gangtrapp 209 8.9 m² 0 1

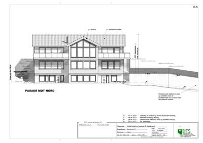
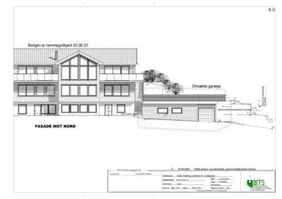
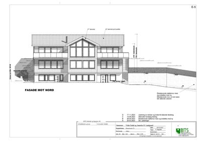
Fasader

Enebolig m/Leil

Nord
Materiale
Tre
Taktype
Saltak
Takmat.
Tegl
Høyde
5.8 m
Mønehøyde
7.8 m
Vinduer
13
Dører
2
Balkonger
2
Synlige etasjer
3

Enebolig

Nord
Materiale
Tre
Taktype
Saltak
Takmat.
Tegl
Høyde
6.5 m
Mønehøyde
8.2 m
Vinduer
13
Dører
1
Balkonger
2
Synlige etasjer
3
Vest
Materiale
Tre
Taktype
Saltak
Takmat.
Tegl
Høyde
5.8 m
Mønehøyde
7.8 m
Vinduer
4
Dører
1
Balkonger
1
Synlige etasjer
2
Sør
Materiale
Tre
Taktype
Saltak
Takmat.
Tegl
Høyde
1.5 m
Mønehøyde
1.5 m
Vinduer
3
Dører
1
Synlige etasjer
1
Øst
Materiale
Tre
Taktype
Saltak
Takmat.
Tegl
Vinduer
5
Dører
1
Balkonger
1
Synlige etasjer
2
Ukjent
Materiale
Betong
Høyde
2.8 m
Vinduer
0
Dører
0
Synlige etasjer
1

Omsøkte garasje

Nord
Materiale
Tre
Taktype
Flatt tak
Vinduer
2
Dører
1
Synlige etasjer
1

Hendelser

14.04.2026 28/148 Brusetveien 74 - Svar på kommunens brev av 080426 - Dekning av sakskostnader
09.04.2026 28/148 Brusetveien 74 - Kommunens merknader til krav om dekning av sakskostnader
27.03.2026 28/148 Brusetveien 74 - Statsforvalterens melding om saksbehandlingstid, mulighet for kommentarer, og svar på oppfølgingsspørsmål
12.03.2026 28/148 Brusetveien 74 - Tillatelse til tiltak nybygg garasje
02.03.2026 28/148 Brusetveien 74 - Statsforvalterens vedtak i klagesak - opphever kommunens vedtak av 270825
15.12.2025 28/148 Brusetveien 74 - Statsforvalterens melding om saksbehandlingstid i klagesak
11.12.2025 28/148 Brusetveien 74 - Oversendelse av klagesak til behandling
31.10.2025 28/148 Brusetveien 74 - Statsforvalterens besvarelse på henvendelse angående klage
08.09.2025 28/148 Brusetveien 74 - Klage på avslag
01.09.2025 28/148 Brusetveien 74 - Avslag på søknad om rammetillatelse for nybygg garasje
14.07.2025 28/148 Brusetveien 74 - Statsforvalteren oversender direktesendt klage og besvarer henvendelse
04.06.2025 28/148 Brusetveien 74 - Klage til Statsforvalteren (kopi)
28.05.2025 28/148 Brusetveien 74 - Klage på gebyr for mangelfull søknad
28.03.2025 28/148 Brusetveien 74 - Svar på spørsmål til faktura - Nybygg - Garasje
17.02.2025 28/148 Brusetveien 74 - Spørsmål til faktura
27.01.2025 28/148 Brusetveien 74 - Utsatt frist innvilges til 01.03.25 - Nybygg garasje
22.01.2025 28/148 Brusetveien 74 - Redegjørelse og reviderte tegninger
19.11.2024 28/148 Brusetveien 74 - Kommer tilbake med reviderte tegninger og klargjøring
06.11.2024 28/148 Brusetveien 74 - Ber om en utsettelse av frist for å sende inn dokumentasjon til 06.12.24
23.10.2024 28/148 Brusetveien 74 - Svar på spørsmål om møte- nybygg garasje
27.08.2024 28/148 Brusetveien 74 - Ber om et møte
30.07.2024 28/148 Brusetveien 74 - Ufullstendig søknad - Garasje
03.04.2024 28/148 Brusetveien 74 - Supplering av søknad
12.02.2024 28/148 Brusetveien 74 - Anmodning om supplerende dokumentasjon - Garasje
02.01.2024 28/148 Brusetveien 74 - Supplerende opplysninger
02.01.2024 28/148 Brusetveien 74 - Ettersendt dokumentasjon
30.11.2023 28/148 Brusetveien 74 - Søknad om endring av gitt tillatelse
29.08.2023 28/148 Anmodning om supplerende dokumentasjon - Søknad om nybygg - Garasje
12.06.2023 28/148 Kvitteringsbrev - Nybygg - Garasje
09.06.2023 28/148 Søknad om nybygg - Garasje