Facade
Fasadetegning som viser fronten på en bygning med tak, vinduer og dør.
1 / 13
NewConstruction
Rammetillatelse
Garasje
Ny garasje med grunnarbeider på Ekornvegen 3, Magnor
📍 Ekornvegen 3 , 2240 MAGNOR
Nøkkelinfo
- Sakstype
- Nybygg
- Bygningstype
- Garasje
- Bruksareal
- 98 m²
- Kommune
- Eidskog
- Fylke
- Innlandet
- Gnr / Bnr
- 60 / 456
- Saksnummer
- 2026/853
- Fase
- Rammetillatelse
Om byggesaken
Ny frittstående garasje på 98 m² grunnflate og 94 m² bruksareal oppføres på Ekornvegen 3 i Magnor. Garasjen bygges med flatt tak og trekledning, og inkluderer støpt armert ringmur med minimum 100 mm bredde. Eksisterende garasje/uthus rives før nybygging. Grunnarbeider utføres som del av prosjektet. Tiltaket har én etasje og inkluderer garasjeport, men ingen vinduer eller dører utover porten. Prosjektet gjennomføres med personlig ansvarsrett som selvbygger.
Produkter og materialer
Garasjeport
Garasjeport
Antall: 1
Garasjeport for innkjøring
Grunnarbeid
Grunnarbeider for garasje
Grunnarbeider utføres av Melby Maskin AS, inkludert terrengjustering og fundamentering
Grunnarbeider for ny garasje med støpt armert ringmur
Tømrer
Bygging av garasje
Oppføring av ny garasje med trekledning og flatt tak
Tømrerarbeid for ny garasje
Betong
Ringmur
🧱 Armert betong, minimum 100 mm bredde, Lecablokk alternativt minimum 150 mm bredde
Ringmur med minimum 250 mm høyde over ferdig gulv
Støpt armert ringmur for garasjens fundament
Fasade
Trekledning
🧱 Tre
Garasje med trekledning og flatt tak
Yttervegger kledd med trepanel
Tak
Flatt tak
Garasje med flatt tak
Taktekking for flatt tak på garasje
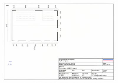
Plantegning
Enebolig 94.0 m²
Etasje 1 94.0 m²
| Rom | Areal | Vinduer | Dører |
|---|---|---|---|
| Stue 101 | 58.5 m² | 3 | 1 |
| Gang 102 | 12.0 m² | 0 | 2 |
| Kjøkken 103 | 13.5 m² | 1 | 1 |
| Bad 104 | 4.0 m² | 0 | 1 |
| Toalett 105 | 2.0 m² | 0 | 1 |
| Vaskerom 106 | 4.0 m² | 1 | 1 |
Fasader
Hovedbygg
Ukjent
- Materiale
- Tre
- Taktype
- Saltak
- Vinduer
- 1
- Dører
- 1
- Synlige etasjer
- 1
Garasje
Ukjent
- Materiale
- Tre
- Taktype
- Flatt tak
- Vinduer
- 0
- Dører
- 0
- Synlige etasjer
- 1
Hendelser
20.04.2026
Tillatelse til tiltak - gnr 60 bnr 456 - Garasje
17.04.2026
Gnr 60 bnr 456 - Søknad om tillatelse til tiltak - Ny Garasje