NewConstruction Rammetillatelse Garasje

Ny garasje og forstøtningsmur på Finnesvegen 64, Voss

📍 Finnesvegen 64 , 5704 VOSS

Nøkkelinfo

Sakstype
Nybygg
Bygningstype
Garasje
Bruksareal
60 m²
Kommune
Voss
Fylke
Vestland
Gnr / Bnr
42 / 20
Saksnummer
2025/6787
Fase
Rammetillatelse

Om byggesaken

Ny frittstående garasje på ca. 60 m² med delvis underjordisk konstruksjon tilpasset terrenget, plassert 0,5 meter fra nabogrense. Garasjen har gesimshøyde inntil 3 meter og mønehøyde inntil 5 meter, med tilhørende terrasse på toppen i samme høyde som eksisterende terrasse. Forstøtningsmuren bygges i naturstein med maksimal høyde på 2,7 meter, fundamentert på fjell, og plasseres på nord/vest side av eiendommen for å sikre terrenget og hindre erosjon. Prosjektet inkluderer nødvendige terrengarbeider, sikringstiltak ved graving og sprengning, og er tilpasset reguleringsplanens krav og visuelle kvaliteter i området.

Produkter og materialer

Betong Fundamentering og dekke

🧱 Betong

Fundamentering på fjell for mur og garasje, betongdekke i garasje

Betongarbeid for fundamentering og dekke i garasje og mur

Maling Utvendig overflatebehandling

Overflatebehandling av garasje og mur for værbestandighet

Terrasse Terrasse på garasjetak

Antall: 1

Terrasse i samme høyde som eksisterende terrasse, ca. 3 meter gesimshøyde

Terrasse på toppen av garasjen

Garasjeport Garasjeport

Antall: 1

Port til garasje på ca. 60 m²

Tømrer Garasjekonstruksjon

Delvis underjordisk konstruksjon tilpasset terreng

Tømrerarbeid for oppføring av garasje

Mur Forstøtningsmur i naturstein

🧱 Naturstein

Antall: 1

Maks høyde 2,7 meter, fundamentert på fjell, plassert på nord/vest side av eiendommen

Forstøtningsmur for sikring av terreng og erosjonsforebygging

Grunnarbeid Graving og sprengning

Graving og sprengning nær nabogrense med nødvendige sikringstiltak

Grunnarbeid for tilpasning av terreng og plassering av garasje og mur

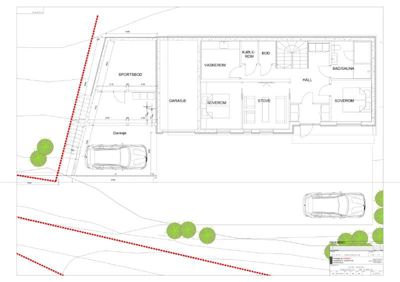
Plantegning

Enebolig 0.0 m²

Etasje 0 0.0 m²

Rom Areal Vinduer Dører
Garasje 001 0.0 m² 0 0
Sportsbod 002 0.0 m² 0 1

Hendelser

21.04.2026 Endring av ansvarsrettar - Nytt bygg - garasje & forstøtningsmur - gbnr. 42/20 - Finnesvegen 64
10.04.2026 Supplering av søknad - nytt bygg - garasje & forstøtningsmur - gbnr. 42/20 - Finnesvegen 64
08.04.2026 Supplering av søknad - nytt bygg - garasje & forstøtningsmur - gbnr. 42/20 - Finnesvegen 64
08.04.2026 Manglande informasjon om igangsatt tiltak - Finnesvegen 64
30.03.2026 Avklaring av ansvarsrett og vidare framdrift - gbnr. 42/20 - Finnesvegen 64
21.08.2025 Løyve til tiltak - Nytt bygg - garasje & forstøtningsmur - gbnr. 42/20 - Finnesvegen 64
13.08.2025 Supplering av søknad - gbnr. 42/20 - Finnesvegen 64
06.08.2025 Tilbakemelding om manglar - Nytt bygg - garasje & forstøtningsmur - gbnr. 42/20 - Finnesvegen 64
30.07.2025 Søknad om løyve til oppføring av nytt bygg - garasje & forstøtningsmur - gbnr. 42/20 - Finnesvegen 64
30.07.2025 Stadfesting av motteken søknad - nytt bygg - garasje & forstøtningsmur - gbnr. 42/20 - Finnesvegen 64