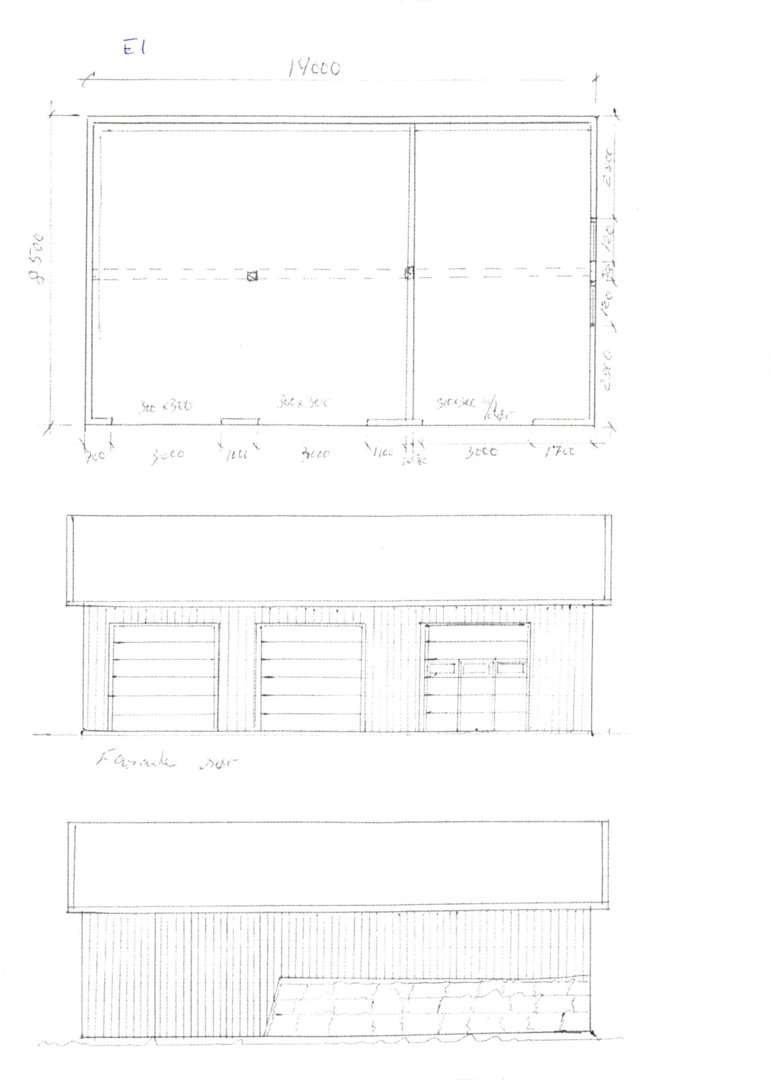
Facade
Håndtegnet fasadeopprikk (fra front) med mål og detaljer for dører og vinduer.
1 / 7
NewConstruction
Soeknad
Garasje
Riving og ny garasjeoppføring på Flakk 142
📍 Flakk 142 , 4760 BIRKELAND
Nøkkelinfo
- Sakstype
- Nybygg
- Bygningstype
- Garasje
- Kommune
- Birkenes
- Fylke
- Agder
- Gnr / Bnr
- 38 / 56
- Saksnummer
- 2026/767
- Fase
- Søknad
Om byggesaken
Ny frittstående garasje oppføres på eiendommen Flakk 142 med flatt tak og tre som fasademateriale. Garasjen har en gesimshøyde på 2,5 meter, én etasje, tre dører og en garasjeport. Eksisterende garasje rives før nybygging. Garasjen skal brukes til lagring av traktor, båt med tilhenger, ved og annet utstyr, og er plassert i et LNF-område med dispensasjon. Bygget tilpasses tomtens adkomst og eksisterende bolig på eiendommen.
Produkter og materialer
Fasade
Trepanel
🧱 Tre
Tre som fasademateriale på garasje
Fasadebekledning i tre for ny garasje
Dører
Ytterdører
Antall: 3
Tre ytterdører til garasje
Grunnarbeid
Riving og grunnarbeid
Riving av eksisterende garasje, grunnarbeid og støping av grunnmur
Riving av eksisterende bygg og grunnarbeid for ny garasje
Tømrer
Tømrer- og snekkerarbeid
Tømrer- og snekkerarbeid utføres av tiltakshaver med sakkyndig hjelp
Tømrerarbeid for oppføring av garasje
Betong
Grunnmur og støping
🧱 Betong
Støping av grunnmur for ny garasje
Betongarbeid for fundament og grunnmur
Garasjeport
Garasjeport
Antall: 1
Garasjeport til bil/traktor/båt
Tak
Flatt tak
Flatt tak på garasje
Taktekking for flatt tak på garasje
Fasader
Garasje
Sør
- Materiale
- Tre
- Taktype
- Flatt tak
- Høyde
- 2.5 m
- Vinduer
- 0
- Dører
- 3
- Synlige etasjer
- 1
Enebolig
Vest
- Materiale
- Tre
- Taktype
- Saltak
- Høyde
- 6.3 m
- Vinduer
- 0
- Dører
- 0
- Synlige etasjer
- 1
Øst
- Materiale
- Tre
- Taktype
- Saltak
- Høyde
- 6.3 m
- Vinduer
- 1
- Dører
- 0
- Synlige etasjer
- 1
Sørlig
- Materiale
- Tre
- Taktype
- Saltak
- Vinduer
- 0
- Dører
- 0
- Synlige etasjer
- 1
Sør
- Materiale
- Tre
- Taktype
- Saltak
- Høyde
- 6.3 m
- Vinduer
- 0
- Dører
- 0
- Synlige etasjer
- 1
Hendelser
22.04.2026
Gnr 38 bnr 56 - Flakk 142 - dispensasjon og tillatelse til oppføring av garasje
21.04.2026
Nye tegninger
23.03.2026
Søknad om tillatelse til tiltak - ett-trinns søknadsbehandling