Rendering
3D-visualisering av et takkonstruksjon (sannsynligvis et dobbelttak) med tydelig visning av taklister, takplater og takramme.
1 / 7
NewConstruction
UnderBehandling
Garasje
Ny dobbel garasje i Formoveien 120, Modum
📍 Formoveien 120 , 3340 ÅMOT
Nøkkelinfo
- Sakstype
- Nybygg
- Bygningstype
- Garasje
- Bruksareal
- 35 m²
- Kommune
- Modum
- Fylke
- Buskerud
- Gnr / Bnr
- 60 / 101
- Saksnummer
- 2026/1180
- Fase
- Under behandling
Om byggesaken
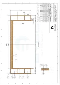
Ny frittstående dobbel garasje på ca. 35-48,4 m² med saltak og trepanel som fasademateriale. Garasjen har en gesimshøyde på 6,2 meter og mønehøyde på 7,8 meter, og er plassert med minst 1,8 meter avstand til nabogrense. Bygget har en garasjeport og én dør, og er planlagt oppført på en eiendom i LNFR-område med privat vei. Det foreligger avstandserklæringer og nabosamtykke, samt situasjonsplan og tekniske tegninger som viser konstruksjon og plassering.
Produkter og materialer
Isolasjon
Isolasjon for garasje
Isolasjon til vegger og tak i garasje
Elektro
Elektrisk anlegg
Elektrisk installasjon for belysning og strøm i garasje
Grunnarbeid
Fundamentering og grunnmur
Grunnmur og fundamentering iht. tegninger
Grunnarbeid for garasje med fundament og grunnmur
Tømrer
Reisverk og konstruksjon
🧱 Tre
Reisverk og konstruksjon i tre iht. tegninger
Tømrerarbeid for reisverk og konstruksjon av garasje
Fasade
Trepanel
🧱 Tre
Tre som fasademateriale på alle fasader
Trepanel til utvendig kledning av garasje
Maling
Utvendig maling
Maling av trepanel utvendig
Tak
Saltak
Saltak med mønehøyde 7,8 meter og gesimshøyde 6,2 meter
Saltak til garasje med tilhørende takmaterialer
Dører
Ytterdør
Antall: 1
Ytterdør til garasje
Garasjeport
Dobbel garasjeport
Antall: 1
Garasjeport for dobbel garasje
Fasader
Garasje
Vest
- Materiale
- Tre
- Taktype
- Saltak
- Høyde
- 6.2 m
- Mønehøyde
- 7.8 m
- Vinduer
- 0
- Dører
- 1
- Synlige etasjer
- 1
Sør
- Materiale
- Tre
- Taktype
- Saltak
- Høyde
- 6.2 m
- Mønehøyde
- 7.8 m
- Vinduer
- 0
- Dører
- 0
- Synlige etasjer
- 1
Hendelser
20.04.2026
Svar - Melding om ettersendelse av dokumenter - Gnr 60 bnr 101 - Formoveien 120
20.04.2026
Signert avstandserklæring - Gnr 60 bnr 101 - Formoveien 120
31.03.2026
Melding om ettersendelse av dokumenter - Gnr 60 bnr 101 - Formoveien 120
10.03.2026
Søknad om tillatelse til tiltak uten ansvarsrett - Gnr 60 bnr 101 - Formoveien 120