Facade
Fasadetegning som viser bygningens utseende fra alle fire sider (Nord, Vest, Sør, Øst).
1 / 5
NewConstruction
UnderBehandling
Garasje
Ny frittstående garasje i Friggs vei 36, Åmot
📍 Friggs vei 36 , 3340 ÅMOT
Nøkkelinfo
- Sakstype
- Nybygg
- Bygningstype
- Garasje
- Bruksareal
- 53 m²
- Kommune
- Modum
- Fylke
- Buskerud
- Gnr / Bnr
- 52 / 307
- Saksnummer
- 2026/941
- Fase
- Under behandling
Om byggesaken
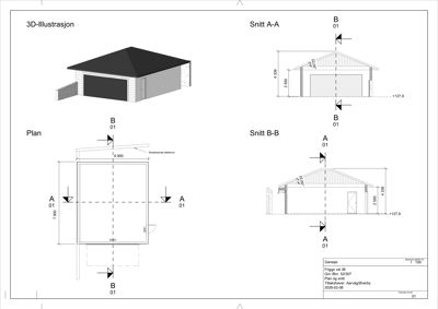
Ny frittstående garasje på 53,1 m² med saltak og trepanel på fasader mot nord, vest og øst, samt betongfasade mot sør. Garasjen har ett garasjeport på nordfasaden og en dør på vestfasaden. Bygget er plassert nær nabogrense med 1 meters avstand og har en gesimshøyde på maks 2,8 meter. Garasjen er prosjektert for å romme tre biloppstillingsplasser innenfor samme bebygd areal (BYA) som reguleringsplanen tillater, men med dispensasjon fra byggegrense mot vei. Bygget er tilpasset terrenget og hensyntar universell utforming ved å ikke blokkere adkomst til utleieenhet i hovedbygget.
Produkter og materialer
Tak
Saltak
Saltak med takvinkel 22 grader
Saltak på hele garasjen med takvinkel tilpasset hovedhus
Fasade
Trepanel
🧱 Tre
Trepanel på fasader mot nord, vest og øst
Fasademateriale i tre på tre sider av garasjen
Grunnarbeid
Fundamentering og grunnmur
Grunnarbeid og fundamentering tilpasset terreng og eksisterende støttemur
Garasjeport
Garasjeport
Antall: 1
En garasjeport på nordfasade
Maling
Utvendig maling
Maling av trepanel og eventuelt andre utvendige flater
Elektro
Belysning og strøm
Elektrisk installasjon for belysning og strøm i garasje
Dører
Ytterdør
Antall: 1
En dør på vestfasade for adkomst til garasjerom
Tømrer
Bærekonstruksjon og kledning
🧱 Tre
Tømrerarbeid for bærekonstruksjon og trepanel
Fasade
Betongfasade
🧱 Betong
Betongfasade på sørfasade
Betong som fasademateriale på sørfasade
Plantegning
Garasje 53.1 m²
Etasje 1 53.1 m²
| Rom | Areal | Vinduer | Dører |
|---|---|---|---|
| Garasjerom 101 | 53.1 m² | 0 | 1 |
Fasader
Garasje
Nord
- Materiale
- Tre
- Taktype
- Saltak
- Vinduer
- 0
- Dører
- 0
- Synlige etasjer
- 1
Vest
- Materiale
- Tre
- Taktype
- Saltak
- Vinduer
- 0
- Dører
- 1
- Synlige etasjer
- 1
Sør
- Materiale
- Betong
- Taktype
- Saltak
- Vinduer
- 0
- Dører
- 0
- Synlige etasjer
- 1
Øst
- Materiale
- Tre
- Taktype
- Saltak
- Vinduer
- 0
- Dører
- 0
- Synlige etasjer
- 1
Hendelser
16.04.2026
Dispensasjon fra vegmyndigheten - Gnr 52 bnr 307 - Friggs vei 36
06.03.2026
Høringsforespørsel - Avstand til kommunal veg - Gnr 52 bnr 307 - Friggs vei 36
25.02.2026
Søknad om tillatelse til tiltak uten ansvarsrett - Gnr 52 bnr 307 - Friggs vei 36