NewConstruction UnderBehandling Garasje

Ny frittliggende garasje i Frøylandsveien 1, Vanse

📍 Frøylandsveien 1 , 4560 VANSE

Nøkkelinfo

Sakstype
Nybygg
Bygningstype
Garasje
Bruksareal
161 m²
Kommune
Farsund
Fylke
Agder
Gnr / Bnr
98 / 40
Saksnummer
26/00297
Fase
Under behandling

Om byggesaken

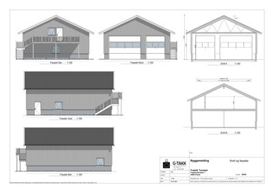
Ny frittliggende garasje i to etasjer med totalt bruksareal på 161,1 m² og bebygd areal på 147 m² oppføres på sammenslått tomt 98/39 og 98/40 i Frøylandsveien 1, Vanse. Garasjen har hovedplan med garasjeareal på 123,3 m², samt lager og WC, og en hems på 38,1 m². Bygget har saltak og tre som fasademateriale. Garasjen plasseres midt på tomta, ikke parvis i tomtegrense som reguleringsplanen krever. Tiltaket krever dispensasjon fra reguleringsplanens bestemmelser om utnyttelsesgrad (30 % mot 20 % tillatt), etasjeantall (2 etasjer mot 1 tillatt), plassering av garasje og sammenslåing av tomter. Det foreligger nabomerknader mot tiltakets størrelse og høyde. Kommunen har avslått dispensasjonssøknaden, men prosjektet er et reelt byggeprosjekt med full prosjektering og ansvarlige aktører.

Produkter og materialer

Elektro Elektrisk anlegg

Elektrisk installasjon i garasje og lager

Elektroinstallasjon for belysning og strøm i garasje

Garasjeport Garasjeport

Antall: 1

Garasjeport i garasje med bredde 5,0 m og høyde 3,7 m

Garasjeport for biladkomst til garasje

Maling Utvendig og innvendig maling

Maling av trefasade og innvendige overflater

Maling av fasade og innvendige vegger i garasje

Betong Grunnmur og støttemur

Grunnmur og støttemur i tilknytning til garasje

Betongarbeid for grunnmur og støttemur

Fasade Tre kledning

🧱 Tre

Tre som fasademateriale på garasje

Tre kledning på garasje

Isolasjon Isolasjon i vegger og tak

Isolasjon i vegger og tak for oppvarmet lager og WC

Isolasjon for termisk komfort og energibesparelse

Trapper Innvendig trapp til hems

Antall: 1

Trapp til hems i garasje

Innvendig trapp for adkomst til hems/lager i garasje

Tak Saltak

🧱 Tre

Antall: 1

Saltak på garasje med gesimshøyde 4,45 m og mønehøyde 6,85 m

Tak med saltak konstruksjon i tre

VVS WC installasjon

Antall: 1

WC på 4 m² i garasje med vann- og avløpsinstallasjon

VVS installasjon for WC i garasje

Dører Ytterdører til garasje og lager

Antall: 4

2 dører til garasje, 1 dør til WC, 1 dør til lager

Ytterdører for adkomst til garasje, lager og WC

Grunnarbeid Tomtesammenslåing og grunnarbeid

Sammenslåing av tomt 98/39 og 98/40, grunnarbeid for ny garasje

Grunnarbeid for sammenslått tomt og fundamentering av garasje

Plantegning

Garasje 125.9 m²

Etasje 1 125.9 m²

Rom Areal Vinduer Dører
Garasje Garasje 123.3 m² 0 2
WC WC 4.0 m² 0 1
Lager Lager 39.6 m² 0 1

Fasader

Enebolig

Sør
Materiale
Tre
Taktype
Saltak
Høyde
4.5 m
Mønehøyde
6.8 m
Vinduer
2
Dører
1
Balkonger
1
Synlige etasjer
2
Vest
Materiale
Tre
Taktype
Saltak
Høyde
4.5 m
Mønehøyde
6.8 m
Vinduer
1
Dører
1
Synlige etasjer
2
Øst
Materiale
Tre
Taktype
Saltak
Høyde
4.5 m
Mønehøyde
6.8 m
Vinduer
1
Dører
0
Balkonger
1
Synlige etasjer
2

Garasje

Nord
Materiale
Tre
Taktype
Saltak
Høyde
4.5 m
Mønehøyde
6.8 m
Vinduer
4
Dører
2
Synlige etasjer
1

Hendelser

21.04.2026 26/00297-7 Oversendelse av vedtak i utvalgssak - søknad om frittliggende garasje samt sammenslåing av 98/40 med 98/39, Frøylandsveien 1
17.03.2026 26/00297-4 Søknad om dispensasjon - Garasje 98/40, Frøylandsveien
13.02.2026 26/00297-2 DOK-analyse - 98/39/0/0 Frøylandsveien 1
09.02.2026 26/00297-1 Søknad om oppføring av frittliggende garasje samt sammenslåing av 98/40 med 98/39, Frøylandsveien 1