Rendering
3D-visualisering av en bygning sett fra en vinkel som viser fasade og tak.
1 / 15
NewConstruction
UnderBehandling
Garasje
Ny dobbelgarasje med bod på Hyggenhagan 11
📍 Hyggenhagan 11 , 3442 HYGGEN
Nøkkelinfo
- Sakstype
- Nybygg
- Bygningstype
- Garasje
- Bruksareal
- 68 m²
- Kommune
- Asker
- Fylke
- Akershus
- Gnr / Bnr
- 274 / 43
- Saksnummer
- 26/285
- Fase
- Under behandling
Om byggesaken
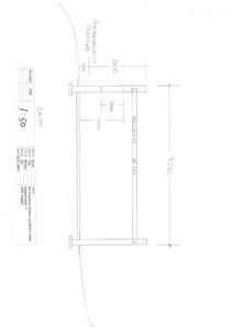
Ny dobbelgarasje på ca. 68 m² med integrert bod og hobbyrom oppføres på eiendommen Hyggenhagan 11. Garasjen bygges med EPS veggelementer med 15 cm betong i midten og tak i HD 200 materiale. Bygget plasseres i skrånende terreng, med gesimshøyde på ca. 3 meter, og har trevegger utvendig. Garasjen har en garasjeport i frontfasaden og er planlagt flyttet og rotert for å unngå VA-ledninger og flomutsatte områder. Det er én trapp i bygget, og det er tatt hensyn til nabogrense og terrengstabilitet i fundamentering og plassering.
Produkter og materialer
Garasjeport
Garasjeport i frontfasade
Antall: 1
Garasjeport for to biloppstillingsplasser
Maling
Utvendig trepanel maling
🧱 Tre
Trevegger utvendig, må males eller behandles
Overflatebehandling av yttervegger i tre
Tak
Tak i HD 200 materiale
🧱 HD 200
Tak i HD 200 materiale
Tak til garasje
Fasade
Yttervegger i EPS veggelementer med betongkjerne
🧱 EPS med 15 cm betong i senter
EPS veggelementer med 15 cm betong i midten
Vegger til dobbelgarasje med bod og hobbyrom
VVS
Avløpsledning tilkobling
Garasjen plasseres nær egen avløpsledning
Tilknytning til avløpssystem
Grunnarbeid
Fundamentering og støttemur
Fundament/støttemur lavere enn avløpsledning, sikring mot terrengskred
Grunnarbeid med fundamentering og støttemur tilpasset skrånende terreng
Trapper
Innvendig trapp
Antall: 1
Trapp inne i garasje/bod-hobbyrom bygget
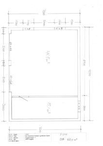
Plantegning
Enebolig 68.4 m²
Etasje 1 68.4 m²
| Rom | Areal | Vinduer | Dører |
|---|---|---|---|
| Stue 101 | 44.5 m² | 0 | 1 |
| Gang 102 | 15.1 m² | 0 | 1 |
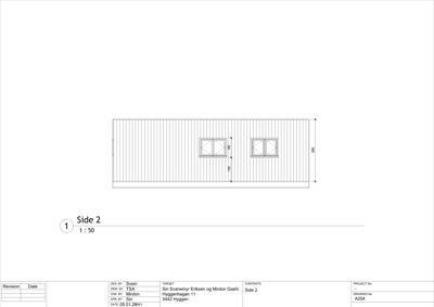
Fasader
Hovedbygg
Bak
- Materiale
- Tre
- Vinduer
- 2
- Dører
- 0
- Synlige etasjer
- 1
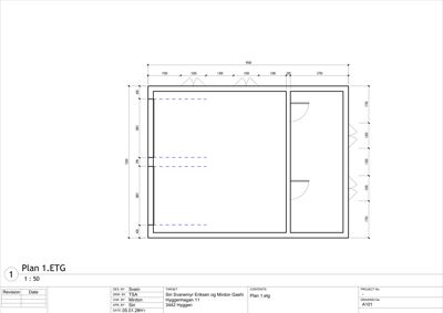
Garasje
Front
- Materiale
- Tre
- Høyde
- 3.0 m
- Vinduer
- 0
- Dører
- 0
- Synlige etasjer
- 1
Hendelser
13.04.2026
274/43 Hyggenhagan 11 - Revidert plan / Omprosjektering
25.02.2026
274/43 Hyggenhagan 11 - Tiltaket omprosjekteres
12.02.2026
274/43 Hyggenhagan 11 - Varsel om avslag og ufullstendig søknad for oppføring av garasje
29.01.2026
274/43 Hyggenhagan 11 - Søknad om tiltak uten ansvarsrett - Garasje