NewConstruction Avslatt Garasje

Ny garasje med hobbyrom på Ishusbakken 15, Kragerø

📍 Ishusbakken 15 , 3766 SANNIDAL

Nøkkelinfo

Sakstype
Nybygg
Bygningstype
Garasje
Bruksareal
36 m²
Kommune
Kragerø
Fylke
Telemark
Gnr / Bnr
65 / 383
Saksnummer
2024/3637
Fase
Avslått

Om byggesaken

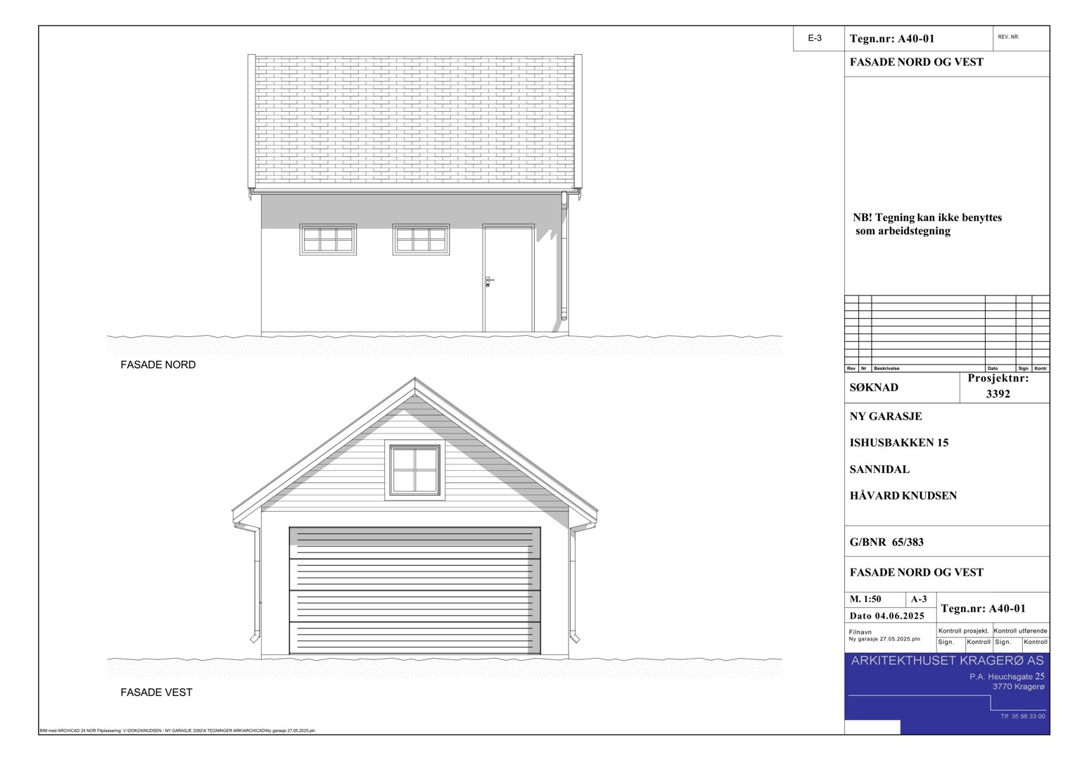
Ny frittstående garasje på ca. 36 m² med saltak og takvinkel på 36 grader oppføres på eiendommen Ishusbakken 15 i Kragerø. Garasjen har gesimshøyde på 3,2 m og mønehøyde på 5,38 m, og inneholder plass til to biler samt et hobbyrom. Bygget plasseres ca. 1,5 meter fra nabogrense og 4,5-4,6 meter fra annen bygning på egen tomt. Garasjen bygges i tre med saltak og har garasjeport på vest- og sørfasade. Tiltaket medfører en samlet utnyttelsesgrad på 19,4 % BYA på tomten, noe som overskrider reguleringsplanens maksimum på 15 %, og det er søkt dispensasjon for dette. Det foreligger skriftlige nabosamtykker for plassering nærmere nabogrense enn normalt tillatt. Tiltaket er godkjent etter klagebehandling, men opprinnelig avslått pga. dispensasjonsavslag.

Produkter og materialer

Brannvern Brannsikring hobbyrom

Gasstett skillevegg mellom garasje og hobbyrom for beskyttelse mot gass og eksos

Brannsikring av hobbyrom i garasje

Tak Saltak

🧱 Takstein eller lignende

Saltak med 36° takvinkel

Taktekking for garasje med saltak

Dører Ytterdør

🧱 Tre eller metall

Antall: 1

1 dør på vestfasade

Ytterdør til hobbyrom i garasje

Garasjeport Dobbel garasjeport

Antall: 1

Garasjeport på vest- og sørfasade

Garasjeport for biloppstilling

Fasade Trepanel

🧱 Tre

Garasje i tre med saltak, takvinkel 36°, gesimshøyde 3,2 m, mønehøyde 5,38 m

Yttervegger i trepanel for garasje

Elektro Innvendig belysning og strøm

Elektrisk installasjon for garasje og hobbyrom

Strøm og belysning i garasje

Vinduer Fasadevindu

🧱 Tre eller aluminium

Antall: 1

1 vindu på vestfasade

Fasadevindu i garasje

Maling Utvendig maling

Maling av trepanel på garasje

Overflatebehandling utvendig

Grunnarbeid Ringmur

🧱 Armert betong eller Lecablokk

Støpt armert ringmur 100 mm bredde, minimum 250 mm høyde over ferdig gulv

Fundamentering for garasje

Fasader

Enebolig

Nord
Materiale
Tre
Taktype
Saltak
Vinduer
2
Dører
1
Synlige etasjer
1

Garasje

Vest
Materiale
Tre
Taktype
Saltak
Vinduer
1
Dører
1
Synlige etasjer
1
Sør
Taktype
Saltak
Vinduer
0
Dører
0
Synlige etasjer
1
Øst
Taktype
Saltak
Vinduer
0
Dører
0
Synlige etasjer
1

Hendelser

21.04.2026 Utbetalingsgrunnlag sakskostnader - Gbnr. 65/383 - Ishusbakken 15 - Søknad om garasje
17.04.2026 Opplysninger vedr. dekning av sakskostnader - Gbnr. 65/383 - Ishusbakken 15 - Søknad om garasje
15.04.2026 Vedtak om dekning av sakskostnader - Gbnr. 65/383 - Ishusbakken 15 - Søknad om garasje - Klage
16.03.2026 Bekreftelse på mottatt begjæring om dekning av sakskostnader - Gbnr. 65/383 - Ishusbakken 15 - Søknad om garasje
16.03.2026 Begjæring av dekning av sakskostnader - Gbnr. 65/383 - Ishusbakken 15 - Søknad om garasje
02.03.2026 Melding om vedtak - Gbnr. 65/383 - Ishusbakken 15 - Søknad om garasje - Klage tatt til følge
28.01.2026 Bekreftelse på mottatt klage og informasjon om saksbehandlingstid - Gbnr. 65/383 - Ishusbakken 15 - Søknad om garasje - Klage
27.01.2026 Saksfremlegg - Gbnr. 65/383 - Ishusbakken 15 - Garasje - Klage
05.11.2025 Klage på administrativt vedtak - Gbnr. 65/383 - Ishusbakken 15 - Søknad om garasje
15.10.2025 Avslag - Gbnr. 65/383 - Ishusbakken 15 - Søknad om garasje
15.10.2025 Fakturagrunnlag - Gbnr. 65/383 - Ishusbakken 15 - Søknad om garasje
11.09.2025 Anmoder om videre saksbehandling - Gbnr. 65/383 - Ishusbakken 15 - Søknad om garasje
08.09.2025 Foreløpig vurdering - Søknad om tillatelse til tiltak uten ansvarsrett - Gbnr. 65/383 - Ishusbakken 15 - Søknad om garasje
21.07.2025 Søknad om tillatelse til tiltak uten ansvarsrett - Gbnr. 65/383 - Ishusbakken 15 - Søknad om garasje
23.08.2024 Korrespondanse om søknadsplikt - Gbnr. 65/383 - Ishusbakken 15 - Garasje
02.08.2024 Behov for tilleggsdokumentasjon - Gbnr. 65/383 - Ishusbakken 15 - Garasje
24.07.2024 Søknad - Gbnr 65/383 - Garasje