Facade
Fasadetegning som viser bygningens utseende sett fra nord og vest, inkludert detaljer som vinduer, dører og takform.
1 / 4
NewConstruction
UnderBehandling
Garasje
Ny uthus med garasje på Jovikvegen 52
📍 Jovikvegen 52 , 4276 VEAVÅGEN
Nøkkelinfo
- Sakstype
- Nybygg
- Bygningstype
- Garasje
- Bruksareal
- 62 m²
- Kommune
- Karmøy
- Fylke
- Rogaland
- Gnr / Bnr
- 3 / 217
- Saksnummer
- 2026/1577
- Fase
- Under behandling
Om byggesaken
Ny frittstående uthusbygning med garasje på totalt 62,5 m² fordelt på en etasje. Garasjen har et areal på 47,8 m² med tre vinduer og en dør, samt et trapperom/bod på 14,7 m² med en dør. Bygget skal fungere som oppbevaringsplass for bobil og lager/bøteloft tilknyttet fiskeri. Bygningen er planlagt med saltak og tilpasset for å motstå vind og salt fra sjøen. Det er også et bøteloft på 48,5 m² i andre etasje, ifølge tegninger. Bygget er plassert på eiendommen Jovikvegen 52, Gnr 3, Bnr 217 i Karmøy kommune.
Produkter og materialer
Trapper
Innvendig trapp
Antall: 1
Innvendig trapp til bøteloft
Tømrer
Bygging av bærende konstruksjoner
Antall: 1
Tømrerarbeid for oppføring av uthus og garasje
Fasade
Uthusfasade
Antall: 1
Fasade til uthus med garasje, tilpasset lokal klima
Tak
Saltak
Antall: 1
Saltak tilpasset for vind- og saltpåvirkning fra sjøen
Grunnarbeid
Fundamentering og grunnarbeid
Antall: 1
Grunnarbeid for ny uthusbygning med garasje
Vinduer
Fasadevindu
Antall: 3
Tre fasadevinduer i garasjen
Dører
Ytterdør
Antall: 2
To ytterdører, en til garasje og en til trapperom/bod
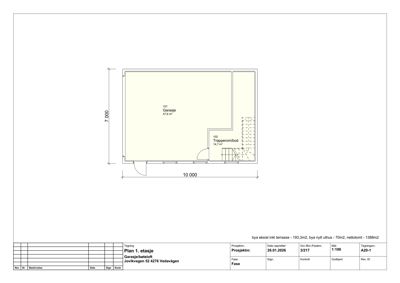
Plantegning
Garasje 62.5 m²
Etasje 1 62.5 m²
| Rom | Areal | Vinduer | Dører |
|---|---|---|---|
| Garasje 101 | 47.8 m² | 3 | 1 |
| Trapperom/bod 102 | 14.7 m² | 0 | 1 |
Hendelser
14.04.2026
Tilbakemelding om mangler - Uthus med garasje - Gnr. 3, bnr. 217 - Jovikvegen 52
14.04.2026
Gnr. 3, bnr. 217 - Supplering av nabovarsel
25.03.2026
Gnr. 3, bnr. 217 - Vedrørende behandlingstid
27.02.2026
Gnr. 3, bnr. 217 - Uthus med garasje - Jovikvegen 52