Rendering
3D-visualisering (rendering) av en garasje sett fra en vinkel som viser fasade og tak.
1 / 5
NewConstruction
Igangsettingstillatelse
Garasje
Ny garasje med dispensasjon i Øvreveien 33, Vadsø
📍 Kariel, Øvreveien 33 , 9802 VESTRE JAKOBSELV
Nøkkelinfo
- Sakstype
- Nybygg
- Bygningstype
- Garasje
- Bruksareal
- 98 m²
- Kommune
- Vadsø
- Fylke
- Finnmark - Finnmárku - Finmarkku
- Gnr / Bnr
- 6 / 158
- Saksnummer
- 2025/9442
- Fase
- Igangsettingstillatelse
Om byggesaken
Ny frittstående garasje på 98,1 m² bruttoareal (89,7 m² bruksareal) oppføres på eiendommen Øvreveien 33 i Vadsø kommune. Garasjen bygges i tre med saltak og har en mønehøyde noe høyere enn standard boliggarasje. Bygget plasseres på østsiden av eksisterende enebolig, mellom Øvreveien og lysløypa, og erstatter et eksisterende anneks som rives. Fasader har totalt 6 vinduer og 1 dør, samt en garasjeport. Garasjen skal brukes til oppbevaring av kjøretøy, redskap og golfutstyr, og gir mulighet for innendørs parkering hele året. Tiltaket er plassert innenfor et aktsomhetsområde for kvikkleireskred, og krav til sikker byggegrunn er ivaretatt. Dispensasjon er gitt for å fravike plankrav og byggegrense mot kommunal vei. Prosjektet har ansvarlige foretak for prosjektering, utførelse og kontroll, og er i fase igangsetting.
Produkter og materialer
Tak
Saltak
🧱 Taktekking ikke spesifisert
Saltak med noe høyere mønehøyde enn standard boliggarasje
Tak med saltak konstruksjon
Tømrer
Trekonstruksjoner
🧱 Tre
Tømrerarbeider og montering av trekonstruksjoner
Trekonstruksjoner for garasje
Vinduer
Fasadevindu
Antall: 6
2 vinduer på sørfasade, 4 vinduer på østfasade
Fasadevinduer i garasje
Dører
Ytterdør
Antall: 1
1 dør på sørfasade
Ytterdør til garasje
Grunnarbeid
Fundamentering og grunnarbeid
Grunnarbeid og fundamentering iht. krav for kvikkleiresikring
Grunnarbeid med dokumentert sikker byggegrunn
Fasade
Trepanel
🧱 Tre
Garasjen bygges i tre med trepanel på fasader
Yttervegger i tre
Garasjeport
Garasjeport
Antall: 1
Garasjeport på sørfasade
Port for bilinnkjøring
Betong
Fundament og plate
Plasstøpte betongkonstruksjoner for fundamentering
Betongfundament og plate for garasje
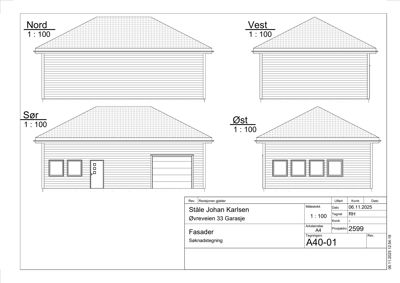
Fasader
Garasje
Nord
- Materiale
- Tre
- Taktype
- Saltak
- Vinduer
- 0
- Dører
- 0
- Synlige etasjer
- 1
Vest
- Materiale
- Tre
- Taktype
- Saltak
- Vinduer
- 0
- Dører
- 0
- Synlige etasjer
- 1
Sør
- Materiale
- Tre
- Taktype
- Saltak
- Vinduer
- 2
- Dører
- 1
- Synlige etasjer
- 1
Øst
- Materiale
- Tre
- Taktype
- Saltak
- Vinduer
- 4
- Dører
- 0
- Synlige etasjer
- 1
Hendelser
16.04.2026
Søknad om igangsettingstillatelse - GBNR 6/158 - Øvreveien 33
10.03.2026
Rammetillatelse - GBNR 6/158 - oppføring av garasje - Øvreveien 33
03.03.2026
Behandling av søknad om dispensasjon - Oppføring av garasje - GBNR 6/158 - Øvreveien 33
30.01.2026
Behandling av søknad om dispensasjon - Oppføring av garasje - GBNR 6/158 - Øvreveien 33
27.01.2026
Uttalelse til søknad om dispensasjon til uttalelse - Oppføring av garasje - Øvreveien 33 - gbnr. 6/158 - Vadsø kommune
27.01.2026
Uttalelse - dispensasjon - Vadsø 6/158 - Øvreveien 33 - oppføring av garasje
26.01.2026
Uttalelse til høring - oppføring av garasje - GBNR 6/158 - Øvreveien 33
22.01.2026
Uttalelse vedrørende søknad om dispensasjon til oppføring av garasje - gbnr. 6/158, Øvreveien 33