Section
Snittegning som viser tverrsnittet av en bygning eller struktur med angitte mål og dimensjoner.
1 / 17
NewConstruction
UnderBehandling
Garasje
Ny frittstående garasje på Kvannkjosen 35, Lødingen
📍 Kvannkjosen 35 , 8412 VESTBYGDA
Nøkkelinfo
- Sakstype
- Nybygg
- Bygningstype
- Garasje
- Bruksareal
- 60 m²
- Kommune
- Lødingen
- Fylke
- Nordland - Nordlánnda
- Gnr / Bnr
- 1 / 5
- Saksnummer
- 2026/327
- Fase
- Under behandling
Om byggesaken
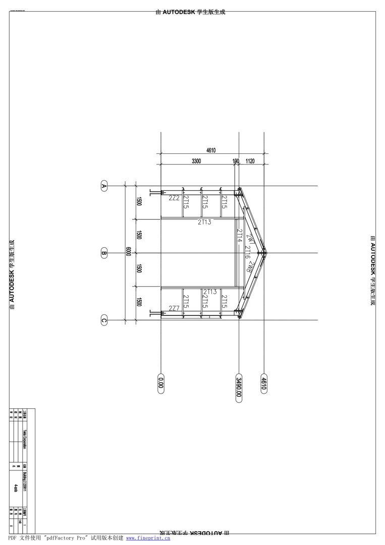
Ny frittstående garasje på 60 m² med mål 6x10 meter og høyde 3,55 meter skal oppføres på eiendommen Kvannkjosen 35 i Lødingen kommune. Bygget er planlagt som en stålrammekonstruksjon med tak- og veggpaneler, beregnet for lagring av kjøretøy og sesongutstyr knyttet til vedlikehold av landbrukseiendommen. Garasjen plasseres med tilfredsstillende avstand til nabogrense og andre bygg, og oppfyller tekniske krav uten behov for dispensasjon bortsett fra areal som overskrider maksimal tillatt størrelse i reguleringsplanen. Bygget har ikke boligformål og krever ikke ansvarsrett.
Produkter og materialer
Tak
Takpaneler
🧱 Stål
Stål takpaneler for garasjekonstruksjon
Takpaneler til garasjens stålrammekonstruksjon
Tømrer
Stålrammekonstruksjon
🧱 Stål
Stålramme 6x10 m, høyde 3,55 m
Bærekonstruksjon for garasje
Dører
Garasjeport
Antall: 1
Garasjeport for kjøretøysadkomst
Fasade
Veggpaneler
🧱 Stål
Stål veggpaneler for garasjekonstruksjon
Veggpanelet til garasjens stålrammekonstruksjon
Elektro
Belysning og stikkontakter
Elektrisk installasjon for belysning og strøm i garasje
Grunnarbeid
Fundamentering
Grunnarbeid og fundamentering for garasje på 60 m²
Hendelser
13.04.2026
SV: Gnr. 1, bnr. 5 - Søknad om bygging av garasje
10.04.2026
Gnr. 1, bnr. 5 - Søknad om bygging av garasje
08.04.2026
Kvannkjosen 35 Søknad om tillatelse til tiltak uten ansvarsrett 1/5