Facade
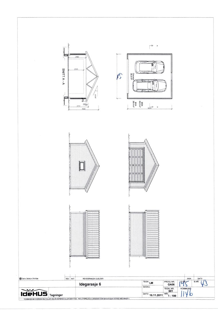
Fasadetegning for en idegarasje (garasje) som viser utsiden av bygningen fra fire ulike vinkler.
1 / 5
NewConstruction
Soeknad
Garasje
Ny garasje med bod i Liarvågvegen 1007, Tysvær
📍 Liarvågvegen 1007 , 5560 NEDSTRAND
Nøkkelinfo
- Sakstype
- Nybygg
- Bygningstype
- Garasje
- Bruksareal
- 37 m²
- Kommune
- Tysvær
- Fylke
- Rogaland
- Gnr / Bnr
- 145 / 43
- Saksnummer
- 2026/1853
- Fase
- Søknad
Om byggesaken
Ny frittstående garasje med tilhørende bod på totalt ca. 37,2 m² BRA oppføres på eiendommen i Liarvågvegen 1007, Tysvær kommune. Bygget har saltak og er utført i tre med gesimshøyde på 2,4 meter og mønehøyde på 3,6 meter. Fasaden består av treverk, med en garasjeport på østfasaden og en dør på samme side. Garasjen er ettetasjes og tilpasses eksisterende fritidsbolig på eiendommen. Det er gitt dispensasjon fra byggegrense mot fylkesvei 4784, og tiltaket inkluderer nødvendig grunnarbeid, fundamentering og tilknytning til vann og avløp. Byggmester Magnar Halvorsen er ansvarlig søker og utførende.
Produkter og materialer
Tømrer
Bygningskonstruksjon i tre
🧱 Tre
Tømrerarbeid for oppføring av garasje og bod i tre
VVS
Vann og avløp
Tilknytning til offentlig vann og avløp
Vann- og avløpsinstallasjoner til garasje/bod
Tak
Saltak
🧱 Tre, taktekking ikke spesifisert
Saltak med gesimshøyde 2,4 m og mønehøyde 3,6 m
Saltak med tilhørende taktekking
Dører
Ytterdør
Antall: 1
En ytterdør på østfasade
Fasade
Trepanel
🧱 Tre
Trepanel på alle fasader
Ytterkledning i tre på alle fasader
Grunnarbeid
Fundamentering og grunnarbeid
Grunnarbeid og fundamentering for garasje og bod
Garasjeport
Garasjeport
Antall: 1
Garasjeport på østfasade
Vinduer
Fasadevindu
Antall: 1
Ett vindu på vestfasade
Fasader
Idegarasje 6
Vest
- Materiale
- Tre
- Taktype
- Saltak
- Høyde
- 2.4 m
- Mønehøyde
- 3.6 m
- Vinduer
- 1
- Dører
- 0
- Synlige etasjer
- 1
Øst
- Materiale
- Tre
- Taktype
- Saltak
- Høyde
- 2.4 m
- Mønehøyde
- 3.6 m
- Vinduer
- 0
- Dører
- 1
- Synlige etasjer
- 1
Nord
- Materiale
- Tre
- Taktype
- Saltak
- Høyde
- 2.4 m
- Mønehøyde
- 3.6 m
- Vinduer
- 0
- Dører
- 0
- Synlige etasjer
- 1
Sør
- Materiale
- Tre
- Taktype
- Saltak
- Høyde
- 2.4 m
- Mønehøyde
- 3.6 m
- Vinduer
- 0
- Dører
- 0
- Synlige etasjer
- 1
Hendelser
16.04.2026
Gbnr 145/43 - Søknad - garasje med bod - Liarvågvegen 1007
16.04.2026
Gbnr 145/43 - Søknad - revidert - garasje med bod - Liarvågvegen 1007