Facade
Fasadetegning som viser bygningens utseende fra fire ulike vinkler (Vest, Øst, Nord og Sør).
1 / 9
NewConstruction
UnderBehandling
Garasje
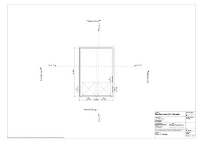
Ny frittstående garasje i Mørfjærveien 24, Arendal
📍 Mørfjærveien 24 , 4815 SALTRØD
Nøkkelinfo
- Sakstype
- Nybygg
- Bygningstype
- Garasje
- Bruksareal
- 79 m²
- Kommune
- Arendal
- Fylke
- Agder
- Gnr / Bnr
- 44 / 712
- Saksnummer
- 2025/31508
- Fase
- Under behandling
Om byggesaken
Ny frittstående garasje på 79 m² med flatt tak på vest- og østfasade og saltak på nord- og sørfasade, oppført i tre. Garasjen har en garasjeport på nord- og sørfasade, en dør og ett vindu på østfasade, samt ett vindu på vestfasade. Bygget er plassert på en opparbeidet tomt på 1797 m², med lav utnyttelsesgrad på 10,6 %. Garasjen skal brukes til lagring av maskiner, utstyr og materiell for virksomheten til tiltakshaver, og har tradisjonell utførelse tilpasset eksisterende bebyggelse. Bygget er under behandling med dispensasjon fra LNF-formål og avstandskrav til nabogrense.
Produkter og materialer
Dører
Ytterdør
Antall: 1
En ytterdør på østfasade
Maling
Utvendig maling
Maling av trepanel og utvendige flater
Grunnarbeid
Fundamentering og grunnarbeid
Grunnarbeid for garasjens fundamentering på opparbeidet tomt
Tømrer
Bærekonstruksjon og kledning
🧱 Tre
Tømrerarbeid for bærekonstruksjon og kledning i tre
Garasjeport
Garasjeport
Antall: 2
To garasjeporter på nord- og sørfasade
Fasade
Trepanel
🧱 Tre
Trepanel på alle fasader
Ytterkledning i tre på garasjens fasader
Tak
Saltak og flatt tak
Saltak på nord- og sørfasade, flatt tak på vest- og østfasade
Tak med saltak og flate takflater iht. fasadetegninger
Vinduer
Fasadevindu
Antall: 2
To fasadevinduer, ett på østfasade og ett på vestfasade
Betong
Fundament og plate
Betongplate og fundament for garasjen
Fasader
Garasje
Vest
- Materiale
- Tre
- Taktype
- Flatt tak
- Vinduer
- 1
- Dører
- 0
- Synlige etasjer
- 1
Øst
- Materiale
- Tre
- Taktype
- Flatt tak
- Vinduer
- 1
- Dører
- 1
- Synlige etasjer
- 1
Nord
- Materiale
- Tre
- Taktype
- Saltak
- Vinduer
- 0
- Dører
- 0
- Synlige etasjer
- 1
Sør
- Materiale
- Tre
- Taktype
- Saltak
- Vinduer
- 0
- Dører
- 0
- Synlige etasjer
- 1
Hendelser
13.04.2026
Foreløpig svar - 44/712
09.04.2026
44/712 - Ber om status i saken
25.03.2026
Tilbakemelding fra søker - 44/712 - Mørfjærveien - Oppføring av garasje - Halvorsen
25.03.2026
Foreløpig svar - 44/712 - Mørfjærveien - Oppføring av garasje - Halvorsen
20.03.2026
44/712 - Ber om status i sak og videre fremdrift
11.02.2026
44/712 - Ber om status i byggesak
23.01.2026
44/712 - Ber om status i byggesak
08.01.2026
Avstandserklæring - 44/712 - Mørfjærveien 24 - Oppføring av garasje - Jan Halvorsen
09.12.2025
Foreløpig svar - 44/712 - Mørfjærveien 24 - Oppføring av garasje - Jan Halvorsen
31.10.2025
Mørfjærveien, melding om mottatt søknad
30.10.2025
Søknad om tillatelse i ett trinn 44/712