Facade
Fasadetegning av en garasje sett fra sør, med oppgitt mål og materialefarger.
1 / 8
NewConstruction
Soeknad
Garasje
Ny dobbelgarasje på Sjøhaugen 5, Bodø
📍 Sjøhaugen 5 , 8050 TVERLANDET
Nøkkelinfo
- Sakstype
- Nybygg
- Bygningstype
- Garasje
- Bruksareal
- 50 m²
- Kommune
- Bodø
- Fylke
- Nordland - Nordlánnda
- Gnr / Bnr
- 73 / 110
- Saksnummer
- 2026/16099
- Fase
- Søknad
Om byggesaken
Ny frittstående dobbelgarasje på 49,6 m² med saltak og flatt tak på en del av bygget. Garasjen er oppført i tre med saltak på tre fasader og flatt tak på en fasade. Bygget har gesimshøyde på 2,4 meter og mønehøyde på 5,26 meter. Garasjen har to garasjeporter, en dør og to vinduer på nordfasaden. Garasjen er plassert delvis utenfor regulert byggegrense for å minimere innvirkning på naboers utsikt. Bygget har ett plan og er tilknyttet ikke-boligformål.
Produkter og materialer
Maling
Utvendig maling
Maling av utvendig trepanel
Isolasjon
Vegger og tak
Isolasjon i vegger og tak for garasje
Grunnarbeid
Fundamentering og grunnmur
Grunnarbeid for garasje på 49,6 m²
Dører
Ytterdør
Antall: 1
En ytterdør på sørfasade
Garasjeport
Dobbel garasjeport
Antall: 2
To garasjeporter på øst- og sørfasade
Elektro
Innvendig elektrisk anlegg
Elektrisk anlegg for belysning og strøm i garasje
Tak
Saltak og flatt tak
Saltak på øst, vest og sør fasade, flatt tak på nordfasade
Tak med saltak på tre sider og flatt tak på en side
Vinduer
Fasadevindu
Antall: 2
To vinduer på nordfasade
Tømrer
Bærekonstruksjon og reisverk
🧱 Tre
Tømrerarbeid for reisverk og konstruksjon i tre
Fasade
Trepanel
🧱 Tre
Trepanel på alle fasader
Utvendig kledning i tre på garasjens fasader
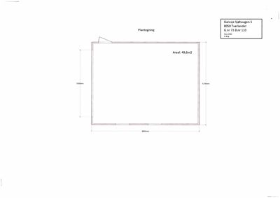
Plantegning
Garasje 49.6 m²
Etasje 1 49.6 m²
| Rom | Areal | Vinduer | Dører |
|---|---|---|---|
| Garasje | 49.6 m² | 0 | 0 |
Fasader
Garasje
Øst
- Materiale
- Tre
- Taktype
- Saltak
- Høyde
- 5.3 m
- Vinduer
- 0
- Dører
- 0
- Synlige etasjer
- 1
Vest
- Taktype
- Saltak
- Høyde
- 2.4 m
- Mønehøyde
- 5.3 m
- Vinduer
- 0
- Dører
- 0
- Synlige etasjer
- 1
Nord
- Materiale
- Tre
- Taktype
- Flatt tak
- Vinduer
- 2
- Dører
- 0
- Synlige etasjer
- 1
Sør
- Materiale
- Tre
- Taktype
- Saltak
- Vinduer
- 0
- Dører
- 1
- Synlige etasjer
- 1
Hendelser
10.04.2026
Bekreftelse på mottatt søknad - Sjøhaugen 5
10.04.2026
Søknad uten ansvarsrett - Sjøhaugen 5