NewConstruction Rammetillatelse Garasje

Oppføring av garasje og arealoverføring på Skagevegen 119, Sande

📍 Skagevegen 119 , 6973 SANDE I SUNNFJORD

Nøkkelinfo

Sakstype
Nybygg
Bygningstype
Garasje
Bruksareal
69 m²
Boenheter
1
Kommune
Sunnfjord
Fylke
Vestland
Gnr / Bnr
174 / 33
Saksnummer
2025/3934
Fase
Rammetillatelse

Om byggesaken

Ny frittstående garasje på 69 m² med kjeller under bakkenivå bygges på eiendommen Skagevegen 119, 6973 Sande i Sunnfjord kommune. Garasjen bygges i tre som grindbygg med god lufting, har saltak og flatt tak, og inkluderer plass til vedlager på nordsiden. Kjelleren har støpt dekke og takhøyde på 189 cm. Garasjen plasseres med minimum 1,4 meter avstand fra jordressursgrense for å unngå påvirkning på landbruksdrift. Det bygges også mur inntil 2,2 meter høy langs ny eiendomsgrense, og terrengtilpasning med parkeringsplass. I tillegg gjennomføres arealoverføring fra to naboeiendommer til denne eiendommen, samt riving av et stabbur. To takoverbygg på til sammen inntil 45 m² knyttes til eksisterende bolig, med materialer som skifer, tre og glass. Tiltaket er tilpasset lokal byggeskikk og landskap, med maksimal mønehøyde 5 m og gesimshøyde 3 m. Arealet på eiendommen økes til ca. 1435 m² etter overføringene.

Produkter og materialer

Grunnarbeid Oppmåling og matrikulering

Oppmålingsforretning og matrikulering av ny eiendomsgrense etter arealoverføring

Grunnarbeid knyttet til oppmåling og matrikulering av eiendom

VVS Ingen endringer

Ingen endringer i vann- og avløpssystem

Ingen nye VVS-installasjoner planlagt

Fasade Tre kledning

🧱 Tre

Garasjen kledd i tre, tilpasset eksisterende bolig

Tre kledning på garasje og takoverbygg

Terrasse Takoverbygg i tre og glass

🧱 Tre, glass, skifer

Antall: 2

To takoverbygg på til sammen 45 m², med tre søyler, skifer og glass

Takoverbygg knyttet til bolig for værbeskyttelse og lysinnslipp

Garasjeport Garasjeport i tre

🧱 Tre

Antall: 1

Garasjeport på nord- og østfasade, tilpasset trebygget garasje

Garasjeport til garasje med flatt tak og saltak, i tre

Riving Riving av stabbur

Antall: 1

Fjerning av eksisterende stabbur for å gi plass til garasje

Riving av frittliggende stabbur uten verneverdi

Isolasjon Vindtetting med gips

🧱 Ett-lags gips

Ett-lags gips montert som vindtetting i anneks

Vindtetting i anneks for brannvern og isolasjon

Elektro Ikke spesifisert

Ingen spesifikke elektroinstallasjoner nevnt

Elektroarbeid ikke detaljert i dokumentene

Tømrer Grindbygg i tre

🧱 Tre

Garasje bygges som grindbygg i tre for god lufting

Tømrerarbeid for garasje og takoverbygg

Gulv Garasjegulv i betong

🧱 Betong

Støpt dekke over kjeller som fungerer som garasjegulv

Betonggulv i garasjekjeller

Rekkverk Ikke spesifisert

Ingen rekkverk nevnt i dokumentene

Ingen rekkverk spesifisert

Mur Betongmur

🧱 Betong

Mur inntil 2,2 meter høy langs ny eiendomsgrense, med 0,5 meter synlig på nordsiden

Betongmur for terrengstøtte og avgrensning

Tak Saltak og flatt tak

🧱 Skifer på takoverbygg, ukjent takmateriale på garasje

Saltak på garasje og takoverbygg, flatt tak på deler av garasje, takoverbygg med skifer og glass

Tak med saltak og flatt tak, takoverbygg med skifer og glass for lysinnslipp

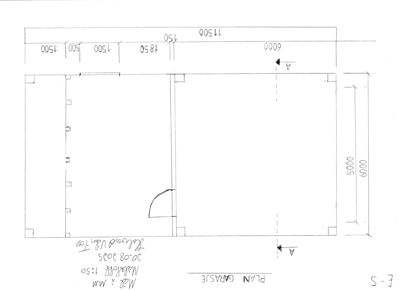
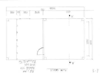
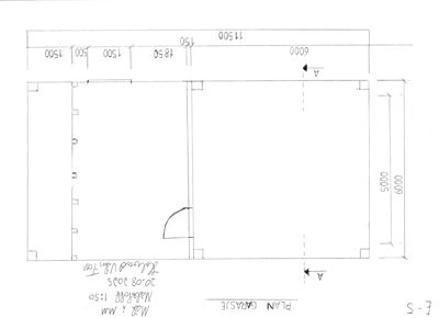
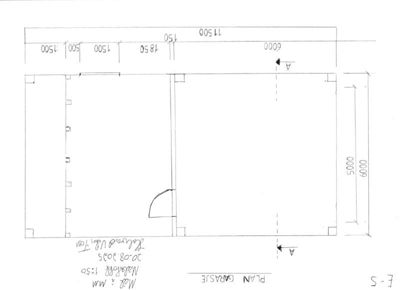
Plantegning

Garasje 66.0 m²

Etasje 1 66.0 m²

Rom Areal Vinduer Dører
Garasje 66.0 m² 0 1
Garasje 66.0 m² 0 1
Garasje 66.0 m² 0 1

Fasader

Garasje

Nord
Materiale
Tre
Taktype
Flatt tak
Vinduer
2
Dører
1
Synlige etasjer
1
Vest
Materiale
Tre
Taktype
Saltak
Høyde
5.0 m
Vinduer
1
Dører
0
Synlige etasjer
1
Sør
Materiale
Tre
Taktype
Flatt tak
Vinduer
0
Dører
0
Synlige etasjer
1
Øst
Materiale
Tre
Taktype
Saltak
Vinduer
1
Dører
0
Synlige etasjer
1

Hendelser

22.04.2026 Delegerte vedtak - Dispensasjon frå arealføremål i kommuneplan, deling etter jordlova og plan- og bygningslova
16.03.2026 NVE si uttale - Høyring - Søknad om dispensasjon frå arealplan for to arealoverføringar frå gnr. 174 bnr. 5 og 8 til gnr. 174 bnr. 33 samt oppføring av garasje - Sunnfjord kommune
26.02.2026 Uttale til søknad om dispensasjon for arealoverføring og oppføring av garasje - gnr. 174 bnr. 33 - Knausen - Sunnfjord kommune
16.02.2026 Til uttale - Dispensasjon frå arealplan for to arealoverøfringar og oppføring av garasje
12.02.2026 Vedkommande søknad om dispensasjon og arealoverføringar mellom gbnr. 174/5 og 174/33, samt mellom gbnr. 174/8 og 174/33
31.10.2025 Tilleggsinformasjon til søknad Gbnr 174/33
24.10.2025 Dispensasjon, arealoverføring og bygging på gbnr. 174/33 mfl - manglar
21.10.2025 Søknad om arealoverføring samt mindre tiltak Gbnr 174/33
06.05.2025 Søknad om arealoverføring Gbnr 174/33 – avklaring rundt gebyr
05.05.2025 Forespørsel - Søknad om arealoverføring gbnr 174/33 – avklaring rundt gebyr