SitePlan
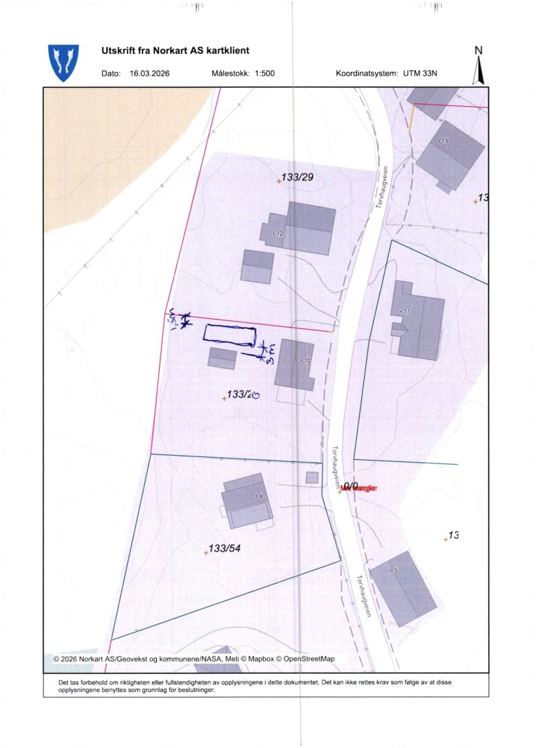
Situasjonsplan (tomtekart) som viser eiendomsnummer, bygninger, vegnett og høydemål.
1 / 2
NewConstruction
Soeknad
Garasje
Oppføring av frittliggende garasje på gnr 133 bnr 20
📍 Torvhaugveien 10 , 8357 VALBERG
Nøkkelinfo
- Sakstype
- Nybygg
- Bygningstype
- Garasje
- Kommune
- Vestvågøy
- Fylke
- Nordland - Nordlánnda
- Gnr / Bnr
- 133 / 20
- Saksnummer
- 26/1340
- Fase
- Søknad
Om byggesaken
Ny frittliggende garasje oppføres på eiendommen gnr 133 bnr 20. Garasjen er mindre enn 50 m² og benyttes til oppbevaring og parkering, uten boligformål eller overnatting. Bygningen har vegger og tak, og oppføres i henhold til kommunens planbestemmelser for bygg uten søknadsplikt. Arealet måles i henhold til byggteknisk forskrift med fokus på bebygd areal (BYA).
Produkter og materialer
Vinduer
Fasadevindu
Eventuelle vinduer for lysinnslipp i garasjen
Dører
Garasjeport
Antall: 1
Garasjeport for innkjøring
Tak
Taktekking
Taktekking for garasjetak, sannsynlig saltak eller pulttak
Tømrer
Bærekonstruksjon og reisverk
🧱 tre
Tømrerarbeid for vegger, takstoler og bærende konstruksjoner
Grunnarbeid
Fundamentering
Grunnarbeid og fundamentering for garasjeens bærekonstruksjon
Fasade
Kledning
Utvendig kledning av garasjen
Elektro
Belysning og strøm
Elektrisk anlegg for belysning og stikkontakter i garasjen
Hendelser
22.04.2026
Melding om frittliggende bygning gnr 133 bnr 20