VerticalExtension UnderBehandling Garasje

Påbygg og tilbygg på bod/anneks i Sagstadvegen 7B, Bergen

📍 Sagstadvegen 7B , 5243 FANA

Nøkkelinfo

Sakstype
Påbygg
Bygningstype
Garasje
Bruksareal
40 m²
Kommune
Bergen
Fylke
Vestland
Gnr / Bnr
91 / 16
Saksnummer
BYGG-2025/16577
Fase
Under behandling

Om byggesaken

Ny påbygg og tilbygg på eksisterende utebod/anneks på Sagstadvegen 7B, Bergen. Tilbygget utvides til totalt ca. 40-58 m² BRA, innredet med to soverom, bad, gang og liten stue/kjøkken (kjøkken fjernet for å unngå ny boenhet). Bygget har egen inngang på terrengnivå og er tilpasset terrenget med pulttak. Under annekset planlegges carport og ny adkomstvei. Materialer inkluderer betong og tre, med pulttak. Tiltaket er tilknyttet eksisterende bolig på samme tomt og har godkjent ansvarsrett for prosjektering og utførelse.

Produkter og materialer

Dører Ytterdør

🧱 Tre eller isolert dør

Antall: 1

Egen inngang på terrengnivå til anneks

Ytterdør til ny inngang i påbygg/anneks

Bad Bad innredning og utstyr

Antall: 1

Bad med sanitærutstyr i påbygg

Innredning og utstyr til bad i påbygg

Fasade Tilbygg fasade i betong og tre

🧱 Betong og tre

Pulttak, gesimshøyde ca. 4,2 m, mønehøyde ca. 5,6 m

Fasade på nytt påbygg og tilbygg til eksisterende bod/anneks med pulttak og betong- og trekledning

Grunnarbeid Fundamentering og vei

Ny avkjøring og vei inn til carport

Grunnarbeid for fundamentering av påbygg og vei til carport

VVS Rørleggerarbeid for bad og vask

Installasjon av vann og avløp til bad og vaskerom i anneks

VVS-installasjoner i påbygg/anneks

Garasjeport Carport under anneks

Antall: 1

Carport under annekset mot vest

Tømrer Påbygg og tilbygg konstruksjon

🧱 Treverk

Konstruksjon og bæring for påbygg og tilbygg

Tømrerarbeid for oppføring av påbygg og tilbygg

Gulv Innvendige gulv

Gulv i påbygg/anneks

Elektro Elektrisk installasjon

Elektriske installasjoner i påbygg/anneks

Vinduer Fasadevindu

🧱 Trelags glass, ramme i tre

Antall: 4

Nye fasadevinduer i tilbygg med 3-lags energiglass

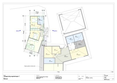
Plantegning

Enebolig 329.7 m²

Etasje 1 104.6 m²

Rom Areal Vinduer Dører
Opphold 101 21.7 m² 2 1
Sov 102 12.4 m² 1 1
Sov 103 12.1 m² 1 1
Gang 104 5.5 m² 0 2
Bad 105 5.9 m² 0 1

Etasje 2 104.6 m²

Rom Areal Vinduer Dører
Entre 201 23.0 m² 0 2
Sov 202 19.4 m² 1 1
Sov 203 12.7 m² 1 1
Sov 204 7.7 m² 1 1
Bad 205 7.6 m² 0 1
Sov 206 12.7 m² 1 1
Sov 207 19.4 m² 1 1
Entre 208 23.0 m² 0 2
Bad 209 7.6 m² 0 1
Sov 210 7.7 m² 1 1
Vask 211 6.7 m² 0 1
Bad 212 8.0 m² 0 1
Walk in 213 8.4 m² 0 1

Etasje 0 120.5 m²

Rom Areal Vinduer Dører
Sov 001 12.7 m² 1 1
Sov 002 7.7 m² 1 1
Sov 003 19.4 m² 1 1
Entre 004 23.0 m² 0 3
Bad 005 7.6 m² 0 1
Vask 006 6.7 m² 0 1
Bad 007 8.0 m² 0 1
Walk in 008 8.4 m² 0 1

Fasader

Tilbygg

Ukjent
Materiale
Betong
Taktype
Pulttak
Høyde
4.2 m
Mønehøyde
5.6 m
Vinduer
4
Dører
1
Balkonger
1
Synlige etasjer
2

Eksisterende

Ukjent
Materiale
Betong
Taktype
Saltak
Høyde
2.5 m
Mønehøyde
3.7 m
Vinduer
3
Dører
1
Synlige etasjer
1

Enebolig

Nord
Materiale
Tre
Taktype
Pulttak
Vinduer
5
Dører
1
Balkonger
1
Synlige etasjer
2
Sør
Materiale
Tre
Taktype
Pulttak
Vinduer
4
Dører
1
Synlige etasjer
1

Hendelser

13.04.2026 Sagstadvegen 7B Supplering av søknad 91/16
07.04.2026 Sagstadvegen 7B Søknad om endring av gitt tillatelse eller godkjenning 91/16
07.11.2025 Fakturagrunnlag 2025
07.11.2025 Ubw ordre 20681401
29.10.2025 Tillatelse til tiltak med ansvarsrett, 91/16, Sagstadvegen
29.10.2025 Ingen merknader til første nabovarsel utsendelse
28.10.2025 Tilleggsopplysninger - emailkorrespondanse
27.10.2025 Sagstadvegen 7B Supplering av søknad 91/16
23.10.2025 Svar på spørsmål ifm. mottatt mangelbrev - 91/16/0/0 Sagstadvegen 7B, påbygg og tilbygg på eksisterende bod
20.10.2025 Behov for tilleggsopplysninger - 91/16/0/0 Sagstadvegen 7B, påbygg og tilbygg på eksisterende bod
09.10.2025 Sagstadvegen 7B Søknad om tillatelse i ett trinn 91/16