Photo
Fotografi av en tomt med en tegnet bygningsoversikt (situasjonsplan) overlagt på bildet.
1 / 29
Extension
Rammetillatelse
Garasje
Tilbygg og utedo til uthus i Blomåsveien 123
📍 Blomåsveien 123 , 9475 BORKENES
Nøkkelinfo
- Sakstype
- Tilbygg
- Bygningstype
- Garasje
- Bruksareal
- 12 m²
- Kommune
- Kvæfjord
- Fylke
- Troms - Romsa - Tromssa
- Gnr / Bnr
- 52 / 26
- Saksnummer
- 2026/203
- Fase
- Rammetillatelse
Om byggesaken
Ny utvidelse av tidligere godkjent frittliggende uthus på eiendommen Blomåsveien 123, med et tilbygg på ca. 1,5 m² som inneholder en utedo med lukket system uten avrenning. Det opprinnelige uthuset er på ca. 11 m² BYA, og total areal etter utvidelsen blir ca. 12,5 m² BYA. Bygningen har saltak og tre som fasademateriale, og er plassert i LNF-område med dispensasjon fra kommuneplanens arealdel. Uthuset skal ikke innredes for overnatting og skal plasseres slik at det eksponeres minst mulig i terrenget. Tiltaket er vurdert til ikke å sette hensynene bak LNF-formålet vesentlig til side, og dispensasjon er innvilget. Det er ikke krav om ytterligere byggesaksbehandling da tiltaket oppfyller vilkår for unntak fra søknadsplikt.
Produkter og materialer
Vinduer
Fasadevindu
🧱 Tre
Antall: 2
1 vindu på vestfasade, 1 vindu på side sør
Fasadevindu i tre på uthuset
Tømrer
Bygging av uthus og tilbygg
🧱 Tre
Bygging av frittliggende uthus med tilbygg på 1,5 m²
Tømrerarbeid for uthus og tilbygg
Dører
Ytterdør
🧱 Tre
Antall: 2
Dør på sørfasade og front på uthus
Ytterdører i tre til uthuset
Sanitær
Utedo med lukket system
Antall: 1
Utedo med lukket system uten avrenning i tilbygget
Sanitæranlegg for utedo i tilbygg
Fasade
Trepanel
🧱 Tre
Trepanel på alle fasader
Fasademateriale i tre på uthuset
Maling
Utvendig maling
Maling av trepanel på uthus
Utvendig maling av trepanel
Tak
Saltak
🧱 Ukjent
Saltak på uthus og tilbygg
Saltak på uthuset og tilbygget
Grunnarbeid
Fundamentering
Fundamentering under uthus, høyde under 4 meter
Fundamentering for uthus og tilbygg
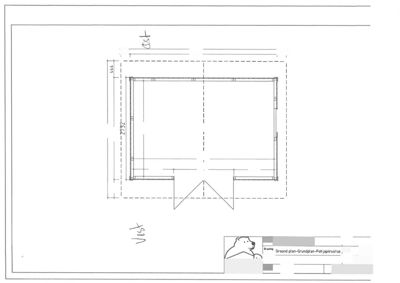
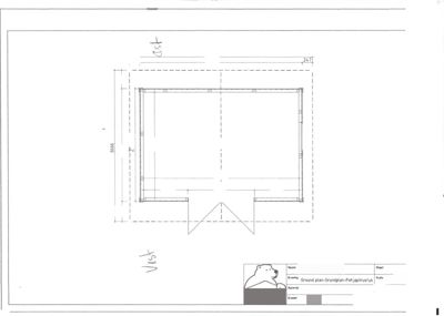
Plantegning
Uthus 10.6 m²
Etasje 0 10.6 m²
| Rom | Areal | Vinduer | Dører |
|---|---|---|---|
| Uthus | 10.6 m² | 0 | 0 |
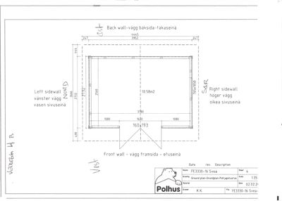
Fasader
Uthus
Vest
- Materiale
- Tre
- Taktype
- Saltak
- Vinduer
- 1
- Dører
- 0
- Synlige etasjer
- 1
Sør
- Materiale
- Tre
- Taktype
- Saltak
- Vinduer
- 0
- Dører
- 1
- Synlige etasjer
- 1
Nord
- Materiale
- Tre
- Taktype
- Saltak
- Vinduer
- 0
- Dører
- 0
- Synlige etasjer
- 1
Øst
- Materiale
- Tre
- Taktype
- Saltak
- Vinduer
- 0
- Dører
- 0
- Synlige etasjer
- 1
Ukjent
- Taktype
- Saltak
- Vinduer
- 0
- Dører
- 0
- Synlige etasjer
- 0
Julkis
Front
- Materiale
- Tre
- Taktype
- Saltak
- Vinduer
- 0
- Dører
- 1
- Synlige etasjer
- 1
Side S
- Materiale
- Tre
- Taktype
- Saltak
- Vinduer
- 1
- Dører
- 0
- Synlige etasjer
- 1
Side N
- Materiale
- Tre
- Taktype
- Saltak
- Vinduer
- 0
- Dører
- 0
- Synlige etasjer
- 1
Hendelser
21.04.2026
26/203 - Dispensasjon er innvilget
21.04.2026
Gbnr 52/26 Blomåsveien 123 - (tidligere sak 2020/816 uthus) - Tillatelse til mindre endringer/utvidelse
20.04.2026
Gbnr 52/26
11.02.2026
Gbnr 52/26 Blomåsveien 123 - Avslutning av tidligere sak 2020/816 (uthus) - Om ønsker om mindre endringer/utvidelser