Extension Soeknad Garasje

Tilbygg på eksisterende garasje i Brattli 72, Gjerstad

📍 Brattli 72 , 4980 GJERSTAD

Nøkkelinfo

Sakstype
Tilbygg
Bygningstype
Garasje
Bruksareal
50 m²
Kommune
Gjerstad
Fylke
Agder
Gnr / Bnr
11 / 82
Saksnummer
2026/351
Fase
Søknad

Om byggesaken

Tilbygg på eksisterende frittstående garasje med et samlet tilleggsareal større enn 50 m². Garasjen utvides på begge sider for å gi bedre plass til biler og et verkstedområde for skruing og arbeid. Bygget er plassert på en boligtomt i LNF-område med dispensasjon. Garasjen har et saltak og er oppført i tre. Prosjektet inkluderer fundamentering, tre- og betongkonstruksjoner, og tilpasning til eksisterende bygg. Det er ikke planlagt innlagt vann, men takvann føres til terreng. Det er ingen trapper eller balkonger i tilbygget.

Produkter og materialer

Dører Garasjeporter eller dører

Eksisterende garasje har dører, men ikke spesifisert nye i tilbygget

Mulig behov for garasjeporter eller dører til tilbygget

Tømrer Tre- og betongkonstruksjoner

🧱 Tre

Tre- og betongkonstruksjoner for tilbygg på garasje, tiltaksklasse 1

Konstruksjon av tilbygg i tre og betong, inkludert vegger og tak

Grunnarbeid Fundamentering for tilbygg

Fundamentering for tilbygg på eksisterende garasje i LNF-område

Grunnarbeid og fundamentering for tilbygg på eksisterende garasje

Elektro Verkstedbelysning og strøm

Elektrisk anlegg for verksted i tilbygget antatt nødvendig

Elektrisk installasjon for belysning og strøm til verksted i tilbygget

Fasade Tre kledning

🧱 Tre

Tre kledning på tilbygget, tilpasset eksisterende fasade

Utvendig tre kledning for tilbygget

Vinduer Garasjevinduer

Antall: 0

Ingen vinduer i tilbygget ifølge plantegninger

Ingen vinduer planlagt i tilbygget

VVS Ingen innlagt vann

Ingen vann eller avløp planlagt i tilbygget

Ingen VVS-installasjoner planlagt

Tak Saltak

🧱 Tre og taktekking

Saltak på tilbygg til garasje, tilpasset eksisterende bygg

Taktekking og konstruksjon av saltak på tilbygget

Drenering Takvann og overflatevann

Takvann føres til terreng, nødvendig drenering rundt tilbygget

Drenering for takvann og overflatevann fra tilbygget

Overflater Gulv i verksted

Robust gulv for verksted i tilbygget antatt nødvendig

Gulvbelegg egnet for verkstedbruk i tilbygget

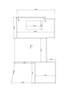
Plantegning

Eks. garasje 105.2 m²

Etasje 0 105.2 m²

Rom Areal Vinduer Dører
Garasjerom 105.2 m² 0 0

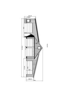
Fasader

Enebolig

Nordøst
Materiale
Tre
Taktype
Saltak
Høyde
3.3 m
Mønehøyde
6.6 m
Vinduer
4
Dører
0
Synlige etasjer
2
Nordvest
Materiale
Tre
Taktype
Saltak
Høyde
7.0 m
Mønehøyde
8.2 m
Vinduer
3
Dører
1
Synlige etasjer
2
Sørvest
Materiale
Tre
Taktype
Saltak
Høyde
4.2 m
Mønehøyde
7.2 m
Vinduer
6
Dører
1
Synlige etasjer
2

Hendelser

26.03.2026 Brattli 72 Søknad om tillatelse i ett trinn 11/82