Extension UnderBehandling Garasje

Oppføring av nytt anneks i Gjøkvikveien 21, Hvaler

📍 Gjøkvikveien 21 , 1692 NEDGÅRDEN

Nøkkelinfo

Sakstype
Tilbygg
Bygningstype
Garasje
Bruksareal
50 m²
Kommune
Hvaler
Fylke
Østfold
Gnr / Bnr
30 / 6
Saksnummer
2025/1067
Fase
Under behandling

Om byggesaken

Nyoppført anneks på 50 m² med saltak og tegl takmateriale, bygget i tre og plassert på samme sted som tidligere anneks som ble revet. Annekset inneholder stue, soverom, bad og bod, med et mindre kjøkken som fjernes før ferdigstillelse. Bygget har samme arkitektoniske uttrykk og materialbruk som hovedhuset for å sikre helhetlig utforming. Det er etablert tilknytning til offentlig vann og avløp via hovedhusets vannmåler, og tiltaket inkluderer riving av tidligere anneks på 24 m². Bygget oppfyller krav til maksimalt areal og høyde i henhold til kommuneplanens arealdel og hensynssone kulturmiljø.

Produkter og materialer

Maling Utvendig og innvendig maling

Maling av trepanel utvendig og innvendige overflater

Gulv Standard gulv

Gulv i stue, soverom og bod, materialvalg ikke spesifisert

Tak Saltak med tegl

🧱 Tegl

Antall: 1

Saltak med tegl takmateriale som matcher hovedhusets tak

Vinduer Fasadevindu

🧱 Tre

Antall: 3

Tre vinduer i fasader, inkludert 1 vindu i bod og 1 i stue

Fasade Trepanel

🧱 Tre

Trepanel som fasademateriale, tilpasset hovedhusets stil

Elektro Elektrisk anlegg

Elektrisk anlegg for belysning og strøm i anneks

Isolasjon Bygningsisolasjon

Isolasjon i vegger, tak og gulv for boligstandard

Tømrer Bygningskonstruksjon

🧱 Tre

Oppføring av nytt anneks i tre med saltak og trepanel, i tråd med lokal byggeskikk

Tømrerarbeid for nytt anneks med boligfunksjoner

Dører Ytterdør

🧱 Tre

Antall: 3

Tre ytterdører i fasader, inkludert dør til bod, soverom og stue

Grunnarbeid Grunnarbeid og fundamentering

Graving og legging av VA-ledninger, fundamentering for nytt anneks

Grunnarbeid inkludert grøfting for vann og avløp, fundamentering av bygg

VVS Vann- og avløpstilknytning

Tilknytning via hovedhusets vannmåler, med dokumentert VA-trasé og stake- og spylekum for avløp

Vann- og avløpstilknytning til offentlig nett via hovedhusets måler, med nødvendig dokumentasjon og ansvarlig rørlegger

Bad Våtrom

Antall: 1

Bad på 5,9 m² med våtromskontroll og uavhengig kontroll

Bad med våtromsfunksjon, kontrollert av KG BYGGKONSULT AS

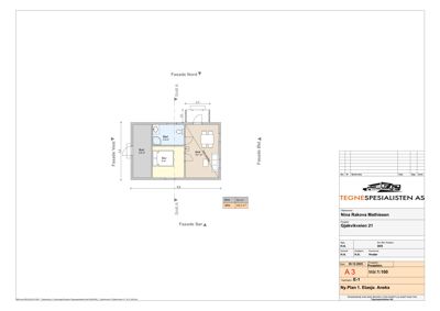
Plantegning

Enebolig 50.0 m²

Etasje 1 50.0 m²

Rom Areal Vinduer Dører
Stue 101 16.1 m² 1 1
Sov 102 9.0 m² 0 1
Bad 103 5.9 m² 0 1
Bod 104 8.8 m² 1 1

Fasader

Enebolig

Øst
Materiale
Tre
Taktype
Saltak
Takmat.
Tegl
Vinduer
3
Dører
0
Synlige etasjer
1
Nord
Materiale
Tre
Taktype
Saltak
Takmat.
Tegl
Vinduer
1
Dører
1
Synlige etasjer
1
Sør
Materiale
Tre
Taktype
Flatt tak
Takmat.
Tegl
Høyde
5.0 m
Vinduer
1
Dører
0
Synlige etasjer
1
Vest
Materiale
Tre
Taktype
Saltak
Takmat.
Tegl
Høyde
5.0 m
Vinduer
1
Dører
1
Synlige etasjer
1

Hendelser

29.03.2026 Supplering av søknad - riving av uthus - oppføring av anneks - 30/6 - Gjøkvikveien 21
19.03.2026 Supplering av søknad - riving av uthus - oppføring av anneks - 30/6 - Gjøkvikveien 21
10.03.2026 Behov for ytterligere opplysninger - søknad ett-trinn - riving av uthus - oppføring anneks - 30/6 - Gjøkvikveien 21
10.03.2026 Forespørsel om utsatt frist - riving av uthus - oppføring av anneks - 30/6 - Gjøkvikveien 21
10.03.2026 Preliminær tilbakemelding - riving av uthus - oppføring av anneks - 30/6 - Gjøkvikveien 21
10.03.2026 Oversendelse for uttalelse - søknad ett-trinn - riving av uthus - oppføring av anneks - 30/6 - Gjøvikveien 21
04.03.2026 Uttalelse - søknad ett-trinn - riving av uthus - oppføring anneks - 30/6 - Gjøkvikveien 21
16.01.2026 Søknad ett-trinn - riving av uthus - oppføring av anneks - 30/6 - Gjøvikveien 21
07.01.2026 Utsatt frist - riving av uthus - oppføring av anneks - 30/6 - Gjøkvikveien 21
10.10.2025 Opplysninger til søknad om ferdigattest - riving av uthus - oppføring av anneks - 30/6 - Gjøkvikveien 21
22.09.2025 Innvilgelse utsatt svarfrist - riving av uthus - oppføring av anneks - 30/6 - Gjøkvikveien 21
02.09.2025 Utsettelse svarfrist - riving av uthus - oppføring av anneks - 30/6 - Gjøkvikveien 21
16.07.2025 Behov for ytterligere opplysninger - søknad om ferdigattest - riving av uthus - oppføring av anneks - 30/6 - Gjøkvikveien 21
02.06.2025 Søknad om ferdigattest - riving av uthus - oppføring av anneks - 30/6 - Gjøkvikveien 21