Facade
Fasadetegning som viser front- og sideutsikt av en bygning.
1 / 4
Extension
Soeknad
Garasje
Tilbygg og riving av garasje på Håbakken 11
📍 Håbakken 11 , 4355 KVERNALAND
Nøkkelinfo
- Sakstype
- Tilbygg
- Bygningstype
- Garasje
- Bruksareal
- 39 m²
- Kommune
- Klepp
- Fylke
- Rogaland
- Gnr / Bnr
- 9 / 271
- Saksnummer
- 26/01019
- Fase
- Søknad
Om byggesaken
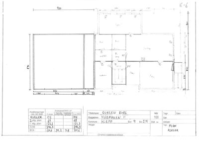
Ny garasje med tilbygg på eiendommen Håbakken 11, bestående av riving av eksisterende garasje og oppføring av nytt bygg med et bruksareal på ca. 39,2 m². Tilbygget inkluderer garasje, hagestue, sluse og spiskammer. Bygget er i tre med valmtak og flatt tak på ulike fasader, og har pipe og garasjeport. Prosjektet omfatter også grunnarbeid, betongarbeid og tømrerarbeid, og er planlagt i henhold til gjeldende reguleringsplan og tekniske krav.
Produkter og materialer
Grunnarbeid
Grunnarbeid for garasje og tilbygg
Grunnarbeid for nytt bygg og tilbygg
Tak
Valmtak og flatt tak
Valmtak på østfasade og flatt tak på nordfasade
Tak med valmtak og flatt tak på ulike deler av bygget
Dører
Ytterdør og garasjeport
Antall: 2
En ytterdør og en garasjeport i bygget
Pipe
Pipe
Antall: 1
Pipe tilknyttet bygget
Fasade
Trevegger
🧱 Tre
Tre som fasademateriale på garasje og tilbygg
Fasade i tre som hovedmateriale for ny garasje og tilbygg
Tømrer
Tømrerarbeid for bygging av garasje og tilbygg
Tømrerarbeid for oppføring av trebygget
Vinduer
Fasadevindu
Antall: 3
Tre vinduer fordelt på fasadene nord og øst
Betong
Fundament og plate
Betongarbeid for fundament og plate til garasje og tilbygg
Fasader
Enebolig
Nord
- Materiale
- Tre
- Taktype
- Flatt tak
- Vinduer
- 2
- Dører
- 1
- Synlige etasjer
- 1
Øst
- Materiale
- Tre
- Taktype
- Valmtak
- Vinduer
- 1
- Dører
- 0
- Synlige etasjer
- 1
Hendelser
14.04.2026
26/01019-1 Ett-trinns søknad - Tilbygg og riving av eksisterende garasje - gnr/bnr 9/271