Extension Ferdigattest Garasje

Ny bod, carport, trapp, hagestue og terrasse på Jørgplassen 6B

📍 Jørgplassen 6B , 6009 ÅLESUND

Nøkkelinfo

Sakstype
Tilbygg
Bygningstype
Garasje
Bruksareal
61 m²
Kommune
Ålesund
Fylke
Møre og Romsdal
Gnr / Bnr
140 / 54
Saksnummer
2024/18021
Fase
Ferdigattest

Om byggesaken

Ny frittliggende hagestue på 16,3 m² med pulttak og trefasade, samt ny carport/bod på 27,2 m² med saltak og trefasade bygges som tilbygg til eksisterende enebolig på Jørgplassen 6B i Ålesund. Prosjektet inkluderer også ny utvendig trapp mellom terrasse i 1. etasje og underetasje, samt utvidelse av eksisterende terrasse i underetasjen. Carporten har garasjeport og er tilpasset boligens arkitektur med saltak. Byggehøydene er ca. 3,9 meter gesimshøyde. Tiltaket øker bebygd areal (BYA) til ca. 61 m², med en samlet utnyttelsesgrad på 32,8 % på tomten. Materialer er hovedsakelig tre med tegltak. Prosjektet er tilpasset eksisterende terreng og naboforhold, med dispensasjoner gitt for byggegrenser og utnyttelsesgrad.

Produkter og materialer

Tak Saltak og pulttak med tegl

🧱 Tegl

Saltak på carport/bod og hagestue, pulttak på hagestue, takmateriale tegl

Taktekking med tegl på saltak og pulttak

Grunnarbeid Fundamentering og grunnmur

Fundamentering for carport/bod og hagestue, inkludert tilpasning til kommunal VA-ledning

Grunnarbeid og fundamentering for ny bebyggelse

Fasade Trefasade

🧱 Tre

Trefasade på carport/bod og hagestue

Trepanel til fasader på carport/bod og hagestue

Vinduer Åpningsbare og faste vinduer i tre

🧱 Tre

Antall: 11

Vinduer i carport/bod og hagestue, inkludert 1 vindu i hagestue

Vinduer til carport/bod og hagestue i tre

Tømrer Tømrerarbeid for bygging av carport, bod, hagestue og trapp

Tømrerarbeid for oppføring av trebygninger og trapp

Tømrerarbeid for konstruksjon og montering

Betong Betongfundament og bjelkelag

Betongfundament og bjelkelag i underetasjeplan

Betongarbeid for fundament og bjelkelag

Trapper Utvendig trapp

Antall: 1

Ny utvendig trapp mellom terrasse i 1. etasje og underetasje

Utvendig trapp i tre eller tilsvarende materiale

Garasjeport Portløs garasje/carport

Antall: 1

Garasjeport i carport med saltak

Garasjeport til carport som er delvis lukket

Terrasse Utvidet terrasse

Utvidelse av eksisterende terrasse i underetasje

Terrasseutvidelse i tilknytning til hagestue og underetasje

Dører Ytterdører i tre

🧱 Tre

Antall: 5

Dører til carport/bod, hagestue og trapp

Ytterdører i tre til carport/bod, hagestue og utvendig trapp

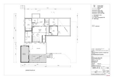
Plantegning

Underetasje 188.8 m²

Etasje 0 188.8 m²

Rom Areal Vinduer Dører
Sovromme SOV4 10.3 m² 1 1
Sovromme SOV5 9.3 m² 1 1
Bod BOD 3.0 m² 1 1
Kjellerstue KJ.STUE 8.8 m² 0 1
Kjellerstue/Gang KJ.STUE/TRAPP 29.8 m² 1 2
Bad BAD 3.6 m² 0 1
Teknisk rom TEKN 8.1 m² 1 1
Vaskerom VASK 9.2 m² 1 1
Vaskerom VF 2.4 m² 0 1
Hagestue NY HAGESTUE 16.3 m² 1 1

Fasader

Carport/Bod

Vest
Materiale
Tre
Taktype
Pulttak
Takmat.
Tegl
Høyde
3.9 m
Vinduer
3
Dører
1
Balkonger
1
Synlige etasjer
1
Øst
Materiale
Tre
Taktype
Saltak
Høyde
3.9 m
Vinduer
2
Dører
1
Synlige etasjer
1
Nord
Materiale
Tre
Taktype
Saltak
Høyde
3.9 m
Vinduer
4
Dører
1
Synlige etasjer
1

Hagestue

Sør
Materiale
Tre
Taktype
Saltak
Takmat.
Tegl
Høyde
3.9 m
Vinduer
1
Dører
1
Synlige etasjer
1

Hendelser

21.04.2026 Gbnr. 140/54 - Søknad om ferdigattest - Jørgplassen 6B - Bod/carport, trapp, hagestue, terrasse
06.10.2025 Gbnr. 140/54 - Fakturagrunnlag - Jørgplassen 6B - Bod/carport, trapp, hagestue, terrasse
24.09.2025 Gbnr. 140/54 - Vedtak om endring - Jørgplassen 6B - Bod/carport, trapp, hagestue, terrasse
22.09.2025 Gbnr. 140/54 - Utnyttelsesgrad - Jørgplassen 6B - Bod/carport, trapp, hagestue, terrasse
03.09.2025 Gbnr. 140/54 - Jørgplassen 6B - Søknad om endring av gitt tillatelse eller godkjenning
11.04.2025 Gbnr. 140/54 - Fakturagrunnlag - Jørgplassen 6B - Bod/carport, trapp, hagestue, terrasse
04.04.2025 Gbnr. 140/54 - Igangsettingstillatelse - Jørgplassen 6B - Bod/carport, trapp, hagestue, terrasse
02.04.2025 Gbnr. 140/54 - Søknad om igangsettingstillatelse - Jørgplassen 6B - Bod/carport, trapp, hagestue, terrasse
16.01.2025 Gbnr. 140/54 - Fakturagrunnlag - Jørgplassen 6B - Bod/carport, trapp, hagestue, terrasse
10.01.2025 Gbnr. 140/54 - Komplettering - Jørgplassen 6B - Bod/garasje, trapp, hagestue, terrasse
10.01.2025 Gbnr. 140/54 - Spørsmål til søknad - Jørgplassen 6B - Bod/garasje, trapp, hagestue, terrasse
07.01.2025 Gbnr. 140/54 - Vedtak - Jørgplassen 6B - Bod/garasje, trapp, hagestue, terrasse
01.11.2024 Jørgplassen 6B Søknad om rammetillatelse 140/54