SitePlan
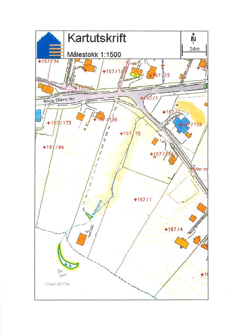
Situasjonsplan (kart) som viser eiendomsgrenser, vegnett, høydemålinger og nabolag.
1 / 3
Extension
Soeknad
Garasje
Tilbygg carport i Kong Olavs vei 912
📍 Kong Olavs vei 912 , 9436 KONGSVIK
Nøkkelinfo
- Sakstype
- Tilbygg
- Bygningstype
- Garasje
- Kommune
- Dielddanuorri - Tjeldsund
- Fylke
- Troms - Romsa - Tromssa
- Gnr / Bnr
- 167 / 15
- Saksnummer
- 2026/1018
- Fase
- Søknad
Om byggesaken
Ny tilbygg til eksisterende carport på eiendommen i Kong Olavs vei 912. Tilbygget er et mindre tiltak under 50 m², tilknyttet garasjekategori. Prosjektet omfatter grunnarbeid, fundamentering og oppføring av konstruksjon som utvider carportens areal. Bygget skal tilpasses eksisterende struktur og oppfylle gjeldende tekniske krav for mindre tilbygg.
Produkter og materialer
Tak
Taktekking tilbygg
Taktekking for tilbygg til carport
Grunnarbeid
Fundamentering
Grunnarbeid og fundamentering for tilbygg til carport
Tømrer
Konstruksjon tilbygg carport
Oppføring av tilbygg til carport med tilpasset konstruksjon
Fasade
Kledning tilbygg
Fasadebekledning for tilbygg til carport
Hendelser
15.04.2026
Søknad om tillatelse til tiltak uten ansvarsrett - gnr. 167 bnr. 15