Extension UnderBehandling Garasje

Tilbygg med garasje og bruksendring i Molandsveien 43, Arendal

📍 Molandsveien 43 , 4846 ARENDAL

Nøkkelinfo

Sakstype
Tilbygg
Bygningstype
Garasje
Bruksareal
144 m²
Boenheter
2
Kommune
Arendal
Fylke
Agder
Gnr / Bnr
506 / 53
Saksnummer
2025/24991
Fase
Under behandling

Om byggesaken

Ny tilbygg med garasje på ca. 50 m² BYA og bruksendring av garasjeloft til egen boenhet i Molandsveien 43. Garasjen har et bruttoareal på 33,9 m² og hoveddelen 49,2 m², med totalt 83,1 m² BRA. Garasjen er innredet med oppholdsrom, bad/vask, kjøkken og soverom, og har tilknytning til vann, avløp og slokkevann. Bygget har godkjente avstander til nabogrense etter rettsforlik, og det er etablert veirett og avkjørsel. Tiltaket inkluderer endring fra tilleggsdel til hoveddel for deler av bygget, med avvik fra teknisk forskrift på energi og tetthet, men tilfredsstillende bo- og brannsikkerhet. Prosjektet er under behandling med ansvarlige foretak for prosjektering, utførelse og kontroll.

Produkter og materialer

Dører Ytterdører

Antall: 3

Ytterdører i hoveddel og garasje, inkludert dør til uteoppholdsareal

Ytterdører for tilbygg og garasje med boenhet

Gulv Innvendige gulv

Gulv i boenhet med tilfredsstillende isolasjon og overflate

Innvendige gulv i tilbygg og garasje med boenhet

VVS Innvendig vann og avløp

Tilkobling til offentlig vann- og avløpsnett, bekreftet kapasitet og slokkevann

VVS-installasjoner for boenhet i garasje og tilbygg

Rekkverk Innvendig trapp

Antall: 1

Innvendig trapp i hoveddel og tilbygg

Trapp og rekkverk for adkomst mellom etasjer

Grunnarbeid Fundamentering og drenering

Grunnarbeid for tilbygg og garasje, inkludert drenering og fundamentering

Grunnarbeid for ny garasje og tilbygg

Fasade Yttervegger

🧱 Isolert klimaskall med kledning

Avvik fra TEK på energi og tetthet, men tilfredsstillende boligkomfort

Isolert ytterveggskonstruksjon for tilbygg og garasje med boenhet

Vinduer Fasadevindu

🧱 3-lags energiglass

Antall: 2

Vinduer i boenhet med god takhøyde og lysareal, noe underdimensjonert lysareal i stue/kjøkken med ca. 2 %

Fasadevindu til oppholdsrom i garasjeloft og tilbygg

Bad Våtrom

Antall: 2

Bad/vask i hoveddel og garasje, eksisterende våtrom ikke ombygget, dokumentasjon på tetthet ikke mulig

Bad og vaskerom i boenheter

Tak Saltak

Tak med tilfredsstillende isolasjon og tetthet, delvis avvik fra TEK

Tak for tilbygg og garasje med boenhet

Tømrer Snekkerarbeider

Tømrerarbeid for tilbygg og garasje, inkludert sikring mot brannspredning

Tømrer- og snekkerarbeider for bygging av tilbygg og garasje

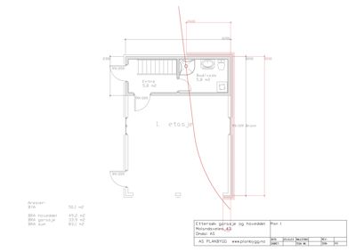
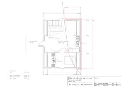
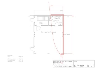
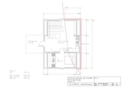
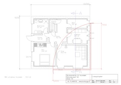
Plantegning

Enebolig 74.5 m²

Etasje 1 74.5 m²

Rom Areal Vinduer Dører
Entre 101 3.3 m² 0 1
Sov 102 14.8 m² 1 1
Stue 103 19.3 m² 1 1
Kjøkken 104 8.8 m² 0 1
Bod 105 5.4 m² 0 1
Gang 106 9.2 m² 0 1
Bad/Vask 107 3.1 m² 0 1

Hoveddel 99.3 m²

Etasje 1 49.2 m²

Rom Areal Vinduer Dører
Entre 99/209 5.8 m² 0 3
Bad/vask 99/109 5.8 m² 0 1

Etasje 2 50.1 m²

Rom Areal Vinduer Dører
Stue/kjøkken 99/109 26.9 m² 1 2
Uteopphold 99/209 9.2 m² 0 1
Sov 99/109 10.0 m² 1 1

Hendelser

20.04.2026 506/53 - Oppdatert søknadsdokumentasjon
14.04.2026 506/53/0/0 - Molandsveien 43 - 506/53 - Diverse endringer - Mangelbrev
12.02.2026 506/53 - Svar på henvendelse vedr. utvidet bruk av avkjørsel
03.02.2026 Oversendelse utvidet bruk av avkjørsel
26.01.2026 506/53 - Torsbudalen - Det anmodes om samtykke til avkjøring
26.01.2026 Kopi - Svar på henvendelsen - Fv. 420 Molandsveien - Gnr-bnr 506-53 - Arendal kommune - anmodning om samtykke til avkjøring
16.12.2025 Molandsveien 43, foreløpig tilbakemelding på søknad om 506/53 - diverse endringer
02.09.2025 Molandsveien 43, melding om mottatt søknad
01.09.2025 Molandsveien 43 Søknad om tillatelse i ett trinn 506/53