Extension UnderBehandling Garasje

Ny garasje med bod i Molandsveien 462, Arendal

📍 Molandsveien 462 , 4849 ARENDAL

Nøkkelinfo

Sakstype
Tilbygg
Bygningstype
Garasje
Bruksareal
77 m²
Kommune
Arendal
Fylke
Agder
Gnr / Bnr
25 / 90
Saksnummer
2025/35486
Fase
Under behandling

Om byggesaken

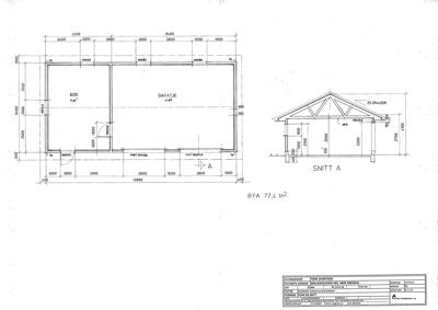
Ny frittstående garasje med tilhørende bod på totalt 77,4 m² oppføres på Molandsveien 462 i Arendal. Bygget får en grunnflate på 12,9 x 6,0 meter, med garasjeareal på 47 m² og bod på 24 m². Konstruksjonen er i tre reisverk med stående kledning, saltak og flatt tak, og taktekking med takstein. Boddelen isoleres. Den nye garasjen bygges på eksisterende betonggrunnmur som benyttes på nytt, med gulv hevet til kote 43,8 moh ved å fylle igjen rom under eksisterende bygg og støpe nytt gulv. Bygget har 1 garasjeport, 3 fasadevinduer og 3 dører, og er tilpasset plassering nær privat vei med godkjent avstand. Det er søkt dispensasjon for plassering i flomutsatt område, med tiltak for å redusere flomrisiko.

Produkter og materialer

Isolasjon Vegger og himling bod

🧱 Mineralull

Bod isoleres med mineralull i vegger og himling

Isolasjon i bod for varme og komfort

Dører Ytterdører og garasjeport

Antall: 3

2 dører i garasje, 1 dør i bod, 1 garasjeport 280x220 cm

Ytterdører til bod og garasje, samt garasjeport

Elektro Enkelt elektrisk anlegg

Eksisterende bygg har enkelt elektrisk opplegg med kontakter og lamper, ny garasje må ha tilsvarende eller oppgradert anlegg

Elektrisk installasjon for lys og strøm i garasje og bod

Betong Gulvstøp

🧱 Betong

Nytt gulv støpes på fylt rom under eksisterende bygg, gulv ligger på kote 43,8 moh

Betonggulv i garasje og bod

Mur Ringmur

🧱 Betong

Ringmur ca. 30 cm høy på nytt gulv

Ringmur i betong oppføres på nytt gulv for å støtte trevegger

Fasade Stående kledning

🧱 Tre

Stående trepanel på yttervegger

Yttervegger kles med stående trepanel

Vinduer Fasadevindu

🧱 Tre eller annet ikke spesifisert

Antall: 4

4 vinduer i eksisterende bygg, 3 vinduer i ny garasje fasade

Fasadevinduer i garasje og bod

Tømrer Reisverk og takstoler

🧱 Tre

Reisverk i tre for vegger og takstoler for tak

Tømrerarbeid for bærende konstruksjoner og tak

Grunnarbeid Riving og sanering

Riving av eksisterende uthus/garasje med ca. 14,7 tonn rivingsavfall, inkludert betong, treverk, metalltakplater, glass og isolasjon

Riving og bortkjøring av eksisterende bygg og avfall

Tak Saltak og flatt tak

🧱 Takstein og bølgeblikk (eksisterende bygg)

Takstoler med takstein som taktekking på ny garasje, eksisterende bygg har bølgeblikk takplater

Tak med takstoler og takstein, delvis saltak og flatt tak

Plantegning

Garasje 77.4 m²

Etasje 1 77.4 m²

Rom Areal Vinduer Dører
Bod BOD 24.0 m² 0 1
Garasje GARASJE 47.0 m² 0 2

Fasader

Garasje

Nord / Øst
Materiale
Tre
Taktype
Saltak
Vinduer
1
Dører
0
Synlige etasjer
1
Nord / Vest
Materiale
Tre
Taktype
Flatt tak
Vinduer
0
Dører
1
Synlige etasjer
1
Syd / Øst
Materiale
Tre
Taktype
Flatt tak
Vinduer
3
Dører
0
Synlige etasjer
1
Syd / Vest
Materiale
Tre
Taktype
Saltak
Vinduer
0
Dører
0
Synlige etasjer
1

Hendelser

21.04.2026 Sentral godkjenning
25.03.2026 25/90 - Dispensasjonssøknad
28.01.2026 Tilbakemelding på mottatte dokumenter - Molandsveien 462 Supplering av søknad 25/90
21.01.2026 Molandsveien 462 Supplering av søknad 25/90
11.12.2025 Foreløpig svar - Molandsveien 462 Søknad om tillatelse i ett trinn 25/90
08.12.2025 Molandsveien 462, melding om mottatt søknad
05.12.2025 Molandsveien 462 Søknad om tillatelse i ett trinn 25/90