Facade
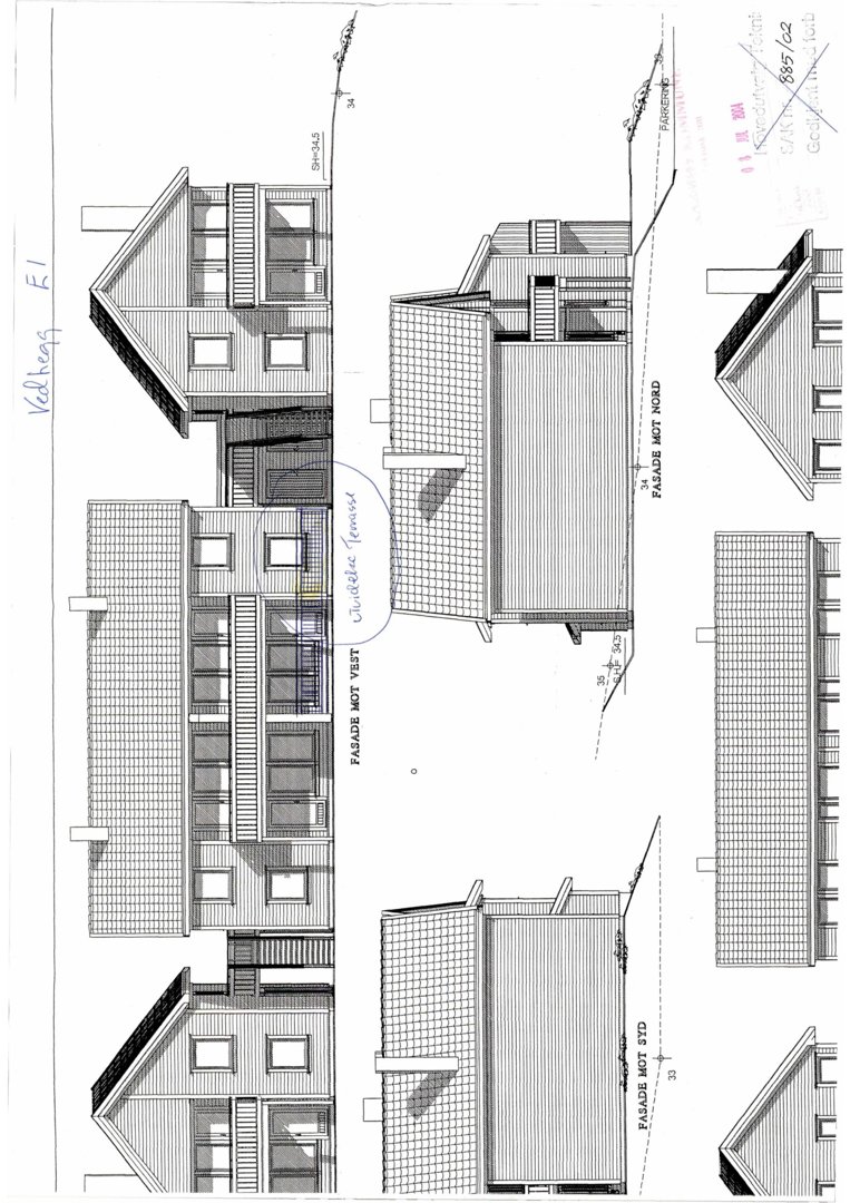
Fasadetegning som viser bygningens utseende fra flere vinkler (vest, nord, syd) med detaljer om tak, vinduer og fasadepanel.
1 / 5
Extension
UnderBehandling
Garasje
Tilbygg av hagestue på Myklandvegen 108B
📍 Myklandvegen 100A , 5545 VORMEDAL
Nøkkelinfo
- Sakstype
- Tilbygg
- Bygningstype
- Garasje
- Bruksareal
- 6 m²
- Kommune
- Karmøy
- Fylke
- Rogaland
- Gnr / Bnr
- 119 / 478
- Saksnummer
- 2026/2454
- Fase
- Under behandling
Om byggesaken
Ny hagestue på 6 m² bygges som et tilbygg på eksisterende terrasse ved Myklandvegen 108B. Tilbygget består av større glassfelt mot egen terrasse og mindre glassfelt mot sør og vest, med kledning som følger eksisterende fasade. Hagestuen tetter inn deler av terrassen og vil ikke øke bebygd areal (BYA). Bygget er tilknyttet en enebolig og har godkjent samtykke fra sameiets styre for fasadeendring med vinduer og kledning.
Produkter og materialer
Grunnarbeid
Fundamentering
Fundamentering for tilbygg på eksisterende terrasse
Grunnarbeid for stabil oppføring av hagestue
Vinduer
Fasadevindu
🧱 Glassfelt
Større glassfelt mot egen terrasse, mindre glassfelt mot sør og vest
Vinduer for innbygging av terrasse til hagestue med god lysinnslipp
Fasade
Kledning
🧱 Tre
Kledning som følger eksisterende terrasse og fasade
Utvendig kledning for hagestue som matcher eksisterende fasade
Tømrer
Bygningskonstruksjon
🧱 Tre
Tømrerarbeid for oppføring av hagestue med rammeverk og innbygging
Tømrerarbeid for konstruksjon av hagestue
Tak
Taktekking
🧱 Tegl
Tak med tegl som eksisterende saltak
Taktekking for hagestue tilpasset eksisterende takmateriale
Plantegning
Enebolig 180.5 m²
Etasje 1 180.5 m²
| Rom | Areal | Vinduer | Dører |
|---|---|---|---|
| Stue 101 | 38.0 m² | 3 | 2 |
| Kjøkken 102 | 14.0 m² | 1 | 1 |
| Entré 103 | 7.5 m² | 0 | 1 |
| Bad 104 | 5.2 m² | 0 | 1 |
| Sov. 1 105 | 11.0 m² | 1 | 1 |
| Bod 106 | 3.0 m² | 0 | 1 |
| Sov. 2 107 | 6.3 m² | 1 | 1 |
| Gang 108 | 12.0 m² | 0 | 0 |
| Trapp 109 | 5.0 m² | 0 | 0 |
Fasader
Enebolig
Sør
- Materiale
- Tre
- Taktype
- Saltak
- Takmat.
- Tegl
- Høyde
- 6.5 m
- Mønehøyde
- 8.2 m
- Vinduer
- 2
- Dører
- 1
- Balkonger
- 1
- Synlige etasjer
- 2
Nord
- Materiale
- Tre
- Taktype
- Saltak
- Takmat.
- Tegl
- Høyde
- 6.5 m
- Mønehøyde
- 8.2 m
- Vinduer
- 0
- Dører
- 1
- Balkonger
- 1
- Synlige etasjer
- 2
Vest
- Materiale
- Tre
- Taktype
- Saltak
- Takmat.
- Tegl
- Høyde
- 6.5 m
- Mønehøyde
- 8.2 m
- Vinduer
- 8
- Dører
- 2
- Balkonger
- 1
- Synlige etasjer
- 2
Hendelser
15.04.2026
Gnr. 119, bnr. 478 - Tilbakemelding på om mangler - tilbygg hagestue
15.04.2026
Tilbakemelding om mangler - tilbygg hagestue - gnr. 119, bnr. 478
15.04.2026
Gnr. 119, bnr. 478 - Supplering av søknad
25.03.2026
Gnr. 119, bnr. 478 - Hagestue - Myklandvegen 108B