Extension Soeknad Garasje

Ny veranda og garasje på Nord i enga 6, Hvaler

📍 Nord i enga 6 , 1684 VESTERØY

Nøkkelinfo

Sakstype
Tilbygg
Bygningstype
Garasje
Bruksareal
43 m²
Boenheter
1
Kommune
Hvaler
Fylke
Østfold
Gnr / Bnr
47 / 296
Saksnummer
2013/274
Fase
Søknad

Om byggesaken

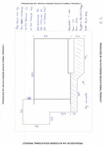
Ny veranda med tilhørende lévegg tilknyttet eksisterende bolig, samt ny frittstående garasje på eiendommen Nord i enga 6, Vesterøy. Garasjen er oppført i tre med saltak, gesimshøyde ca. 3 meter og mønehøyde ca. 4 meter, med garasjeport på nord- og sørfasade. Verandaen er tilknyttet boligen og har en lévegg som er noe dominerende i høyde og lengde, men tilpasset for å gi gode visuelle kvaliteter. Tiltaket inkluderer også fasadeendringer på bolig, og er plassert i et regulert boligområde med tilstrekkelig manøvreringsareal for kjøretøy.

Produkter og materialer

Dører Ytterdør

🧱 tre

Antall: 1

Dør på garasje vestfasade

Ytterdør til garasje

Garasje Frittstående garasje

🧱 tre bindingsverk 98 mm

Antall: 1

Saltak, gesimshøyde 3 m, mønehøyde 4 m, med 1 vindu og 1 dør på vestfasade, garasjeporter på nord- og sørfasade

Ny frittstående garasje med saltak og tre bindingsverk

Terrasse Veranda tilknyttet bolig

🧱 tre

Antall: 1

Veranda med tilknytning til bolig, plassert slik at den ikke kommer i konflikt med innkjøring og manøvreringsareal

Utendørs oppholdsareal tilknyttet bolig

Tak Saltak

🧱 ukjent

Antall: 2

Saltak på både bolig og garasje

Taktype for bolig og garasje

Avfallshåndtering Sluttrapport for avfall

Antall: 1

Sluttrapport for avfallsplan og miljøsaneringsbeskrivelse skal leveres

Dokumentasjon for avfallshåndtering i byggefasen

Elektro Elektrisk anlegg

Antall: 1

Elektrisk varmesystem med luftoppvarming

Elektrisk oppvarming i bygget

Vinduer Fasadevindu

🧱 tre

Antall: 10

6 vinduer på hovedbygg, 3 vinduer på enebolig, 1 vindu på garasje vestfasade

Vinduer i tre på bolig og garasje

Garasjeport Leddport

Antall: 1

Leddport 490x236 cm

Garasjeport til ny garasje

Grunnarbeid Tomtearbeid og fundamentering

Antall: 1

Grunnarbeid for ny garasje og veranda, inkludert manøvreringsareal og snuplass

Grunnarbeid for bygging av garasje og veranda

Fasade Lévegg til veranda

🧱 tre

Antall: 1

Lévegg med høyde og lengde som oppfattes som dominerende, anbefalt redusert høyde for bedre visuelle kvaliteter

Lévegg til veranda for å skjerme mot vær og gi privatliv

Tømrer Bindingsverk og kledning

🧱 tre

Antall: 1

Bindingsverk 98 mm, tre kledning på garasje og veranda

Tømrerarbeid for garasje og veranda

Fasader

Hovedbygg

Ukjent
Materiale
Tre
Taktype
Saltak
Vinduer
6
Dører
0
Synlige etasjer
2

Enebolig

Ukjent
Taktype
Saltak
Vinduer
3
Dører
0
Synlige etasjer
2

Garasje

Vest
Materiale
Tre
Taktype
Saltak
Høyde
3.0 m
Mønehøyde
4.0 m
Vinduer
1
Dører
1
Synlige etasjer
1
Nord
Materiale
Tre
Taktype
Saltak
Høyde
3.0 m
Mønehøyde
4.0 m
Vinduer
0
Dører
0
Synlige etasjer
1
Sør
Materiale
Tre
Taktype
Saltak
Høyde
3.0 m
Mønehøyde
4.0 m
Vinduer
0
Dører
0
Synlige etasjer
1

Hendelser

10.04.2026 Søknad om ferdigattest - 47/296 - Nord i enga 6
04.08.2025 Kommentarer til foreløpig svar - garasje - terrasse - 47/296 - Nord i enga 6
23.03.2013 Byggetillatelse for oppføring av veranda tilknyttet bolig samt nybygg garasje - 47/296 - Nord i enga 6
11.03.2013 Kjørerett 47/3 - 47/296 - Nord i enga 6
07.03.2013 Vedrørende byggetiltak - garasje - terrasse - 47/296 - Nord i enga 6
12.02.2013 Foreløpig svar - garasje - terrasse - 47/296 - Nord i enga 6
05.02.2013 Søknad om tiltak uten ansvarsrett - garasje - terrasse - 47/296 - Nord i enga 6