Rendering
3D-visualisering av en bygning sett fra to ulike vinkler (en skråside og en frontside).
1 / 10
Extension
Soeknad
Garasje
Ny hagestue på Nordengåsen 28, Hvaler
📍 Nordengåsen 28 , 1684 VESTERØY
Nøkkelinfo
- Sakstype
- Tilbygg
- Bygningstype
- Garasje
- Bruksareal
- 23 m²
- Boenheter
- 1
- Kommune
- Hvaler
- Fylke
- Østfold
- Gnr / Bnr
- 50 / 163
- Saksnummer
- 2026/636
- Fase
- Søknad
Om byggesaken
Ny hagestue på 23 m² oppføres som et underordnet tilbygg på eksisterende terrasse mot vest ved en enebolig på Nordengåsen 28. Bygget tilpasses eksisterende bolig med hensyn til form, materialbruk og fargevalg, og vil ikke medføre terrenginngrep eller økt privatisering. Hagestuen bygges i tre med saltak, og har begrenset visuell påvirkning på omgivelsene. Prosjektet inkluderer tilpasning til eksisterende bebyggelse og eksisterende uteplass.
Produkter og materialer
Tømrer
Bygging av hagestue
Tømrerarbeid for oppføring av hagestue
Tak
Saltak
🧱 Taktekking ikke spesifisert
Saltak som tilpasses eksisterende bolig
Nytt saltak på hagestuen
Dører
Ytterdør
Antall: 1
Dør til hagestuen
Vinduer
Fasadevindu
Antall: 4
Vinduer i hagestuen, antatt 4 stk basert på fasadetegninger
Grunnarbeid
Terrassegrunn
Bygges på eksisterende terrasse, ingen terrenginngrep
Grunnarbeid for hagestue på etablert terrasse
Fasade
Trevegger
🧱 Tre
Tilpasses eksisterende bebyggelse med hensyn til form, materialbruk og fargevalg
Utvendig kledning i tre som matcher eksisterende bolig
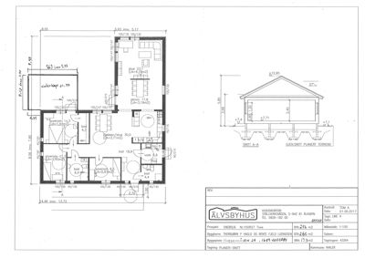
Plantegning
Enebolig 256.0 m²
Etasje 1 256.0 m²
| Rom | Areal | Vinduer | Dører |
|---|---|---|---|
| Stue 101 | 23.1 m² | 1 | 1 |
| Allrom 102 | 17.8 m² | 1 | 0 |
| Kjøkken/stue 103 | 30.0 m² | 1 | 1 |
| Hall 104 | 18.9 m² | 1 | 2 |
| Vask 105 | 5.6 m² | 0 | 1 |
| Soverom 106 | 14.3 m² | 1 | 1 |
| Soverom 107 | 9.5 m² | 1 | 1 |
| Soverom 108 | 11.2 m² | 1 | 1 |
| Bad 109 | 6.4 m² | 0 | 1 |
| Bad 110 | 4.4 m² | 0 | 1 |
| Bod 111 | 4.3 m² | 0 | 1 |
| Vinterhage 112 | 21.8 m² | 4 | 1 |
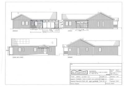
Fasader
Enebolig
Nordvest
- Materiale
- Tre
- Taktype
- Saltak
- Vinduer
- 4
- Dører
- 0
- Synlige etasjer
- 1
Sydvest
- Materiale
- Tre
- Taktype
- Saltak
- Vinduer
- 2
- Dører
- 0
- Balkonger
- 1
- Synlige etasjer
- 1
Sydøst
- Materiale
- Tre
- Taktype
- Flatt tak
- Vinduer
- 4
- Dører
- 1
- Synlige etasjer
- 1
Nordøst
- Materiale
- Tre
- Taktype
- Saltak
- Vinduer
- 2
- Dører
- 1
- Balkonger
- 1
- Synlige etasjer
- 1
Hendelser
16.04.2026
Søknad uten ansvarsrett - hagestue - 50/163 - Nordengåsen 28