Photo
Fotografi av en rød, på stolper stående bygning ved vannet.
1 / 16
Extension
UnderBehandling
Garasje
Ny hagestue som tilbygg til garasje i Rørvikvegen 24
📍 Rørvikvegen 24 , 6040 VIGRA
Nøkkelinfo
- Sakstype
- Tilbygg
- Bygningstype
- Garasje
- Bruksareal
- 25 m²
- Kommune
- Giske
- Fylke
- Møre og Romsdal
- Gnr / Bnr
- 3 / 104
- Saksnummer
- 2026/498
- Fase
- Under behandling
Om byggesaken
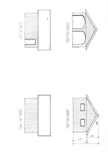
Ny hagestue på 25,35 m² bygges som en forlengelse av eksisterende garasje på eiendommen i Rørvikvegen 24. Garasjen har et bebygd areal (BYA) på 42,25 m² og saltak med gesimshøyde på 3 meter og mønehøyde på 5 meter. Hagestuen er tilknyttet garasjen og utgjør et samlet BYA på 67,6 m². Bygget er i én etasje og oppføres i tre med saltak. Det foreligger dispensasjon fra plankrav for tiltaket, og søknaden inkluderer nødvendige tegninger som plantegning, snitt og fasader. Nabovarsling er gjennomført, og tiltaket er plassert i et LNF-område med dispensasjon fra krav om reguleringsplan.
Produkter og materialer
Maling
Utvendig maling
Maling av utvendige treflater
Tak
Saltak
🧱 Taktekking ikke spesifisert
Saltak med gesimshøyde 3 m og mønehøyde 5 m
Tak med saltak som på eksisterende garasje
Tømrer
Bygging av tilbygg
Tømrerarbeid for oppføring av hagestue som tilbygg
Dører
Garasjeport
Antall: 1
Garasjeport på eksisterende garasje
Vinduer
Fasadevindu
Antall: 1
Ett vindu på østfasade av uthus/tilbygg
Grunnarbeid
Fundamentering
Grunnarbeid for nytt tilbygg/hagestue
Isolasjon
Vegger og tak
Isolasjon i vegger og tak for hagestue
Fasade
Trevegger
🧱 Tre
Tilbygg i tre som forlengelse av eksisterende garasje
Fasade i tre som matcher eksisterende garasje
Fasader
Uthus
Øst
- Vinduer
- 1
- Dører
- 0
- Synlige etasjer
- 1
Garasje
Syd
- Materiale
- Tre
- Taktype
- Saltak
- Vinduer
- 0
- Dører
- 1
- Synlige etasjer
- 1
Vest
- Materiale
- Tre
- Taktype
- Saltak
- Vinduer
- 0
- Dører
- 0
- Synlige etasjer
- 1
Nord
- Materiale
- Tre
- Taktype
- Saltak
- Vinduer
- 0
- Dører
- 0
- Synlige etasjer
- 1
Øst
- Materiale
- Tre
- Taktype
- Saltak
- Vinduer
- 2
- Dører
- 0
- Synlige etasjer
- 1
Sør
- Taktype
- Saltak
- Høyde
- 3.0 m
- Mønehøyde
- 5.0 m
- Vinduer
- 0
- Dører
- 0
- Synlige etasjer
- 1
Hendelser
17.04.2026
Gbnr 3/104 - Rørvikvegen - Hagestue - byggesøknad
27.02.2026
Gbnr 3/104 - Rørvikvegen - Hagestue - Søknad om dispensasjon frå plankrav - Etterlysar supplerande opplysningar
30.01.2026
Gbnr 3/104 - Rørvikvegen - Hagestue - byggesøknad