Extension Soeknad Garasje

Ny utebod og gjerder i Skansveien 11, Røros

📍 Skansveien 11 , 7374 RØROS

Nøkkelinfo

Sakstype
Tilbygg
Bygningstype
Garasje
Bruksareal
14 m²
Kommune
Røros - Rosse
Fylke
Trøndelag - Trööndelage
Gnr / Bnr
161 / 73
Saksnummer
2026/326
Fase
Søknad

Om byggesaken

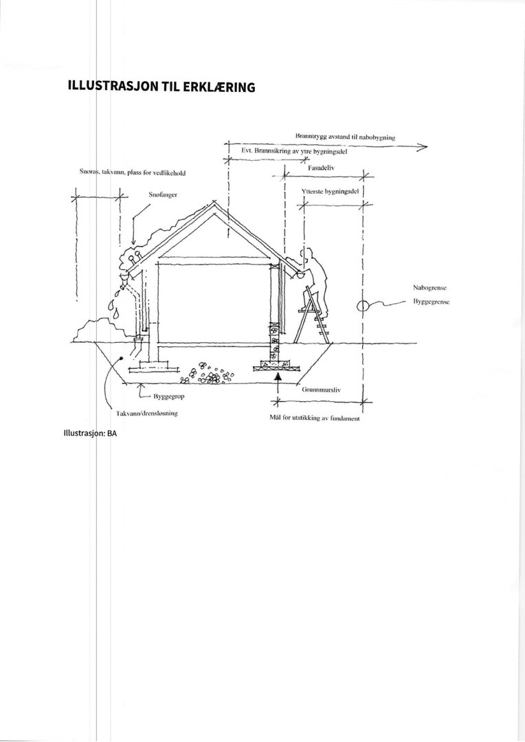
Ny frittstående utebod på ca. 13,9 m² med valmtak tekket med papp, bygget i tre med stående høvlet vekselpanel eller glattpanel malt i samme farge som bolighuset. Uteboden plasseres i tomtens vestre hjørne på samme sted som tidligere uthus, med bjelkelag på trykkimpregnerte pilarer ned til frostfri dybde. Det etableres også et tradisjonelt plankegjerde på ca. 170 cm høyde og et stakittgjerde på ca. 80 cm, begge malt i farger som harmonerer med boligen. Fundamentering skjer på betongfundamenter/steiner. Prosjektet inkluderer forlengelse av eksisterende støttemur og tilpasning til terreng med trapp. Avløpsledninger under byggeområdet skal skiftes ut med mulighet for overbygging og vedlikehold. Uteboden har doble dører og mulighet for sitteplass sommerstid. Prosjektet ligger innenfor vernet kulturmiljø i Røros sentrum og er tilpasset dette.

Produkter og materialer

Fasade Stakittgjerde

🧱 Tre, malt hvitt eller samme farge som bolighuset

Høyde ca. 80 cm, forlengelse av plankegjerde langs tomtegrense

Stakittgjerde som skjermer uteområdet og avgrenser mot bod

Maling Utvendig maling

🧱 Maling til trepanel og gjerder

Maling i farger som harmonerer med bolighuset på panel og gjerder

Overflatebehandling av utebod og gjerder

Mur Støttemur

🧱 Eksisterende murkant forlenges

Støttemur ca. 1,5 m ut fra husvegg forlenges til nabogrense

Forlengelse av støttemur for tilpasning til terreng og nabogrense

Tak Valmtak med papptekking

🧱 Papp

Antall: 1

Valmtak med papptekking på utebod

Taktekking på utebod

Grunnarbeid Betongfundamenter

🧱 Betong

Betongfundamenter/steiner for bjelkelag under utebod

Fundamentering for utebod på frostfri dybde

Fasade Plankegjerde

🧱 Høvlet vekselpanel eller glattpanel, malt

Høyde ca. 170 cm, malt i samme farge som bolighuset

Tradisjonelt tett plankegjerde langs tomtegrense vest og sør

Elektro Ingen spesifikasjon

Ingen elektriske installasjoner planlagt

Ingen elektriske anlegg i utebod

Tømrer Bjelkelag og trebordgulv

🧱 Trykkimpregnert trevirke

Bjelkelag på pilarer, trebordgulv, doble dører

Bygging av gulv og dører til utebod

VVS Avløpsledninger

🧱 PVC-rør i betongkum

Utskifting av vann- og avløpsledninger under utebod, med mulighet for overbygging og vedlikehold

Nye vann- og avløpsledninger legges i rør under utebod

Fasader

Utebod

Nord
Materiale
Tre
Taktype
Valmtak
Takmat.
Papp
Høyde
2.4 m
Mønehøyde
2.5 m
Vinduer
0
Dører
1
Synlige etasjer
1
Vest
Materiale
Tre
Taktype
Valmtak
Takmat.
Papp
Høyde
2.4 m
Mønehøyde
2.5 m
Vinduer
0
Dører
1
Synlige etasjer
1
Øst
Materiale
Tre
Taktype
Valmtak
Takmat.
Papp
Høyde
2.4 m
Mønehøyde
2.5 m
Vinduer
0
Dører
2
Synlige etasjer
1
Sør
Materiale
Tre
Taktype
Valmtak
Takmat.
Papp
Høyde
2.4 m
Mønehøyde
2.5 m
Vinduer
0
Dører
1
Synlige etasjer
1

Hendelser

16.04.2026 Supplering av søknad
04.03.2026 Intern høring - uthus og gjerder - gbnr. 161/73 - Skansveien 11
27.02.2026 Søknad om tillatelse i ett trinn - gbnr 161/73 - Skansveien 11