Extension Soeknad Garasje

Tilbygg til garasje med teknisk rom i Slemmestadveien 626

📍 Slemmestadveien 626 , 3470 SLEMMESTAD

Nøkkelinfo

Sakstype
Tilbygg
Bygningstype
Garasje
Bruksareal
31 m²
Kommune
Asker
Fylke
Akershus
Gnr / Bnr
238 / 17
Saksnummer
25/3484
Fase
Søknad

Om byggesaken

Prosjektet omfatter et tilbygg på 31 m² til en eksisterende garasje på eiendommen Slemmestadveien 626. Garasjen har to bilplasser og hems som ikke lenger skal brukes til varig opphold. Tilbygget skal huse et nytt varmesystem med vedovn med vannkappe og flere akkumulatortanker, og inkluderer en kjellerdel under tilbygget. Taket på tilbygget blir en takterrasse. Garasjen og tilbygget er tilpasset hovedhusets estetikk med tilsvarende kledning og takform. Det er søkt om nødvendige dispensasjoner for overskridelse av regulert byggegrense, grunnflate og mønehøyde. Prosjektet inkluderer også oppgradering av brannkrav og tilknytning til offentlig vann- og avløpsnett.

Arbeidsomfang

- Tilbygg til garasje med samlet areal på ca. 31 m² - Innbygging av nytt varmesystem i tilbygget

Produkter og materialer

Dører Ytterdører til garasje og tilbygg

Antall: 2

Dører til garasje og tilbygg, antall 2

Ytterdører til garasje og tilbygg

Betong Grunnmurplate og kjeller

🧱 Betong

Grunnmurplate på ca 31 m² og kjeller under tilbygget er ferdigstøpt

Betongarbeid for fundament og kjeller under tilbygget

Vinduer Fasadevindu

Antall: 0

Ingen nye vinduer i tilbygget eller garasjen

Ingen nye vinduer planlagt i tilbygget

Pipe Skorstein i rustfritt stål

🧱 Rustfritt stål

Antall: 1

Skorstein montert på østsiden av tilbygget

Skorstein for vedovn i tilbygget

Tak Flatt tak med takterrasse

Antall: 27

Takterrasse på tilbyggets tak, flatt tak på garasje

Tak med terrasse på tilbygget, flatt tak på garasje

Ventilasjon Ventilasjon for teknisk rom og garasje

Ventilasjon til teknisk rom og garasje vurderes iht. forskrifter

Ventilasjonsanlegg for tilbygget og garasje

Isolasjon Isolasjon i vegger og tak

Isolasjonsverdier i henhold til TEK17, ca 0,18 W/(m²K)

Isolasjon for vegger og tak i tilbygget og garasjen

Grunnarbeid Drenering og stabilisering av tomt

Drenering og forsterkning av grunn under tilbygget og garasjen

Grunnarbeid for stabilitet og drenering

Tømrer Bygging av tilbyggets konstruksjon

🧱 Tre

Tilbygg bygges i tre med tilpasset konstruksjon til eksisterende garasje og bolig

Tømrerarbeid for tilbygget

VVS Varmeanlegg med vedovn og akkumulatortanker

Vedovn med vannkappe og flere akkumulatortanker for varmesystem

Installasjon av nytt varmeanlegg i tilbygget

Fasade Trepanel kledning

🧱 Tre

Kledning tilpasses hovedhusets trepanel, samme maling og utforming

Fasade kledning for tilbygget og garasjen

Elektro Brann- og røykvarslingsanlegg

Sammenkoblet brann- og røykvarslingsanlegg for garasje og leilighet

Brann- og røykvarsling installasjon

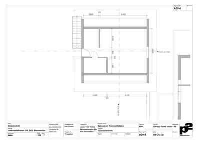
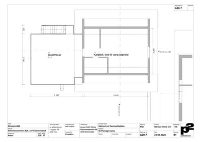
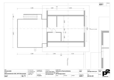
Plantegning

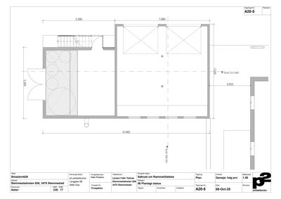
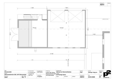
Garasje 27.0 m²

Etasje 1 27.0 m²

Rom Areal Vinduer Dører
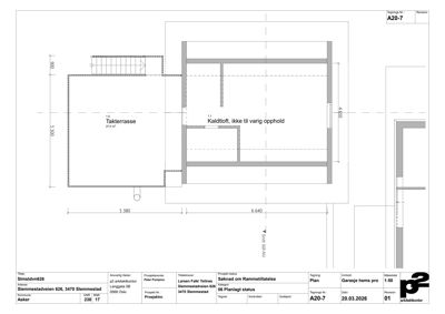
Takterrasse 1.0 27.0 m² 0 0
Kaldtloft 1.1 0.0 m² 0 0
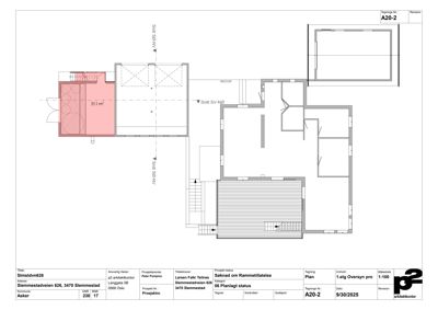
Garasje 101 21.6 m² 0 1
Tilbygg 102 40.1 m² 0 1
Sovegang 103 12.0 m² 0 2
Sovegang 104 12.0 m² 0 2
Sovegang 105 12.0 m² 0 2
Bad 106 6.0 m² 0 1
Vaskerom 107 4.0 m² 0 1
Teknisk rom 108 3.0 m² 0 1
Entré 109 5.0 m² 0 1
Tilbygg 110 31.1 m² 0 1

Kjeller 0.0 m²

Etasje 0 0.0 m²

Rom Areal Vinduer Dører
Teknisk rom 001 0.0 m² 0 0

Takterrasse 27.0 m²

Etasje 1 27.0 m²

Rom Areal Vinduer Dører
Takterrasse 1.0 27.0 m² 0 0

Fasader

Hovedbygg

Nord-Vest
Materiale
Tre
Taktype
Flatt tak
Vinduer
2
Dører
1
Balkonger
1
Synlige etasjer
2

Enebolig

Sørøst
Materiale
Tre
Taktype
Saltak
Vinduer
4
Dører
1
Balkonger
2
Synlige etasjer
3
Nord-Øst
Materiale
Tre
Taktype
Saltak
Vinduer
1
Dører
0
Synlige etasjer
1
Syd-Vest
Materiale
Tre
Taktype
Saltak
Vinduer
3
Dører
1
Balkonger
1
Synlige etasjer
2
Nord-Vest
Materiale
Tre
Taktype
Flatt tak
Vinduer
2
Dører
1
Balkonger
1
Synlige etasjer
2
Syd-Øst
Materiale
Tre
Taktype
Saltak
Vinduer
4
Dører
1
Balkonger
2
Synlige etasjer
2
Sør-Øst
Materiale
Tre
Taktype
Flatt tak
Vinduer
2
Dører
1
Balkonger
2
Synlige etasjer
3

Hendelser

08.04.2026 238/17 Slemmestadveien 626 - Supplering av søknad søknad
30.03.2026 238/17 Slemmestadveien 626 - Bekreftelse på utsatt frist
27.03.2026 238/17 Slemmestadveien 626 - Ber om forlenget frist for innsending av dokumentasjon
16.03.2026 238/17 Slemmestadveien 626 - E-post med forslag til møtetidspunkt
02.03.2026 238/17 Slemmestadveien 626 - Ønsker Teams-møte med ny saksbehandler
30.01.2026 238/17 Slemmestadveien 626 - Ufullstendig søknad søknad
28.01.2026 238/17 Slemmestadveien 626 - Omprosjektering Slemmestadveien 626
27.01.2026 238/17 Slemmestadveien 626 - Omprosjektering
22.12.2025 238/17 Slemmestadveien 626 - Bekreftelse på utsatt frist
15.12.2025 238/17 Slemmestadveien 626 - Ber om forlengelse av fristen for tilbakemelding
14.11.2025 238/17 Slemmestadveien 626 - Varsel om avslag på søknad om garasje med boenhet avslag
24.10.2025 238/17 Slemmestadveien 626 - Utvidelse av byggesøknaden
22.10.2025 238/17 Slemmestadveien 626 - Oppsumering av telefonsamtale
13.10.2025 238/17 Slemmestadveien 626 - Søknad om rammetillatelse - Tilbygg til garasje rammetillatelse