Extension Rammetillatelse Garasje

Tilbygg til eksisterende garasje i Sorenskriverveien 12, Mysen

📍 Sorenskriverveien 12 , 1850 MYSEN

Nøkkelinfo

Sakstype
Tilbygg
Bygningstype
Garasje
Bruksareal
29 m²
Kommune
Indre Østfold
Fylke
Østfold
Gnr / Bnr
329 / 339
Saksnummer
2023/4819
Fase
Rammetillatelse

Om byggesaken

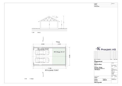
Tilbygg på 29,1 m² til eksisterende frittstående garasje på Sorenskriverveien 12 i Mysen. Tilbygget forlenger garasjen 4,7 meter mot øst, med samme høyde på 4,34 meter og saltak med 27 graders takvinkel. Garasjen har trevegger i tre med gul teglstein taktekking, og inneholder ett rom på 70,06 m² totalt etter tilbygget. Fasadene har totalt to vinduer på nord- og sørfasade, og garasjeport på vestfasade. Bygget er plassert innenfor byggegrenser og ivaretar naboforhold og estetikk i området. Det er gitt dispensasjon for at samlet garasjeareal overstiger regulert maksimum på 30 m².

Produkter og materialer

Garasjeport Garasjeport på vestfasade

Antall: 1

Garasjeport på vestfasade for biladkomst

Grunnarbeid Gravearbeid

Gravearbeid utført av Per Kirkeng

Gravearbeid for fundamentering og drenering

Tømrer Trekonstruksjoner

🧱 Tre

Tømrerarbeid og montering av trekonstruksjoner

Tømrerarbeid utført av HT Byggservice AS

Tak Saltak med teglstein

🧱 Teglstein

Saltak med 27 graders takvinkel, teglstein som takmateriale

Tak med saltak og teglstein som taktekking, samme høyde som eksisterende garasje

Grunnarbeid Fundamentering og grunnarbeid

Grunnarbeid for tilbygg til eksisterende garasje

Grunnarbeid og fundamentering for tilbygget

Fasade Trevegger

🧱 Tre

Trevegger malt i gul farge

Yttervegger i tre med gul farge som matcher eksisterende garasje

Vinduer Fasadevindu

Antall: 2

1 vindu på nordfasade, 1 vindu på sørfasade

To fasadevinduer for naturlig lys i garasjen

Betong Betongarbeider

Betongarbeid for fundament og gulvplate

Betongarbeider utført av Lars Uvaag AS

Plantegning

Garasje 70.1 m²

Etasje 1 70.1 m²

Rom Areal Vinduer Dører
Garasje 101 70.1 m² 0 0

Fasader

Garasje

Nord
Materiale
Tre
Taktype
Saltak
Takmat.
Tegl
Høyde
4.4 m
Vinduer
1
Dører
0
Synlige etasjer
1
Øst
Materiale
Tre
Taktype
Saltak
Takmat.
Tegl
Høyde
4.3 m
Vinduer
0
Dører
0
Synlige etasjer
1
Sør
Materiale
Tre
Taktype
Saltak
Takmat.
Tegl
Høyde
4.3 m
Vinduer
1
Dører
0
Synlige etasjer
1
Vest
Materiale
Tre
Taktype
Saltak
Takmat.
Tegl
Høyde
4.3 m
Vinduer
0
Dører
0
Synlige etasjer
1

Hendelser

15.04.2026 Gbnr 329/339 - Sorenskriverveien 12 - Tilbygg til eksisterende garasje - Supplering av søknad
26.10.2023 Gbnr 329/339 - Sorenskriverveien 12 - Reviderte tegninger
24.10.2023 Gbnr 329/339 - Sorenskriverveien 12 - Tilbygg til eksisterende garasje - Dispensasjon - Tillatelse til tiltak
07.08.2023 Gbnr 329/339 - Sorenskriverveien 12 - Supplering av søknad
03.07.2023 Gbnr 329/339 - Sorenskriverveien 12 - Tilbygg til eksisterende garasje - Tilbakemelding om mangler
08.06.2023 Gbnr 329/339 - Sorenskriverveien 12 - Søknad om tilbygg til eksisterende garasje