Extension Rammetillatelse Garasje

Ny drivhus-tilbygg på driftsbygning, Strandveien 82

📍 Strandveien 82 , 8387 FREDVANG

Nøkkelinfo

Sakstype
Tilbygg
Bygningstype
Garasje
Bruksareal
100 m²
Kommune
Flakstad
Fylke
Nordland - Nordlánnda
Gnr / Bnr
26 / 7
Saksnummer
26/73
Fase
Rammetillatelse

Om byggesaken

Ny frittstående drivhus-tilbygg på 99,9 m² knyttet til eksisterende driftsbygning på Strandveien 82. Drivhuset har en gesimshøyde på 4,8 meter og kombinerer saltak i tre på nord- og sørfasade med flatt tak på øst- og vestfasade. Bygget er utført i tre med rødmalt saltak og inneholder ett rom på 99,9 m². Tilbygget har én dør på vestfasaden og ingen vinduer. Prosjektet inkluderer fundamentering, bærekonstruksjon i tre, taktekking, og montering av drivhusramme med spesifikke paneler og takvinduer i henhold til leverandørspesifikasjonene.

Produkter og materialer

Fasade Trevegger

🧱 Tre

Rødmalt trepanel på alle fasader

Yttervegger i tre som kledning på drivhuset

Tak Saltak og flatt tak

🧱 Tre og taktekking

Saltak på nord- og sørfasade, flatt tak på øst- og vestfasade, rødt tak

Taktekking med saltak og flatt tak i kombinasjon, rødmalt

Fasade Drivhusramme og paneler

🧱 Aluminium/stål og glass/plast

Greenhouse frame GHP4x10 med veggpaneler FW-4000, W-1, W-2, takpaneler RP-1, RP-2, dørpaneler, og festemateriell iht. leverandørens manual

Komplett drivhusramme med vegg- og takpaneler, dører og festemateriell

Tømrer Bærekonstruksjon

🧱 Tre

Tømrerarbeid for bærekonstruksjon og montering av drivhus-tilbygg

Dører Ytterdør

🧱 Tre

Antall: 1

1 dør på vestfasade

Ytterdør i tre på vestfasade til drivhuset

Grunnarbeid Fundamentering

Fundamentering for drivhus-tilbygg på eksisterende driftsbygning

Vinduer Takvindu

Antall: 4

Takvinduer RW-4000 i henhold til drivhusramme spesifikasjon

Takvinduer for ventilasjon og lys i drivhustaket

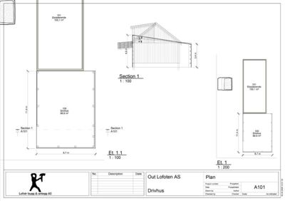
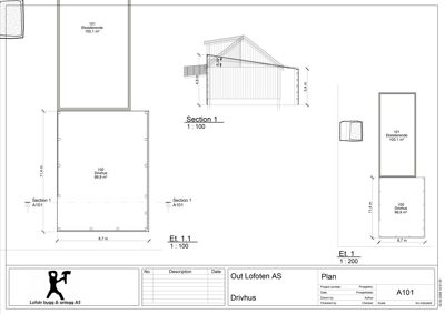
Plantegning

Drivhus 99.9 m²

Etasje 1 99.9 m²

Rom Areal Vinduer Dører
Drivhus 100 99.9 m² 0 0

Fasader

Drivhus

Nord
Materiale
Tre
Taktype
Saltak
Vinduer
0
Dører
0
Synlige etasjer
1
Sør
Materiale
Tre
Taktype
Saltak
Vinduer
0
Dører
0
Synlige etasjer
1
Øst
Materiale
Tre
Taktype
Flatt tak
Vinduer
0
Dører
0
Synlige etasjer
1
Vest
Materiale
Tre
Taktype
Flatt tak
Vinduer
0
Dører
1
Synlige etasjer
1

Hendelser

21.04.2026 Strandveien 82 Søknad om tillatelse i ett trinn 26/7
20.03.2026 Tillatelse til tiltak uten ansvar - gnr 26 bnr 7 - -
11.03.2026 Vi innvilger søknaden om samtykke etter automatisk saksbehandling
10.03.2026 Strandveien 82 Supplering av søknad 26/7
03.03.2026 Strandveien 82 Søknad om tillatelse til tiltak uten ansvarsrett 26/7