Extension UnderBehandling Garasje

Tilbygg med dobbel carport og bod i Urabakken 5, Ålesund

📍 Urabakken 5 , 6017 ÅLESUND

Nøkkelinfo

Sakstype
Tilbygg
Bygningstype
Garasje
Bruksareal
60 m²
Kommune
Ålesund
Fylke
Møre og Romsdal
Gnr / Bnr
51 / 197
Saksnummer
2025/6441
Fase
Under behandling

Om byggesaken

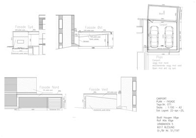
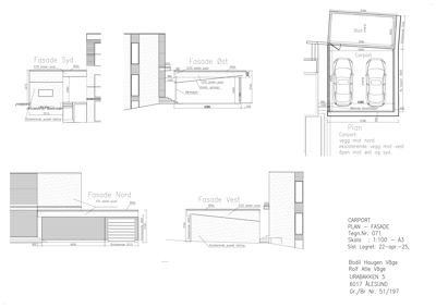
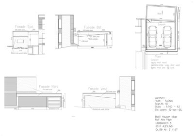
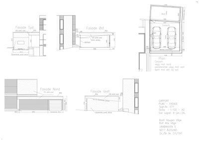
Eksisterende garasje fra 1974 på ca. 19,5 m² (3x6,5 m) i betong med pulttak bygges om til bod. Taket på garasjen bygges om fra pulttak til flatt tak med bjelkelag og parapet, noe som øker takhøyden med 0,5 meter. Det bygges en dobbel carport på østsiden av garasjen med plass til to biler, parallelt med veien. Carporten og boden får betongfasader med flatt tak, og fasadene har totalt 5 vinduer fordelt på øst, vest og sør. Bygget får en gesimshøyde på ca. 3,1-3,2 meter og en samlet BYA på ca. 60,3 m². Tiltaket inkluderer også flytting av innkjørsel og tilpasning til eksisterende terreng og vei. Brannkrav ivaretas med EI60-plater mot nabo. Det søkes dispensasjon for plassering nærmere enn 4 meter fra nabogrense mot vest. Prosjektet innebærer endring av eksisterende bygg og tilbygg, med ansvarlig søker, prosjekterende og utførende involvert.

Produkter og materialer

Elektro Utendørs belysning og el-installasjon

Elektrisk installasjon for carport og bod

Grunnarbeid Terrengtilpasning og innkjørsel

Flytting av innkjørsel godkjent, terrengretting mot syd

Grunnarbeid for ny innkjørsel og tilpasning til terreng

Fasade Betongfasade

🧱 Betong, STO-pussplater, EI30 og EI60 plater

Betong vegger med STO-pussplater, brannsikring med EI60 plater mot nabo

Fasadevegger i betong med puss og brannsikring

Tak Flatt tak med bjelkelag og parapet

🧱 Bjelkelag, takmembran, parapet

Tak bygges om fra pulttak til flatt tak, takhøyde økes med 0,5 m

Nytt flatt tak på bod og carport med bjelkelag og parapet

Maling Utvendig maling og overflatebehandling

Overflatebehandling av fasade og tak

Tømrer Bjelkelag og bærende konstruksjon

🧱 Trevirke

Nytt bjelkelag for flatt tak og carport

Tømrerarbeid for tak og carportkonstruksjon

Brannvern Brannsikring vegg mot nabo

🧱 EI60 plater

Brannsikring av vegg mot nabo iht. TEK17

Brannsikring for å forhindre brannspredning

Vinduer Fasadevindu

Antall: 5

Vinduer i fasade øst (2), vest (2) og sør (1)

Fasader

Carport

Syd
Materiale
Betong
Taktype
Flatt tak
Høyde
3.2 m
Vinduer
1
Dører
0
Synlige etasjer
1
Øst
Materiale
Betong
Taktype
Flatt tak
Høyde
3.1 m
Vinduer
2
Dører
0
Synlige etasjer
1
Nord
Materiale
Betong
Taktype
Flatt tak
Høyde
3.1 m
Vinduer
0
Dører
0
Synlige etasjer
1
Vest
Materiale
Betong
Taktype
Flatt tak
Høyde
3.1 m
Vinduer
2
Dører
0
Synlige etasjer
1

Hendelser

22.04.2026 Gbnr. 51/197 - Status byggesøknad - Urabakken 5 - Carport
17.02.2026 Gbnr. 51/197 - Søknad om tillatelse i ett trinn - Urabakken 5 - Carport
09.02.2026 Gbnr. 51/197 - Kopi - Urabakken 5 - Svar på nabovarsel om endring av bygg, garasje til bod - tilbygg, carport
12.09.2025 Gbnr. 51/197 - Tilbakemelding om mangler - Urabakken 5 - Carport
19.05.2025 Gbnr. 51/197 - Søknad om tillatelse til tiltak uten ansvarsrett - Carport