Extension UnderBehandling Garasje

Ny frittliggende bod og pergola ved velhus på Brønnøya

📍 Velhusveien 9 , 1397 NESØYA

Nøkkelinfo

Sakstype
Tilbygg
Bygningstype
Garasje
Bruksareal
29 m²
Kommune
Asker
Fylke
Akershus
Gnr / Bnr
41 / 415
Saksnummer
20/5766
Fase
Under behandling

Om byggesaken

Ny frittliggende bod på 4,6 m² med en dør, samt en åpen pergolakonstruksjon på 24 m², begge tilknyttet et eksisterende velhus på Brønnøya. Pergolaen er åpen og medregnes ikke i bebygd areal, mens boden bidrar til en samlet bebygd areal på 217 m² på eiendommen. Bod og pergola har saltak, og det er også planlagt et enkelt takoverbygg over hovedinngangsdøren til velhuset. Bygget er plassert innenfor reguleringsplanens krav til utnyttelse, og tiltaket inkluderer lagringsplass for utstyr til drift av velhuset.

Produkter og materialer

Fasade Pergola

🧱 tre

Antall: 1

Åpen pergolakonstruksjon på 24 m², tilknyttet uthus og velhus

Åpen pergola som sammenføyes med uthuset, gir skjermet uteområde

Tømrer Bygging av uthus og pergola

🧱 tre

Tømrerarbeid for konstruksjon av bod og pergola

Tømrerarbeid for oppføring av bod og pergola

Uthus Bod

🧱 tre

Antall: 1

Frittliggende bod på 4,6 m² med 1 dør

Bod til lagring av utstyr for drift av velhuset

Grunnarbeid Fundamentering

Fundamentering for bod og pergola iht. byggtekniske krav

Grunnarbeid for oppføring av bod og pergola

Tak Saltak

Antall: 2

Saltak på bod og takoverbygg ved inngang til velhus

Tak på bod og takoverbygg over hovedinngang

Dører Ytterdør

Antall: 2

1 dør på bod, 1 dør på takoverbygg

Ytterdører til bod og takoverbygg

Maling Utvendig maling

Maling av bod og pergola for værbeskyttelse

Utvendig maling av bod og pergola

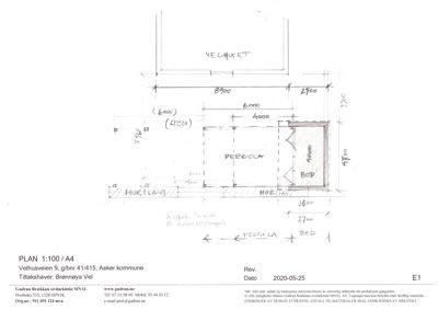
Plantegning

Uthus 28.6 m²

Etasje 1 28.6 m²

Rom Areal Vinduer Dører
Pergola PERGOLA 24.0 m² 0 0
Bod BOD 4.6 m² 0 1

Fasader

Garasje

Øst
Vinduer
0
Dører
1
Synlige etasjer
1

Uthus

Øst
Vinduer
1
Dører
0
Synlige etasjer
1

Enebolig

Vest
Taktype
Saltak
Vinduer
2
Dører
1
Synlige etasjer
1
Nord
Vinduer
1
Dører
2
Synlige etasjer
1

Velhuset

Sør
Vinduer
0
Dører
0
Synlige etasjer
1

Takoverbygg

Ukjent
Taktype
Saltak
Vinduer
2
Dører
1
Synlige etasjer
1

Hendelser

14.04.2026 41/415 Frittliggende bod og åpen pergolakonstruksjon tilkyttet velhuset - Brønnøya - Manglende ferdigattest eller midlertidig brukstillatelse
05.10.2020 41/415 Tillatelse til tiltak uten ansvar - Frittliggende bod og pergola tilkyttet velhuset
02.09.2020 41/415 Søknad om frittliggende bod og åpen pergolakonstruksjon tilkyttet velhuset - Brønnøya
02.09.2020 41/415 Kvitteringsbrev - Frittliggende bod og åpen pergolakonstruksjon tilkyttet velhuset - Brønnøya