NewConstruction Igangsettingstillatelse Landbruk

Ny driftsbygning i Bunesvegen 256, Sagstua

📍 Bunesvegen 256 , 2120 SAGSTUA

Nøkkelinfo

Sakstype
Nybygg
Bygningstype
Landbruk
Bruksareal
515 m²
Kommune
Nord-Odal
Fylke
Innlandet
Gnr / Bnr
37 / 1
Saksnummer
25/2678
Fase
Igangsettingstillatelse

Om byggesaken

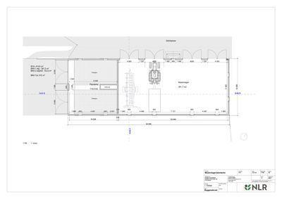
Ny driftsbygning på landbrukseiendommen Bunesvegen 256, Sagstua, med et samlet bruksareal på 515 m² fordelt på ett plan og loft. Bygget består av maskinlager og redskapshus, tidligere planlagt med plantørke, men endret til rent redskapshus. Bygningen har tradisjonell arkitektur med stående rød tømmermannskledning, saltak og flatt tak på deler. Fasader er tilpasset eksisterende gårdsbebyggelse med flere vinduer og dører for funksjonell tilgang. Bygget plasseres på tunet med god adkomst via eksisterende gårdsvei, og det er etablert gårdsplass uten omdisponering av dyrket mark. Det er innvendig trapp til loft som benyttes som lager. Bygget er tilpasset terreng og landskap, og oppfyller krav til visuell kvalitet og sikkerhet mot naturfarer.

Produkter og materialer

Tømrer Bygging av driftsbygning i tre

🧱 Tre

Tømrerarbeider for oppføring av byggets konstruksjon, vegger, tak og innvendige elementer

Tømrerarbeid for driftsbygning

Grunnarbeid Oppfylling og planering

Grunnarbeider for fundamentering med støpt plate på grunn, mindre oppfylling av terreng

Grunnarbeid for bygging av driftsbygning

Vinduer Fasadevindu i tre

🧱 Tre

Antall: 12

Vinduer plassert på fasader nord, sør, øst og vest, inkludert ekstra vinduer på sør- og vestfasade etter endring

Vinduer for naturlig lys og ventilasjon i driftsbygningen

Utendørs Gårdsplass

Etablering av gårdsplass på tilstøtende areal til bygget, uten omdisponering av dyrket mark

Gårdsplass for adkomst og drift rundt driftsbygningen

Trapper Innvendig enkel trapp til loft

Antall: 1

Enkel trapp innenfor inngangspartiet til loftsarealet som brukes som lager

Innvendig trapp for tilgang til loft i driftsbygningen

Fasade Stående tømmermannskledning

🧱 Tre, rød farge

Stående rød tømmermannskledning med fasadedetaljer og vindskier inspirert av eksisterende gårdsbebyggelse

Ytterkledning for driftsbygningens fasader

Dører To-fløyede dører og enkeltdører i tre

🧱 Tre

Antall: 5

To-fløyede dører på langside nord, enkeltdør på fasade nord, og to store dører erstattet med vinduer på vestgavl etter endring

Adkomstdører til maskinlager og redskapshus

Betong Støpt plate på grunn

🧱 Betong

Støpt plate som fundament for bygget

Fundamentering av driftsbygning

Elektro Elektriske installasjoner i landbruk

Installasjon av elektriske anlegg iht. NEK400 landbruk

Elektrisk anlegg for driftsbygning

Tak Saltak og flatt tak

🧱 Tegl på flatt tak, tradisjonelt saltak på øvrige deler

Saltak med tradisjonell utforming og flatt tak med teglmateriale

Taktekking for driftsbygningens ulike takflater

Fasader

Maskinlager

Nord
Materiale
Tre
Taktype
Flatt tak
Takmat.
Tegl
Vinduer
0
Dører
1
Synlige etasjer
1
Sør
Materiale
Tre
Taktype
Flatt tak
Takmat.
Tegl
Vinduer
6
Dører
0
Synlige etasjer
1
Øst
Materiale
Tre
Taktype
Saltak
Vinduer
2
Dører
0
Synlige etasjer
1
Vest
Materiale
Tre
Taktype
Saltak
Vinduer
2
Dører
0
Synlige etasjer
1

Hendelser

10.04.2026 Eiendommen 37/1 - Igangsettingstillatelse for grunnarbeider og endring av rammetillatelse - Oppføring av ny driftsbygning
31.03.2026 Eiendommen 37/1 - Søknad om igangsettingstillatelse
17.09.2025 Eiendommen 37/1 - Rammetillatelse - Oppføring av ny driftsbygning
07.08.2025 Eiendommen 37/1 - Søknad om rammetillatelse