NewConstruction UnderBehandling Landbruk

Ny driftsbygning og stall i Buskumlinna 86, Østre Toten

📍 Buskumlinna 86 , 2850 LENA

Nøkkelinfo

Sakstype
Nybygg
Bygningstype
Landbruk
Bruksareal
190 m²
Kommune
Østre Toten
Fylke
Innlandet
Gnr / Bnr
189 / 3
Saksnummer
2025/3017
Fase
Under behandling

Om byggesaken

Ny driftsbygning og stall på 190 m² oppføres på landbrukseiendommen Buskumlinna 86 i Østre Toten. Bygget har en etasje med flere stallplasser og lagerrom, utført i tre med saltak tekket med teglstein. Fasadene har flere vinduer og dører, og bygget inkluderer en garasjeport. Bygget er plassert delvis på dyrket mark i henhold til godkjent situasjonsplan, og eksisterende uthus skal rives. Bygget er tilknyttet offentlig vann og privat avløpsløsning med krav til rensegrad. Det er ikke trapper eller balkonger i bygget.

Produkter og materialer

Tømrer Byggkonstruksjon i tre

🧱 Tre

Tømrerarbeid for oppføring av trebygget driftsbygning og stall

Grunnarbeid Tomtearbeid og fundamentering

Grunnarbeid og fundamentering for ny driftsbygning og stall

Elektro Elektrisk anlegg

Elektrisk installasjon for driftsbygning og stall

Vinduer Fasadevindu

Antall: 8

Åtte fasadevindu fordelt på fasader mot syd og nord

Garasjeport Garasjeport

Antall: 1

En garasjeport på vestfasade

Tak Saltak med teglstein

🧱 Teglstein

Saltak tekket med teglstein

Tak med saltak konstruksjon og teglstein som taktekking

VVS Vann og avløp

Tilknytning til offentlig vann og privat avløpsanlegg med rensekrav >90% fosfor og organisk stoff

Installasjon av vann- og avløpssystem i henhold til kommunale krav

Dører Ytterdører

Antall: 4

Fire ytterdører fordelt på fasader mot syd, øst og nord

Fasade Trevegger

🧱 Tre

Trevegger med saltak tekket med teglstein

Yttervegger i tre og saltak med teglstein som takmateriale

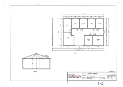
Plantegning

Stall 190.0 m²

Etasje 0 190.0 m²

Rom Areal Vinduer Dører
Lager 001 14.0 m² 0 1
Lager 002 16.6 m² 0 1
Stallplass 003 9.8 m² 0 1
Stallplass 004 9.8 m² 0 1
Stallplass 005 9.8 m² 0 1
Stallplass 006 9.9 m² 0 1
Stallplass 007 9.9 m² 0 1
Stallplass 008 13.7 m² 0 1

Fasader

Stall

Syd
Materiale
Tre
Taktype
Saltak
Takmat.
Tegl
Vinduer
3
Dører
1
Synlige etasjer
1
Øst
Materiale
Tre
Taktype
Saltak
Takmat.
Tegl
Vinduer
0
Dører
1
Synlige etasjer
1
Nord
Materiale
Tre
Taktype
Saltak
Takmat.
Tegl
Vinduer
5
Dører
0
Synlige etasjer
1
Vest
Materiale
Tre
Taktype
Saltak
Takmat.
Tegl
Vinduer
0
Dører
0
Synlige etasjer
1

Hendelser

20.04.2026 Gbnr 189/3 - Buskumlinna 86 - Søknad om ferdigattest
19.06.2025 Gbnr 189/3 - Buskumlinna 86 - Driftsbygning, stall - Godkjenningsvedtak
04.06.2025 Gbnr 189/3 - Buskumlinna 86 - Søknad om tiltak