NewConstruction UnderBehandling Landbruk

Riving av låve og nye driftsbygninger på Kolbulinna 306

📍 Kolbulinna 306 , 2850 LENA

Nøkkelinfo

Sakstype
Nybygg
Bygningstype
Landbruk
Bruksareal
525 m²
Kommune
Østre Toten
Fylke
Innlandet
Gnr / Bnr
237 / 16
Saksnummer
2022/2232
Fase
Under behandling

Om byggesaken

Prosjektet omfatter riving av en gammel låve fra ca. 1930 og oppføring av to nye driftsbygninger på Kolbulinna 306 i Østre Toten. Det ene bygget er et flerbruks bryggerhus på ca. 305 m² BRA med bakerovn, grovkjøkken for honning- og bærforedling, gårdsutsalg, garasje, hobbybod, gjestesoverom, bad, kontor og lagerrom. Det andre bygget er et redskapshus på ca. 220 m² BRA for oppbevaring av traktorer, redskap og maskiner, med mulighet for kjølerom. Byggene er tilpasset gårdens omlegging fra kornproduksjon til bringebær- og honningproduksjon med videreforedling og salg. Det planlegges gjenbruk av materialer fra den gamle låven i bryggerhuset. Byggene har trefasader og saltak, og bryggerhuset har to etasjer med kontor og lager i andre etasje. Det er gitt dispensasjon for bygging nær fylkesveg med vilkår om avstand og oppstart.

Produkter og materialer

Garasjeport Garasjeporter

Antall: 2

Garasjeporter i bryggerhus og redskapshus

Garasjeporter for bil og traktorer

Fasade Trepanel

🧱 Tre

Trefasader på begge bygg

Trepanel til fasader på bryggerhus og redskapshus

Betong Grunnmur og fundament

Grunnarbeid og fundamentering for nye bygg

Trapper Innvendig trapp

Antall: 1

Trapp til andre etasje i bryggerhus

Innvendig trapp til kontor og lager i andre etasje

Bad Bad/WC

Antall: 2

Lite bad i bryggerhus og gjestebad

Bad og WC med sanitærutstyr i bryggerhus

Terrasse Balkong

Antall: 1

Balkong på 35 m² i bryggerhus

Balkong tilknyttet bryggerhus

Grunnarbeid Opparbeidelse av grusveg

Opparbeidelse av enkel grusveg til redskapshus

Utendørs adkomstveg til redskapshus

VVS Vann og avløp

Installasjon av vannklosett og avløpsanlegg til bryggerhus

VVS-installasjoner for bad, kjøkken og gårdsutsalg

Gulv Gulvbelegg og overflater

Gulvbelegg i bryggerhus og redskapshus, inkludert bakerom og lager

Tømrer Bjelker, gulv og tømmerkasser

🧱 Gjenbruk av materialer fra gammel låve

Gjenbruk av bjelker, gulv og tømmerkasser i bryggerhus

Tømrerarbeid med gjenbruk av gamle materialer

Elektro Elektrisk anlegg

Elektrisk installasjon for belysning, varme og tekniske rom

Dører Ytterdører og garasjeporter

Antall: 10

Ytterdører og garasjeporter i bryggerhus og redskapshus

Dører til inngang, garasjeporter og lager

Vinduer Fasadevindu

Antall: 18

Vinduer i trefasader, antall fra fasadeanalyse

Fasadevinduer til bryggerhus og redskapshus

Tak Saltak og flatt tak

Bryggerhus med saltak, garasje-lager med saltak og flatt tak

Taktekking for saltak og flatt tak på byggene

Kjøkken Grovkjøkken

Antall: 1

Grovkjøkken for tapping og foredling av honning og bær

Kjøkkeninnredning og utstyr til grovkjøkken i bryggerhus

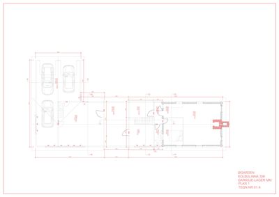
Plantegning

Garasje-Lager 295.5 m²

Etasje 0 120.5 m²

Rom Areal Vinduer Dører
Garasje 001 57.5 m² 0 1
Lager 002 33.0 m² 0 0
Apent areal 003 24.5 m² 0 1
Lager 004 11.5 m² 0 0
Apent areal 005 9.0 m² 0 0
Bad 006 1.0 m² 0 1
Skrøperom 007 1.7 m² 0 1
Teknisk 008 6.5 m² 0 1
Baksterom 009 3.5 m² 0 0

Etasje 1 175.0 m²

Rom Areal Vinduer Dører
Garasje 101 57.5 m² 0 1
Lager 102 33.5 m² 0 1
Apent areal 103 24.5 m² 0 1
Lager 104 11.5 m² 0 1
Apent areal 105 9.0 m² 0 1
Teknisk 106 6.5 m² 0 1
Bad/WC 107 4.0 m² 0 1
Stue 108 12.0 m² 0 1
Balkong 109 35.0 m² 0 1
Garasje-Lager 0 0.0 m² 0 0

Garasje 65.5 m²

Etasje 0 42.0 m²

Rom Areal Vinduer Dører
Lager A 42.0 m² 0 0

Etasje 1 23.5 m²

Rom Areal Vinduer Dører
Kontor C 23.5 m² 0 1

Etasje 2 0.0 m²

Rom Areal Vinduer Dører
Bakstue C 0.0 m² 0 1

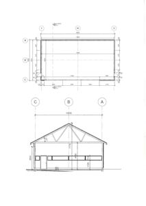
Fasader

Garasje-Lager

Sør
Materiale
Tre
Taktype
Flatt tak
Vinduer
3
Dører
1
Synlige etasjer
1
Nord
Materiale
Tre
Taktype
Saltak
Høyde
4.2 m
Vinduer
4
Dører
1
Synlige etasjer
1
Øst
Materiale
Tre
Taktype
Saltak
Høyde
6.3 m
Mønehøyde
8.3 m
Vinduer
3
Dører
0
Synlige etasjer
2
Vest
Materiale
Tre
Taktype
Saltak
Høyde
6.3 m
Mønehøyde
8.3 m
Vinduer
2
Dører
0
Synlige etasjer
2
Syd
Materiale
Tre
Taktype
Saltak
Høyde
4.2 m
Vinduer
6
Dører
1
Synlige etasjer
1

Hendelser

20.04.2026 Gbnr 237/16 - Kolbulinna 306 - Forespørsel om forhåndskonferanse
29.08.2022 Gbnr 237/16 - Kolbulinna 306 - Riving av låve og oppføring av 2 nye driftsbygninger - Tilbakemelding om mangler
04.08.2022 Gbnr 237/16 - Kolbulinna 306 - Søknad om tiltak