Rendering
3D-visualisering (rendering) av en bygning (redskapshus) sett fra en vinkel.
1 / 5
NewConstruction
Soeknad
Landbruk
Ny driftsbygning i Stardalen 604, Sunnfjord
📍 Stardalen 604 , 6843 SKEI I JØLSTER
Nøkkelinfo
- Sakstype
- Nybygg
- Bygningstype
- Landbruk
- Bruksareal
- 203 m²
- Kommune
- Sunnfjord
- Fylke
- Vestland
- Gnr / Bnr
- 317 / 2
- Saksnummer
- 2026/3136
- Fase
- Søknad
Om byggesaken
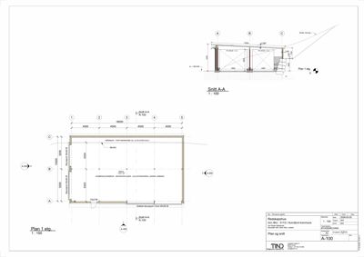
Ny driftsbygning (redskapshus) på 203 m² oppføres på eiendommen Stardalen 604 i Sunnfjord kommune. Bygget er i én etasje med pulttak og flatt tak, utført i tre. Bygningen skal brukes til redskapslager og avlastingsareal under lamming, med dobbel skyveport i front og fri høyde på 3,5 meter. Bygget er plassert nær eksisterende driftsbygning, trukket noe tilbake i terrenget for god intern trafikk og adkomst. Området ligger i randsonen til dyrkamark, og tiltaket inkluderer tiltak for å håndtere overflatevann. Bygget har en enkel konstruksjon med murfot og tørrmur rundt.
Produkter og materialer
Fasade
Trepanel
🧱 Tre
Bygget har trepanel på alle fasader
Trepanel til yttervegger på redskapshus
Dører
Dobbel skyveport
🧱 Metall
Antall: 1
Dobbel skyveport i front, 45x35 m
Dobbel skyveport for innkjøring til redskapshus
Tak
Pulttak og flatt tak
Pulttak på vest- og østfasade, flatt tak på sørfasade
Taktekking for pulttak og flatt tak på redskapshus
VVS
Overvannshåndtering
Takvann ført til terreng, ingen tilknytning til avløpssystem
System for håndtering av overvann fra tak
Tømrer
Byggkonstruksjon i tre
🧱 Tre
Bygget er i tre med pulttak og flatt tak
Tømrerarbeid for oppføring av redskapshus
Grunnarbeid
Murfot og tørrmur
🧱 Stein
Murfot og tørrmur med topp murkrone ca. 2,0 m over gulv
Grunnmur og støttemur rundt bygget
Fasader
Redskapshus
Sør
- Materiale
- Tre
- Taktype
- Flatt tak
- Vinduer
- 0
- Dører
- 1
- Synlige etasjer
- 1
Vest
- Materiale
- Tre
- Taktype
- Pulttak
- Vinduer
- 0
- Dører
- 0
- Synlige etasjer
- 1
Øst
- Materiale
- Tre
- Taktype
- Pulttak
- Vinduer
- 0
- Dører
- 0
- Synlige etasjer
- 1
Hendelser
20.04.2026
Søknad om tillatelse til tiltak uten ansvarsrett - gbnr. 317/2, Stardalen 604