ChangeOfUse Igangsettingstillatelse Leilighetsbygg

Bruksendring og ombygging av leiligheter i Albums gate 11, Drammen

📍 Albums gate 11 , 3016 DRAMMEN

Nøkkelinfo

Sakstype
Bruksendring
Bygningstype
Leilighetsbygg
Bruksareal
809 m²
Boenheter
7
Kommune
Drammen
Fylke
Buskerud
Gnr / Bnr
114 / 8
Saksnummer
24/16971
Fase
Igangsettingstillatelse

Om byggesaken

Ombygging av eksisterende bygning i Albums gate 11 fra næringslokaler til boligformål, inkludert bruksendring av 1. etasje og kjeller til to nye boenheter, samt ombygging av tre eksisterende leiligheter i 2. etasje. Bygningen har totalt 7 boenheter etter ombyggingen, med et samlet areal på ca. 809 m². Det utføres fasadeendringer på sidebygningen med nye vinduer, balkongdører og rekkverk i smijern, samt støyskjermingstiltak for å tilfredsstille støykrav. Uteoppholdsarealer omfatter både private balkonger og felles uteareal med lekeplass og aktivitetsareal. Bygningen har vernestatus B og ligger i et kulturmiljø med høy verneverdi. Tiltaket inkluderer også branntekniske oppgraderinger, lydisolasjonstiltak og tilpasninger for universell utforming med dispensasjoner fra enkelte tekniske krav. Det er etablert nødvendig parkering for biler og sykler, samt avfallsløsning i henhold til krav. Tiltaket er under igangsettingstillatelse og har godkjente ansvarsretter for prosjektering og utførelse.

Arbeidsomfang

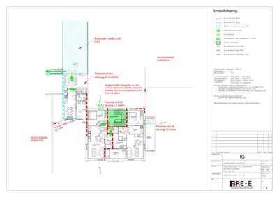
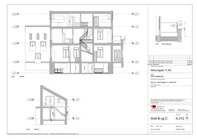
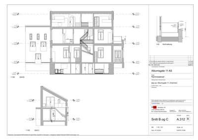
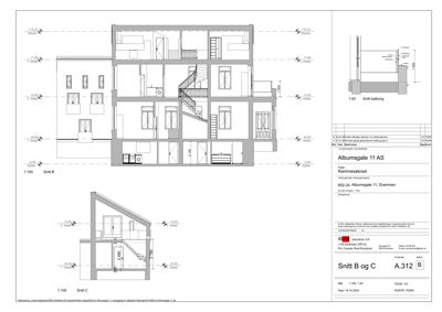
- Bruksendring av hovedetasje og kjeller fra næringsvirksomhet (klinikk) til boligeiendom (leiligheter). - Ombygging av 3 eksisterende leiligheter for å øke antall boenheter til totalt 7 leiligheter. - Fasadeendring av sidebygningen: Fjerning av noen vinduer, etablering av nye vinduer og balkongdører. - Innvendig ombygging av sidebygningen. - Etablering av uteoppholdsarealer med skjermingstiltak (1,5m høy skjerm på bakkeplan og tett rekkverk på terrasse) for å redusere støy fra Albums gate. - Oppgradering av lydisolasjon i fasader (krav om Rw + Ctr ≥ 49 dB). - Tilpasning av parkering (garasje/carport og utearealer).

Produkter og materialer

Utendørs Uteoppholdsareal og lekeplass

Felles uteoppholdsareal 140 m², privat uteareal 15 m², småbarnslekeplass 50 m² med sandkasse og lekeapparater

Opparbeidede utearealer for rekreasjon og lek til beboerne

Vinduer Franske balkongdører og vinduer

🧱 Tre eller smijern, lydisolasjon Rw + Ctr ≥ 28 dB

Antall: 10

Vinduer og dører til terrasse skal ha lydisolasjon Rw + Ctr ≥ 28 dB, uten ventiler i fasaden

Nye vinduer og franske balkongdører i sidebygning og hovedbygg, tilpasset lyd- og kulturminnekrav

Betong Bærekonstruksjoner

🧱 Hulltegl murvegg 410-430 mm tykkelse

Yttervegger med lydisolasjon Rw + Ctr ≥ 49 dB, brannmotstand EI 60 [B60]

Bærekonstruksjoner i mur med høy lyd- og brannmotstand

Utendørs Bilparkering

Antall: 3

3 biloppstillingsplasser i garasje

Bilparkering til boenhetene

Annet Avfallsløsning

Avfallsdunker plassert ca. 3 meter fra vei ved atkomst

Avfallshåndtering i henhold til kommunale krav

Trapper Innvendige trapper

🧱 Tre og stål

Antall: 2

To trapperom, brannklasse 2 og 1, med røykventilasjon

Innvendige trapper med brannteknisk sikring og røykventilasjon

Fasade Pusset mur

🧱 Mur med puss

Eksisterende pusset murfasade med bevaringsverdi, mindre endringer i sidebygning

Fasade i pusset mur med historisk arkitektur, tilpasninger i sidebygning

Tak Saltak med teglstein

🧱 Teglstein

Eksisterende saltak med teglstein opprettholdes

Taktekking i teglstein på eksisterende saltak

Isolasjon Brannisolasjon i konstruksjoner

🧱 A2-s1,d0 klasse ubrennbar isolasjon

Isolasjon i konstruksjoner skal være ubrennbar klasse A2-s1,d0

Brannisolasjon i vegger og himlinger

VVS Sanitær og varme

Sanitærinstallasjoner og varme, inkludert balansert ventilasjon i boenheter

Sanitær og varmeinstallasjoner tilpasset boligformål

Elektro Brannalarm, nød- og ledelys

Brannalarmanlegg kategori 2, nød- og ledelys i trapperom

Brannalarm og nødlys for sikkerhet og rømningsveier

Garasjeport Eksisterende garasjeport

🧱 Tre

Antall: 1

Eksisterende garasjeport i tre i sidebygning

Garasjeport til eksisterende garasje

Utendørs Sykkelparkering

Antall: 14

14 sykkelparkeringsplasser i tidligere bilgarasje

Sykkelparkering til boenhetene

Rekkverk Balkongrekkverk i smijern og støyskjerm

🧱 Sort smijern og ikke-reflekterende glass eller isolert stål

Antall: 5

Rekkverk på balkonger og terrasser skal være i sort smijern, støyskjerm 1,5 m høy med flatevekt ≥ 10 kg/m2

Rekkverk og støyskjerm for å redusere støy og ivareta kulturminneverdier

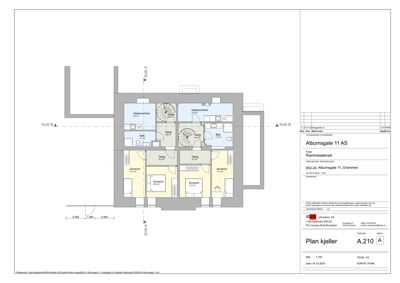
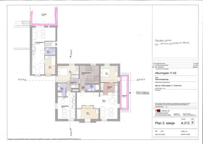
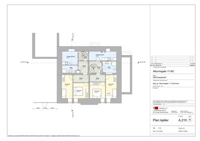
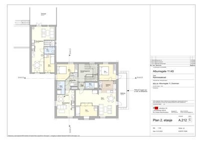
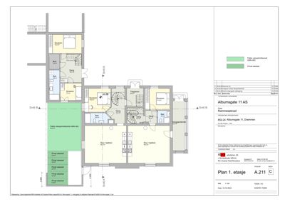
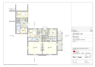
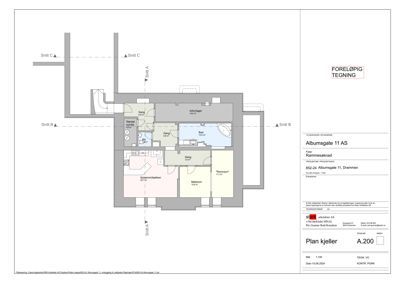
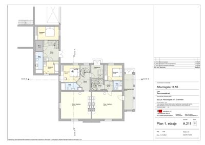
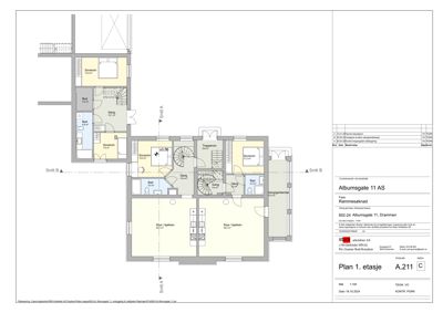
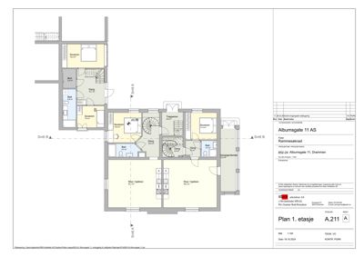
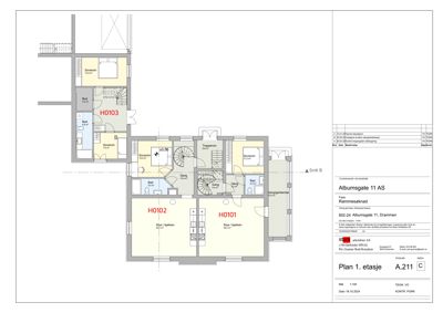
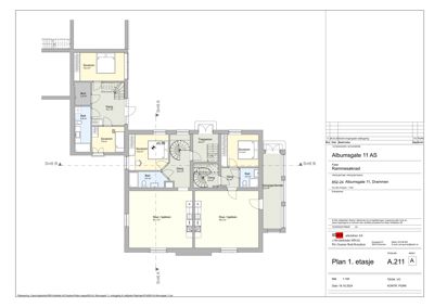
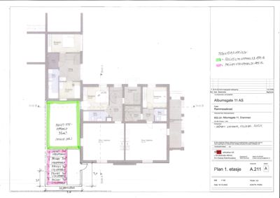
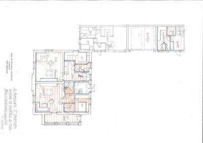
Plantegning

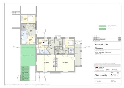
Albumsgate 11 AS 809.2 m²

Etasje 1 291.8 m²

Rom Areal Vinduer Dører
Stue / kjøkken 101 34.1 m² 2 2
Stue / kjøkken 102 34.2 m² 2 2
Gang 103 10.4 m² 0 3
Gang 104 5.4 m² 0 2
Gang 105 3.2 m² 0 2
Trapperom 106 6.6 m² 0 2
Gang/garderobe 107 3.0 m² 0 1
Soverom 108 13.0 m² 1 1
Soverom 109 13.1 m² 1 1
Soverom 110 7.9 m² 1 1
Soverom 111 11.3 m² 1 1
Bad 112 5.4 m² 0 1
Bad 113 3.4 m² 0 1
Bad 114 6.8 m² 0 1
Bod 115 3.4 m² 0 1
Felles uteoppholdsareal (stille del) 116 35.0 m² 0 0
Privat uteareal 117 3.0 m² 0 0
Privat uteareal 118 3.0 m² 0 0
Privat uteareal 119 3.0 m² 0 0
Privat uteareal 120 3.0 m² 0 0
Privat uteareal 121 3.0 m² 0 0
Stue / kjøkken H0101 34.2 m² 2 2
Stue / kjøkken H0102 34.1 m² 2 2
Gang H0103 10.4 m² 0 3
Privat uteareal 122 3.0 m² 0 0
Privat uteareal 123 3.0 m² 0 0

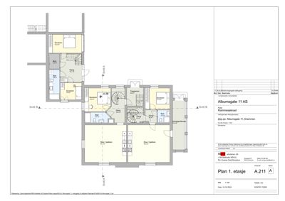
Etasje 0 108.8 m²

Rom Areal Vinduer Dører
Vaskerom/bod 001 9.3 m² 0 1
Gang 002 4.0 m² 0 2
Vaskerom/bod 003 11.0 m² 0 1
Gang 004 6.4 m² 0 2
Bad 005 5.1 m² 0 1
Gang 006 5.2 m² 0 2
Gang 007 4.7 m² 0 2
Bad 008 7.2 m² 0 1
Soverom 009 11.3 m² 1 1
Soverom 010 10.6 m² 1 1
Soverom 011 11.0 m² 1 1
Soverom 012 11.3 m² 1 1
Skjermet uteareal 013 65.1 m² 0 1

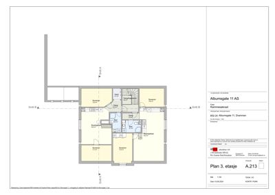
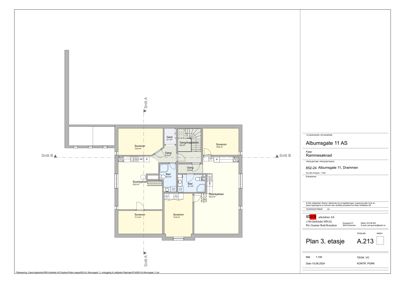
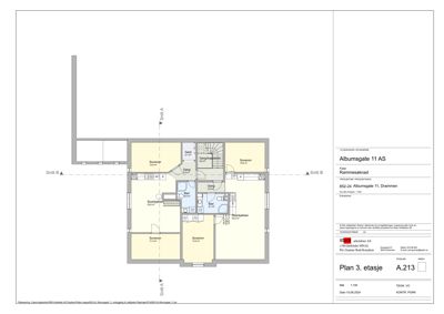
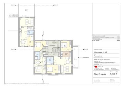
Etasje 3 198.8 m²

Rom Areal Vinduer Dører
Soverom 301 12.8 m² 1 1
Gang 302 3.5 m² 0 2
Gang/trapperom 303 8.9 m² 0 1
Soverom 304 10.6 m² 1 1
Gang 305 2.6 m² 0 2
Stue/kjøkken 306 33.6 m² 2 2
Bad 307 5.1 m² 0 1
Soverom 308 13.5 m² 1 1
Soverom 309 11.3 m² 1 1
Stue/kjøkken 310 23.6 m² 2 2
Bad 311 4.6 m² 0 1
Bad 312 5.1 m² 0 1
Stue/kjøkken L0101 33.6 m² 2 2
Stue/kjøkken L0102 23.6 m² 2 2
Soverom 101 10.6 m² 1 1
Soverom 102 12.8 m² 1 1
Soverom 103 11.3 m² 1 1
Soverom 104 13.5 m² 1 1
Bad 201 5.1 m² 0 1
Bad 202 4.6 m² 0 1
Trappegang 0 0.0 m² 0 2

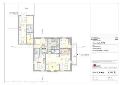
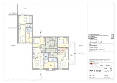
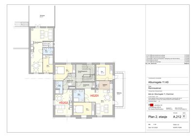
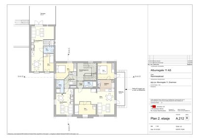
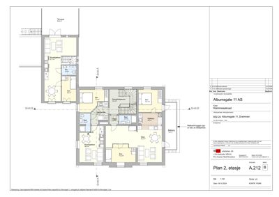
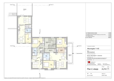
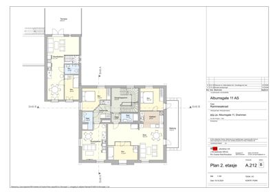
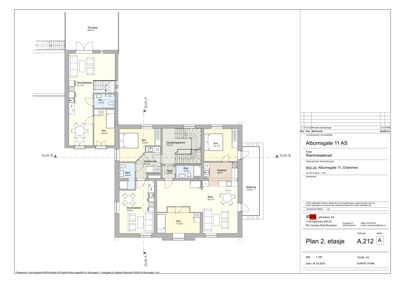
Etasje 2 209.8 m²

Rom Areal Vinduer Dører
Stue 201 25.3 m² 1 2
Kjøkken 202 7.9 m² 0 1
Sov 203 12.6 m² 1 1
Bad 204 6.1 m² 0 1
Garderobe 205 5.3 m² 0 1
Gang/trapperom 206 15.3 m² 0 0
Sov 207 12.1 m² 1 1
Garderobe 208 5.5 m² 0 1
Sov 209 11.7 m² 1 1
Bad 210 4.4 m² 0 1
Stue/kjøkken 211 18.5 m² 1 1
Balkong 212 12.9 m² 0 1
Wo 213 3.3 m² 0 1
Stue/kjøkken 214 31.1 m² 1 1
Balkong 215 12.9 m² 0 1
Terrasse 216 64.6 m² 0 1
Stue H0201 25.3 m² 1 2
Stue H0202 25.3 m² 1 2

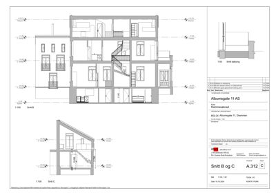
Fasader

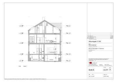
Enebolig

Vest
Materiale
Pusset
Taktype
Saltak
Takmat.
Tegl
Vinduer
5
Dører
1
Balkonger
1
Synlige etasjer
2
Øst
Materiale
Pusset
Taktype
Saltak
Takmat.
Tegl
Vinduer
6
Dører
1
Balkonger
1
Synlige etasjer
2
Nord
Materiale
Pusset
Taktype
Saltak
Takmat.
Tegl
Vinduer
6
Dører
2
Synlige etasjer
2
Sør
Materiale
Pusset
Taktype
Saltak
Takmat.
Tegl
Vinduer
10
Dører
3
Balkonger
2
Synlige etasjer
3

Leilighetshus

Sør
Materiale
Mur
Taktype
Flatt tak
Takmat.
Tegl
Vinduer
11
Dører
3
Balkonger
3
Synlige etasjer
3

Eksisterende

Vest
Materiale
Pusset
Taktype
Saltak
Takmat.
Tegl
Vinduer
6
Dører
1
Balkonger
1
Synlige etasjer
2

852-24 Albumsgate 11

Sør
Materiale
Pusset
Taktype
Saltak
Takmat.
Tegl
Vinduer
10
Dører
0
Synlige etasjer
3

Eksisterende fasade Sør

Sør
Materiale
Pusset
Taktype
Saltak
Takmat.
Tegl
Vinduer
11
Dører
0
Synlige etasjer
3

Eksisterende bygning

Øst
Materiale
Tre
Taktype
Saltak
Vinduer
5
Dører
1
Synlige etasjer
2

Garasje

Øst
Materiale
Tre
Taktype
Flatt tak
Vinduer
1
Dører
1
Balkonger
1
Synlige etasjer
2

Nybygg

Øst
Materiale
Tre
Taktype
Flatt tak
Vinduer
4
Dører
1
Balkonger
1
Synlige etasjer
2

Albmsgate 11 AS

Sør
Materiale
Pusset
Taktype
Saltak
Takmat.
Tegl
Vinduer
10
Dører
3
Balkonger
3
Synlige etasjer
3

Eksisterende fasade Nord

Nord
Materiale
Pusset
Taktype
Saltak
Takmat.
Tegl
Vinduer
7
Dører
2
Synlige etasjer
2

Albmsgate 11

Sør
Materiale
Pusset
Taktype
Saltak
Takmat.
Tegl
Vinduer
10
Dører
3
Balkonger
2
Synlige etasjer
3

Sidebygning

Ukjent
Vinduer
3
Dører
3
Synlige etasjer
1

Hendelser

09.04.2026 114/8, Albums gate 11, bruksendring av kjeller og 1.etg, nye bolignummer
07.04.2026 Albums gate 11, antall og plassering av sykkelparkering
07.04.2026 Albums gate 11 Søknad om igangsettingstillatelse 114/8 igangsettingstillatelse
27.03.2026 Albums gate 11, rammetillatelse til bruksendring av kontor bolig, ombygging av leiligheter og fasadeendring, dispensasjon rammetillatelse
09.03.2026 Albums gate 11, revidert plan for uteopphold
12.02.2026 Albums gate 11, Redegjørelse for redusert felles uteareal - Komplettering av søknad om dispensasjon rammetillatelse
15.01.2026 Albums gate 11, tilsvar og reviderte tegninger og utomhusplan
07.01.2026 Albums gate 11, vi trenger flere opplysninger for å behandle søknaden din søknad
12.12.2025 Albums gate 11, oppdatert støyrapport
02.12.2025 Albums gate 11 Supplering av søknad 114/8 søknad
31.10.2025 Albums gate 11, vi trenger flere opplysninger for å behandle søknaden din søknad
30.09.2025 Albums gate 11, svarbrev og oppdaterte tegninger
22.09.2025 Albums gate 11, svar til anmodning om fristforlengelse
12.09.2025 Albums gate 11, anmodning om fristforlengelse
11.09.2025 Albums gate 11, uttalelse fra Byantikvaren og informasjon om bestemmelser om uteoppholdsarealer
28.08.2025 Albums gate 11, vi vurderer å avslå søknaden din søknad
27.08.2025 Albums gate 11, purring - spørsmål om sakens status og eventuell manglende dokumentasjon
09.07.2025 Albums gate 11, spørsmål om sakens status og eventuell manglende dokumentasjon
25.06.2025 Albums gate 11, fasadeendring - Uttalelse nyere tids kulturminner
28.05.2025 Albums gate 11, anmodning om uttalelse fra Buskerud fylkeskommune
28.05.2025 Albums gate 11, bruksendring, tilbakemelding på brev av 15.05.2025, fravik romhøyde kjeller, utomhusarealer
15.05.2025 Albums gate 11, vi trenger flere opplysninger for å behandle søknaden din søknad
14.04.2025 114/8, Albums gate 11 ombygging, bruksendring, avstandserklæring fra nabo
02.04.2025 Albumsgate 11, referat fra møte
28.03.2025 Albums gate 11, tilleggs dokumentasjon
05.03.2025 Albums gate 11, vi trenger flere opplysninger for å behandle søknaden din søknad
29.01.2025 Albums gate 11 Søknad om rammetillatelse 114/8 rammetillatelse
24.05.2024 Albums gate 11, referat fra forhåndskonferanse
26.04.2024 Albums gate 11, anmodning om forhåndskonferanse med spørsmål om bruksendring, ombygging, rivning og nybygg