ChangeOfUse UnderBehandling Leilighetsbygg

Bruksendring og oppdeling av bolig i 3. etasje, Dronningens gate 59

📍 Dronningens gate 59 , 4608 KRISTIANSAND S

Nøkkelinfo

Sakstype
Bruksendring
Bygningstype
Leilighetsbygg
Bruksareal
216 m²
Boenheter
4
Kommune
Kristiansand
Fylke
Agder
Gnr / Bnr
150 / 65
Saksnummer
22/32295
Fase
Under behandling

Om byggesaken

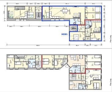
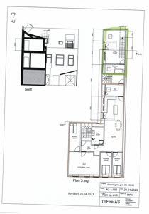
Bruksendring og oppdeling av eksisterende bolig i 3. etasje i leilighetsbygg på Dronningens gate 59. Prosjektet innebærer etablering av en praktikantdel med egen inngang, oppdeling av en tidligere godkjent boenhet til to separate boenheter, samt innredning av nye soverom og bad. Det er omfattende ombygging av planløsning, inkludert arbeider i brannskillende dekker mellom 2. og 3. etasje. Totalt godkjent er 4 boenheter i bygget, med 1 i 3. etasje, men søknad om endring viser 2 boenheter i 3. etasje. Prosjektet krever brannprosjektering i tiltaksklasse 3, lydprosjektering, bygningsfysikk og uavhengig kontroll. Det er også søkt om dispensasjon for uteareal og heiskrav. Arealet i 3. etasje er ca. 215,8 m² med flere soverom, bad, stue/kjøkken og bod. Prosjektet er under behandling med søknad om igangsettingstillatelse.

Produkter og materialer

Brannvern Brannprosjektering tiltaksklasse 3

Brannprosjektering i tiltaksklasse 3 kreves pga. byggets alder, høyde og bevaringsverdig område

Brannprosjektering og uavhengig kontroll for tiltaksklasse 3

VVS Sanitærinstallasjoner

Nye bad og kjøkken krever VVS-installasjoner

VVS for nye bad og kjøkken

Elektro Elektriske installasjoner

Elektriske installasjoner for nye boenheter, bad og kjøkken

Elektroarbeid for ombygging og nye rom

Bad Nye bad

Antall: 3

Etablering av nye bad i 3. etasje, inkludert bad i praktikantdel

Tømrer Innvendige vegger og planendringer

Ombygging av planløsning med nye vegger, soverom og bod

Tømrerarbeid for oppdeling av boenheter og nye rom

Grunnarbeid Ingen nye grunnarbeider

Ingen nye grunnarbeider da det er bruksendring i eksisterende bygg

Trapper Innvendig trapp

Antall: 2

To innvendige trapper i bygget, inkludert trapp i 3. etasje

Isolasjon Fuktsikring våtrom

Bygningsfysikk og fuktsikring for våtrom iht. SAK10 §14-2

Isolasjon og fuktsikring i våtrom

Vinduer Fasadevindu

Antall: 14

Fasadevindu i 2. og 3. etasje i leilighetsbygg

Kjøkken Nye kjøkken

Antall: 3

Nye kjøkken/stue-løsninger i 3. etasje, inkludert praktikantdel

Dører Innvendige dører

Antall: 33

Innvendige dører til soverom, bad, bod og trapperom i 2. og 3. etasje

Plantegning

Enebolig 424.3 m²

Etasje 2 208.5 m²

Rom Areal Vinduer Dører
Stue 201 18.3 m² 1 1
Kjøkken/stue 202 16.3 m² 1 1
Soverom 203 10.2 m² 1 1
Soverom 204 6.3 m² 1 1
Soverom 205 15.0 m² 1 1
Soverom 206 8.5 m² 1 1
Bad 207 3.4 m² 0 1
Bad 208 6.8 m² 0 1
Gang 209 2.5 m² 0 2
Gang 210 3.1 m² 0 2
Trapperom 211 8.9 m² 0 1
Gang 212 4.9 m² 0 1
Bod 213 1.9 m² 0 1
Gang 214 4.9 m² 0 1
Bod 215 1.9 m² 0 1
Gang 216 4.9 m² 0 1
Soverom 217 8.2 m² 1 1
Gang/vaskerom 218 6.4 m² 0 1
Bad 219 5.2 m² 0 1
Gang 220 2.7 m² 0 1
Soverom 221 8.9 m² 1 1

Etasje 3 215.8 m²

Rom Areal Vinduer Dører
Stue/Kjøkken 301 44.0 m² 1 1
Soverom 302 10.0 m² 1 1
Soverom 303 9.8 m² 1 1
Soverom 304 8.0 m² 1 1
Soverom 305 13.0 m² 1 1
Soverom 306 8.2 m² 1 1
Stue/Kjøkken 307 12.4 m² 1 1
Bad 308 4.3 m² 0 1
Bad 309 6.1 m² 0 1
Gang 310 3.8 m² 0 2
Gang 311 4.6 m² 0 2
Trapp 312 4.5 m² 0 1
Gang 313 7.3 m² 0 1
Soverom 314 7.8 m² 1 1
Stue/Kjøkken 315 21.2 m² 1 1
Soverom 316 8.2 m² 1 1
Bod 317 1.9 m² 0 1

Fasader

MFH

Sydvest
Taktype
Saltak
Vinduer
6
Dører
2
Balkonger
2
Synlige etasjer
2
Nordvest
Taktype
Saltak
Vinduer
4
Dører
1
Synlige etasjer
2

Hendelser

20.04.2026 2022032295-27 Dronningens gate 59 - 150/65, rammetillatelse for bruksendring til bolig for 3. etasje - Bygningsmyndigheten varsler avslag på endring
16.04.2026 2022032295-26 Dronningens gate 59 150/65/0/0, bruksendring - oppdeling bolig - avmerking av leilighet H0301
15.04.2026 2022032295-25 Dronningens gate 59 150/65/0/0, svar på tilbakemelding om endring og igangsettingstillatelse
14.04.2026 2022032295-24 Dronningens gate 59 - 150/65, rammetillatelse for bruksendring til bolig for 3. etasje - Tilbakemelding til søknad om endring og søknad om igangsetting fra bygningsmyndigheten.
14.04.2026 2022032295-23 Dronningens gate 59 150/65/0/0, bruksendring - oppdeling bolig - etterlyser svar
10.04.2026 2022032295-22 Dronningens gate 59 150/65/0/0, bruksendring - oppdeling bolig - etterlyser svar på søknad om igangsetting
31.03.2026 2022032295-21 Dronningens gate 59 - 150/65 - rammetillatelse for bruksendring til bolig - ber om snarest avklaring
24.02.2026 2022032295-20 Dronningens gate 59 150/65/0/0, søknad om igangsettingstillatelse
11.02.2026 2022032295-19 Dronningens gate 59 - 150/65 - oppdaterte tegninger
09.02.2026 2022032295-18 Dronningens gate 59 - 150/65 - rammetillatelse for bruksendring til bolig, Tilbakemelding fra plan og bygg til henvendelse av 14.11.25.
14.11.2025 2022032295-17 Dronningens gate 59 - 150/65 - rammetillatelse for bruksendring til bolig - tilbakemelding 2 fra plan og bygg til henvendelse av 14.11.2025