ChangeOfUse UnderBehandling Leilighetsbygg

Bruksendring og fasadeendringer i leilighetsbygg på Engene 75, Drammen

📍 Engene 75 , 3011 DRAMMEN

Nøkkelinfo

Sakstype
Bruksendring
Bygningstype
Leilighetsbygg
Bruksareal
303 m²
Boenheter
4
Kommune
Drammen
Fylke
Buskerud
Gnr / Bnr
113 / 124
Saksnummer
25/04759
Fase
Under behandling

Om byggesaken

Prosjektet omfatter tilbakeføring av en eldre bygård fra ca. 1902 til opprinnelig bruk som 4-mannsbolig ved å etablere to nye leiligheter i tilleggsdelen av bygningen. Bygningen består av kjeller, 1. og 2. etasje med tradisjonell saltakskonstruksjon og stenderverk. De nye leilighetene på ca. 40 m² hver får stue, bad, soverom og kjøkken, med bodareal i kjeller. Det planlegges fasadeendringer, blant annet ny utvendig trapp på vestfasaden. Prosjektet inkluderer også utvidelse av avkjørsel, men denne er foreløpig ikke godkjent pga. trafikksikkerhetsmessige hensyn. Det søkes dispensasjon fra tekniske krav i TEK17 grunnet byggets alder og konstruksjon. Uteoppholdsareal og parkeringskrav er utfordrende å oppfylle innenfor tomtens begrensede areal. Områdestabilitetsvurdering viser tilfredsstillende grunnforhold. Støyvurdering dokumenterer at støykrav kan oppfylles. Prosjektet er i fase under behandling med flere krav til supplering og usikkerhet knyttet til dispensasjoner og planbestemmelser.

Produkter og materialer

Dører Ytterdører og balkongdører i tre

🧱 Tre

Antall: 15

Dører til leiligheter, inkludert ny utvendig trapp med dør til svalgang.

Ytterdører til leiligheter og tilkomst via ny utvendig trapp.

Elektro Elektrisk installasjon for leiligheter

Elektrisk anlegg tilpasset nye leiligheter, ikke detaljert beskrevet.

Elektrisk installasjon for belysning, strøm og utstyr.

Isolasjon Mineralull isolasjon i vegger og tak

🧱 Mineralull

Isolasjon i eksisterende stendervegger og tak, men ikke i henhold til TEK17 pga. byggets alder.

Isolasjon for å forbedre energieffektivitet, men dispensasjon søkt pga. konstruksjonens begrensninger.

Vinduer Vinduer i tre med 3-lags glass

🧱 Tre, 3-lags energiglass

Antall: 28

Vinduer fordelt på alle fasader, lydisolerende egenskaper iht. støyrapport.

Vinduer til oppholdsrom med krav til lydisolasjon for å oppnå tilfredsstillende innendørs lydnivå.

Bad Nye bad med sanitærutstyr

Antall: 4

To nye bad i hver av de to nye leilighetene, inkludert sanitærutstyr.

Bad med nødvendige installasjoner for boenheter.

Kjøkken Kjøkkeninnredning

Antall: 4

Kjøkken i hver leilighet, inkludert i planløsning.

Kjøkkeninnredning for hver boenhet.

VVS Ventilasjon med lufteventiler

Lufteventiler i vegger og kjeller for radonutlufting, ingen balansert ventilasjon pga. byggets alder.

Ventilasjon tilpasset eldre bygg med dispensasjon fra krav om balansert ventilasjon.

Trapper Utvendig trapp i tre

🧱 Tre

Antall: 1

Ny utvendig trapp på vestfasade, erstatter innvendig trapp mellom 1. og 2. etasje.

Trapp for adkomst til 2. etasje via svalgang.

Parkering Parkeringsplasser på tomt

Antall: 4

Fire parkeringsplasser planlagt, én per boenhet, men avkjørselstillatelse ikke godkjent ennå.

Parkeringsplasser iht. kommuneplanens krav.

Maling Innvendig maling og overflatebehandling

Standard innvendige overflater i leiligheter, ikke spesifisert i detalj.

Innvendige overflater i leiligheter.

Fasade Trepanel fasade med saltak og flatt tak

🧱 Tre

Fasader mot nord, øst, vest og sør med trepanel, saltak på tre sider og flatt tak på sørfasade. Ny utvendig trapp på vestfasade dekket med spiler.

Fasadeendringer inkludert ny utvendig trapp på vestfasade.

Varmepumpe Mulig installasjon av varmepumpe

Varmepumpe vurderes for energieffektivisering, men utfordringer pga. eksisterende konstruksjon.

Teknisk løsning for oppvarming og energieffektivitet.

Terrasse Luftebalkong

Antall: 1

Luftebalkong i 2. etasje, tilknyttet en av leilighetene.

Utendørs oppholdsareal tilknyttet leilighet.

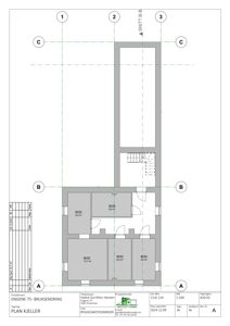
Betong Kjeller og boder

🧱 Betong

Eksisterende kjeller med boder som inngår i leilighetenes bodareal.

Kjellerareal benyttes som bodareal for leilighetene.

Grunnarbeid Oppmåling og dokumentasjon av eiendomsgrenser

Oppmålingsforretning gjennomført for klarlegging av grenser og arealberegning.

Nødvendig for korrekt arealberegning og dokumentasjon i byggesaken.

Plantegning

Enebolig 303.4 m²

Etasje 1 127.7 m²

Rom Areal Vinduer Dører
Stue 101 19.4 m² 2 1
Soverom 102 9.9 m² 1 1
Soverom 103 8.8 m² 1 1
Kjøkken 104 13.5 m² 1 1
Gang 105 10.5 m² 0 4
Soverom 106 6.8 m² 1 1
Bad 107 3.8 m² 0 1
TV-Stue 108 11.7 m² 1 1
Gang 109 12.3 m² 1 2
Soverom 110 17.8 m² 1 2
Gardrobe 111 3.8 m² 0 1
Bad 112 4.5 m² 0 1
Stue 201 17.8 m² 1 1
Soverom 202 11.7 m² 1 1
Kjøkken 203 3.8 m² 0 1
Bad 204 4.5 m² 0 1
Trapp 205 0.0 m² 0 0

Etasje 2 127.7 m²

Rom Areal Vinduer Dører
Soverom 201 9.9 m² 1 1
Stue/Kjøkken 202 28.3 m² 2 2
Soverom 203 9.9 m² 1 1
Gang 204 6.1 m² 0 3
Soverom 205 13.5 m² 1 1
Bad 206 3.9 m² 0 1
Soverom 207 10.9 m² 1 1
Svalgang 208 0.0 m² 0 1
Gang 209 5.9 m² 0 2
Tv-stue 210 21.5 m² 1 1
Soverom 211 9.2 m² 1 1
Bad 212 6.8 m² 0 1
Bod 213 6.1 m² 0 1

Etasje 0 48.0 m²

Rom Areal Vinduer Dører
Bod 001 8.0 m² 0 1
Bod 002 8.0 m² 0 1
Bod 003 8.0 m² 0 1
Bod 004 8.0 m² 0 1
Gang 005 16.0 m² 0 3

Fasader

Enebolig

Sør
Materiale
Tre
Taktype
Flatt tak
Vinduer
4
Dører
0
Synlige etasjer
2
Øst
Materiale
Tre
Taktype
Saltak
Vinduer
4
Dører
0
Synlige etasjer
2
Nord
Materiale
Tre
Taktype
Saltak
Vinduer
2
Dører
1
Synlige etasjer
2
Vest
Materiale
Tre
Taktype
Saltak
Vinduer
8
Dører
2
Balkonger
1
Synlige etasjer
2

Eksisterende bygg

Vest
Materiale
Betong
Taktype
Flatt tak
Vinduer
2
Dører
6
Balkonger
1
Synlige etasjer
2

Hendelser

13.04.2026 Engene 75, klage, krav om redegjørelse og erstatning
18.03.2026 Engene 75, bekreftelse på byggesak satt i bero
18.03.2026 Engene 75, ber om at søknad settes i bero
13.03.2026 Engene 75, redegjørelse for tekniske krav
16.02.2026 Engene 75, vi trenger flere opplysninger for å behandle søknaden din
05.02.2026 Engene 75, bruksendring fra tilleggsdel til hoveddel - dispensasjon, ny plantegning for 2.etg
04.02.2026 Engene 75, vi trenger flere opplysninger for å behandle søknaden din
30.12.2025 Engene 75, tilleggsdokumentasjon - nye tegninger
01.12.2025 Engene 75, svar på anmodning om utsatt frist
25.09.2025 Engene 75, utsatt frist i byggesak
25.09.2025 Engene 75, anmodning om utsatt frist
17.09.2025 Engene 75, redegjørelse og anmodning om fristforlengelse
09.09.2025 Engene 75, vi vurderer å avslå søknaden din
28.08.2025 Engene 75, ettersendt dokumentasjon til søknaden
30.06.2025 Engene 75, kopi: Uttalelse til søknad om utvidet avkjørselstillatelse i forbindelse med bruksendring
09.04.2025 Engene 75, svar på søknad om utsatt frist i byggesak
07.04.2025 Engene 75, tilbakemelding på brev om avklaring ang søknaden
14.03.2025 Engene 75, vi vurderer å avslå søknaden din
19.02.2025 Engene 75, avklaring fra søker ang søknaden
05.02.2025 Engene 75 Søknad om rammetillatelse 113/124