ChangeOfUse UnderBehandling Leilighetsbygg

Bruksendring og fasadeendring på leilighetsbygg i Fosswinckels gate 17, Bergen

📍 Fosswinckels gate 17 , 5007 BERGEN

Nøkkelinfo

Sakstype
Bruksendring
Bygningstype
Leilighetsbygg
Bruksareal
78 m²
Boenheter
1
Kommune
Bergen
Fylke
Vestland
Gnr / Bnr
164 / 637
Saksnummer
BYGG-2026/12193
Fase
Under behandling

Om byggesaken

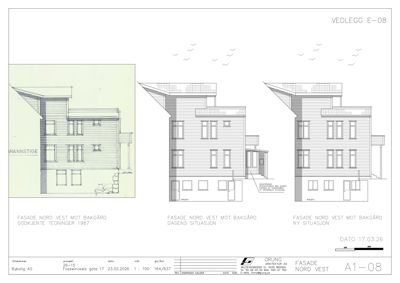
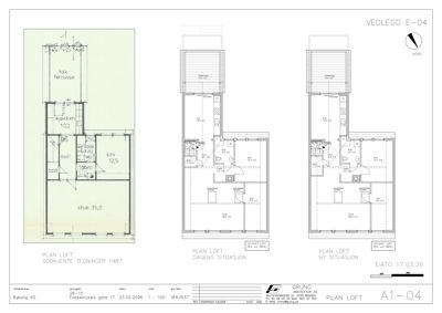
Eksisterende leilighetsbygg på 78 m² i Fosswinckels gate 17 gjennomgår bruksendring fra tilleggsdel (bod) til hoveddel (soverom) i 2. og 3. etasje, samt delvis tilbakeføring til opprinnelig fasadeuttrykk og mindre fasadetilpasninger. Bygningen har tre etasjer med saltak og trekledning, og fasadene mot nordvest, nordøst og sydvest mot bakgård oppgraderes for bedre visuell kvalitet og tilpasning til omgivelsene. Tiltaket inkluderer legalisering av eksisterende vinduer og dører som ligger nærmere nabogrense enn gjeldende krav, samt mindre fasadejusteringer. Bygget inneholder blant annet stue, kjøkken, bad, hall, garderobe og bod, med totalt 5 vinduer og flere dører i leiligheten. Prosjektet omfatter også dispensasjonssøknad for avstand til nabogrense.

Produkter og materialer

Dører Ytterdører og balkongdører

🧱 Tre

Antall: 6

Eksisterende dører i fasade, noen plassert nærmere nabogrense enn 4,0 m, inkludert tilbakeføring av opprinnelig dør

Dører som skal legaliseres og delvis tilbakeføres til opprinnelig fasadeuttrykk

Grunnarbeid Ingen nye grunnarbeider

Ingen nye grunnarbeider oppgitt, tiltak gjelder eksisterende bygg

Ingen grunnarbeider nødvendig for dette prosjektet

Fasade Tre kledning

🧱 Tre

Delvis tilbakeføring til opprinnelig fasadeuttrykk og mindre fasadetilpasninger

Fasadeendringer for å forbedre bygningens visuelle kvalitet og tilpasning til omgivelsene

Tak Saltak

🧱 Tre og taktekking

Eksisterende saltak opprettholdes, ingen endringer nevnt

Takstruktur med saltak som inngår i byggets arkitektur

Vinduer Fasadevindu

🧱 Tre

Antall: 5

Eksisterende vinduer nærmere nabogrense enn 4,0 m, legalisering av disse

Vinduer i fasade som skal legaliseres og delvis tilbakeføres til opprinnelig uttrykk

Tømrer Innvendige vegger og romendringer

Bruksendring fra bod til soverom i 2. og 3. etasje, tilpasning av rom og vegger

Innvendige konstruksjoner for å tilpasse rom til ny bruk

Plantegning

Leilighet 78.0 m²

Etasje 0 78.0 m²

Rom Areal Vinduer Dører
Stue STUE 38.0 m² 2 1
Soverom SOV 9.0 m² 1 1
Kjøkken KJOKKEN 14.0 m² 1 1
Bad BAD 4.5 m² 0 1
Hall HALL 6.5 m² 0 2
Garderobe GARD 2.5 m² 0 1
Bod BOD 2.0 m² 0 1

Fasader

Enebolig

Nordvest
Materiale
Tre
Taktype
Saltak
Vinduer
11
Dører
2
Balkonger
1
Synlige etasjer
3

Hendelser

13.04.2026 Intern høring. BYGG-2026/12193. 164/637/0/0 Fosswinckels gate 17, fasadeendring
10.04.2026 Fosswinckels gate 17 Supplering av søknad 164/637
01.04.2026 Foreløpig tilbakemelding på søknad. BYGG-2026/12193. 164/637. Fosswinckels gate 17.
27.03.2026 Fosswinckels gate 17 Søknad om tillatelse i ett trinn 164/637