ChangeOfUse UnderBehandling Leilighetsbygg

Bruksendring av kontor til to leiligheter i Hardangerfjordvegen 640

📍 Hardangerfjordvegen 640 , 5610 ØYSTESE

Nøkkelinfo

Sakstype
Bruksendring
Bygningstype
Leilighetsbygg
Bruksareal
250 m²
Boenheter
2
Kommune
Kvam
Fylke
Vestland
Gnr / Bnr
44 / 503
Saksnummer
25/2895
Fase
Under behandling

Om byggesaken

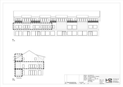
Bruksendring av deler av 2. etasje i et eksisterende betongbygg fra kontor til to separate leiligheter. Bygget har 3-4 etasjer og bæresystem av betongelementer. Arealet som endres er ca. 250 m². Tiltaket inkluderer oppgradering av vinduer i fasaden, etablering av brann- og lydskiller mellom leiligheter og kontor, samt mindre fasadeendringer knyttet til vindusstørrelse. Det planlegges ikke inngrep i bærende konstruksjoner. Tekniske installasjoner som balansert ventilasjon, sanitær, varme/kulde og brannalarmanlegg oppgraderes i forbindelse med ombyggingen. Parkeringsforhold opprettholdes som før, og uteoppholdsareal erstattes med nærliggende offentlig park. Bygget ligger i flomutsatt område, men tiltaket vurderes ikke å forverre risiko. Bruksendringen er i tråd med gjeldende reguleringsplan og kommuneplan.

Produkter og materialer

Ventilasjon Balansert ventilasjon

Prosjektering og installasjon av balansert ventilasjon i leilighetene

Ventilasjonsanlegg for nytt boligformål

Elektro Brannalarmanlegg og ledesystem

Installasjon av brannalarmanlegg og ledesystem iht. NS3960 og NS-EN-1838

Elektriske sikkerhetssystemer for boligformål

VVS Sanitærinstallasjoner, varme- og kuldeinstallasjoner

Oppgradering av sanitær- og varme-/kuldeinstallasjoner for boligbruk

VVS-installasjoner tilpasset boligstandard

Fasade Fasadeendring

🧱 Tre og betongelementer

Mindre fasadeendringer knyttet til vindusstørrelse, uten endring av bygningens eksteriørkarakter

Oppgradering og tilpasning av fasade for bruksendring

Tømrer Innvendige konstruksjoner

🧱 Tre

Montering av brann- og lydskiller, samt tilpasninger i innvendige rom

Tømrerarbeid for ombygging til leiligheter

Brannvern Brann- og lydskille

Etablering av brann- og lydskiller mellom leiligheter og kontorareal

Brannsikring og lydisolering i forbindelse med bruksendring

Vinduer Fasadevindu

🧱 3-lags energiglass

Antall: 2

Endring av vindusstørrelse i fasade, oppgradering til dagens forskriftsnivå

Nye fasadevinduer med bedre isolasjon for leilighetene

Grunnarbeid Ingen nye grunnarbeider

Ingen inngrep i bærende konstruksjoner eller grunn

Eksisterende betongkonstruksjoner beholdes

Fasader

Enebolig

Sør
Materiale
Tre
Taktype
Saltak
Vinduer
16
Dører
2
Balkonger
4
Synlige etasjer
3
Vest
Materiale
Tre
Taktype
Saltak
Vinduer
4
Dører
1
Synlige etasjer
3

Hendelser

21.04.2026 Søknad om igangsettingstillatelse 44/503 - Hardangerfjordvegen 640
03.11.2025 Melding om vedtak - DRAD 242/25. Godkjent rammeløyve til bruksendring på gnr. 44 bnr. 503 i Øystese. Kontor til to leilegheiter
03.11.2025 gebyr kunngjering
10.06.2025 Hardangerfjordvegen 640 Søknad om rammetillatelse 44/503
10.06.2025 Førebels svar på søknad om rammeløyve på gnr 44 bnr 503 i Øystese. Bruksendring